First-floor two-bedroom apartment with on-site house manager and communal lounge.
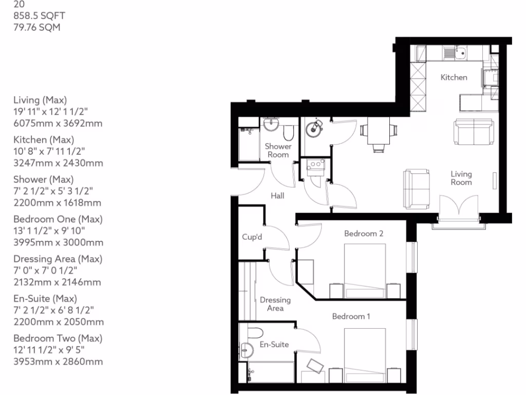
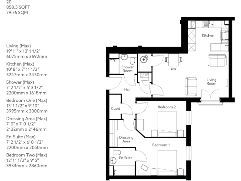
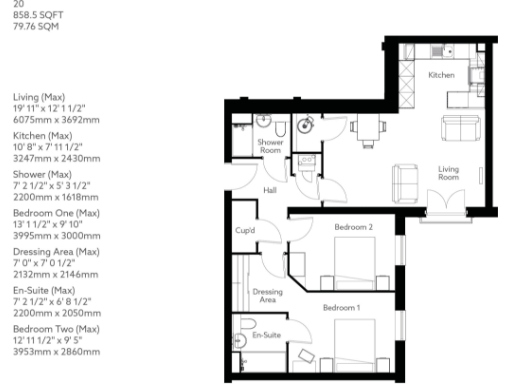
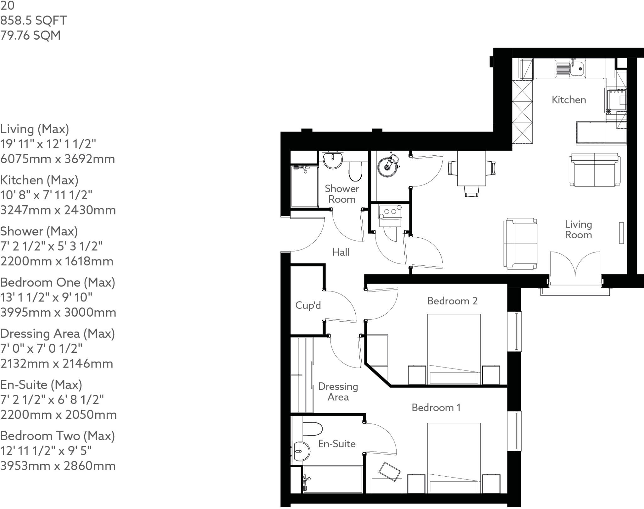
First-floor two-bedroom apartment, 858 sq ft
A bright two-bedroom apartment in a purpose-built scheme for older residents, located in the attractive village of Burley in Wharfedale. The first-floor flat measures 858 sq ft and enjoys a North East Juliette balcony overlooking well-maintained communal gardens, plus a spacious living room and thoughtfully designed kitchen with waist-height oven and integrated fridge-freezer.
The development offers practical on-site support: a dedicated House Manager, 24-hour emergency system, camera entry, communal lounge, patio and a guest suite for visiting family. Built in 2022, the apartment is sold as shared ownership with long lease remaining (988 years) and fitted throughout with flooring, curtains and light fittings.
Important practical points: heating is by electric room heaters, which can be more expensive than central heating, and the property is leasehold with a service charge of £407 pcm. Shared ownership pathways are available (example: 50% share at £177,500 plus rent, or 75% share at £266,250 with no rent); prospective buyers should check exact share options, ongoing charges and council tax band before committing.
This apartment will suit someone seeking low-exertion living in a very affluent, well-connected village setting with easy access to local cafés, shops and countryside walks. It offers immediate move-in condition with scope for cosmetic personalisation rather than structural work.
2 bedroom retirement property for sale in Summer Court,
Burley In Wharfedale,
LS29 7NA
, LS29 — £270,000 • 2 bed • 1 bath • 858 ft²
1 bedroom retirement property for sale in Summer Court,
Burley In Wharfedale,
LS29 7NA
, LS29 — £183,750 • 1 bed • 1 bath • 560 ft²
2 bedroom retirement property for sale in Summer Court,
Burley In Wharfedale,
LS29 7NA
, LS29 — £384,950 • 2 bed • 1 bath • 775 ft²
2 bedroom retirement property for sale in Summer Court,
Burley In Wharfedale,
LS29 7NA
, LS29 — £354,950 • 2 bed • 1 bath • 767 ft²
1 bedroom retirement property for sale in Summer Court,
Burley In Wharfedale,
LS29 7NA
, LS29 — £259,950 • 1 bed • 1 bath • 560 ft²
2 bedroom apartment for sale in Summer Court, Burley In Wharfedale, LS29 — £400,000 • 2 bed • 1 bath • 560 ft²






































































