Bright, low-maintenance living near village amenities and countryside walks.
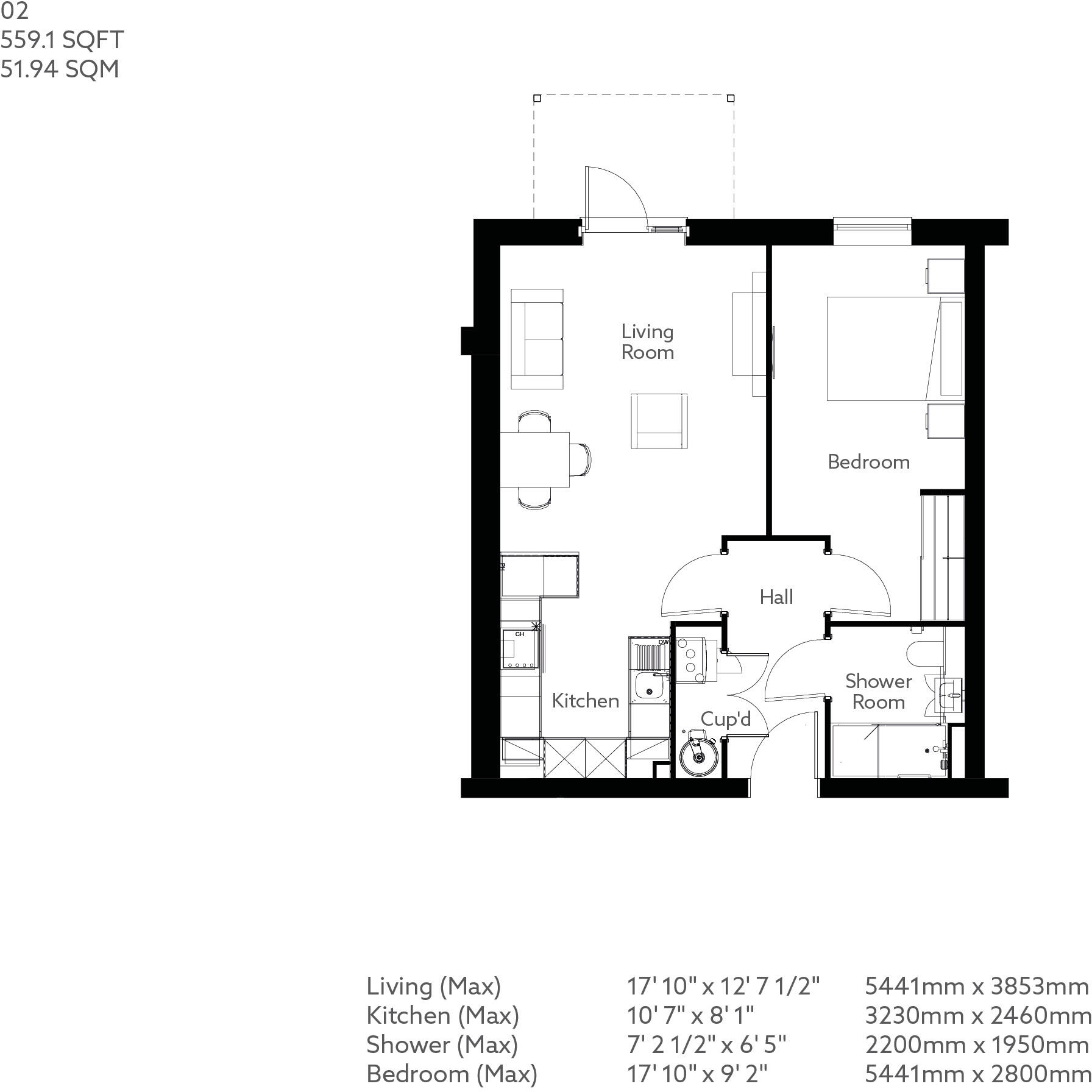
Ground-floor one-bedroom apartment, 560 sq ft
Private north-west facing patio
Fitted kitchen with integrated appliances
Separate utility cupboard with washer-dryer
On-site House Manager and 24-hour emergency system
Camera entry system and communal lounge, guest suite
Shared ownership leasehold; various share options available
Electric room heaters — potential higher running costs
A practical, purpose-built one-bedroom retirement apartment on the ground floor, ideal for downsizers seeking low-maintenance living in Burley in Wharfedale. The 560 sq ft layout includes a bright living room, fitted kitchen with integrated appliances, separate utility cupboard for the washer-dryer, and a private north-west facing patio for morning sun and fresh air.
The development offers communal social space, an elegant lounge and patio, plus a guest suite and camera entry system. A dedicated House Manager is on site to help keep day-to-day running smooth and an emergency call system is available, providing added reassurance for older residents.
This is a shared ownership leasehold home (examples: 50% share with rent, or 75% share with no rent). The lease is long (988 years) and service charges are shown at £281 pcm (below average). Heating is by electric room heaters; this is efficient for a new-build but may mean higher energy costs compared with gas-heated homes.
Comfortable modern finishes, fitted flooring throughout and fast broadband/mobile signal make this apartment move-in ready. Note the tenure is leasehold with shared ownership arrangements and council tax banding is not provided — investigate ownership share options and running costs before committing.
2 bedroom retirement property for sale in Summer Court,
Burley In Wharfedale,
LS29 7NA
, LS29 — £266,250 • 2 bed • 1 bath • 858 ft²
2 bedroom retirement property for sale in Summer Court,
Burley In Wharfedale,
LS29 7NA
, LS29 — £270,000 • 2 bed • 1 bath • 858 ft²
2 bedroom apartment for sale in Summer Court, Burley In Wharfedale, LS29 — £400,000 • 2 bed • 1 bath • 560 ft²
1 bedroom apartment for sale in Summer Court, Burley In Wharfedale, LS29 — £275,000 • 1 bed • 1 bath • 560 ft²
1 bedroom retirement property for sale in Summer Court,
Burley In Wharfedale,
LS29 7NA
, LS29 — £259,950 • 1 bed • 1 bath • 560 ft²
2 bedroom retirement property for sale in Summer Court,
Burley In Wharfedale,
LS29 7NA
, LS29 — £384,950 • 2 bed • 1 bath • 775 ft²






































































