Modern low-maintenance apartment with onsite support and village walks.
Two bedrooms, 767 sq ft — generous retirement apartment size
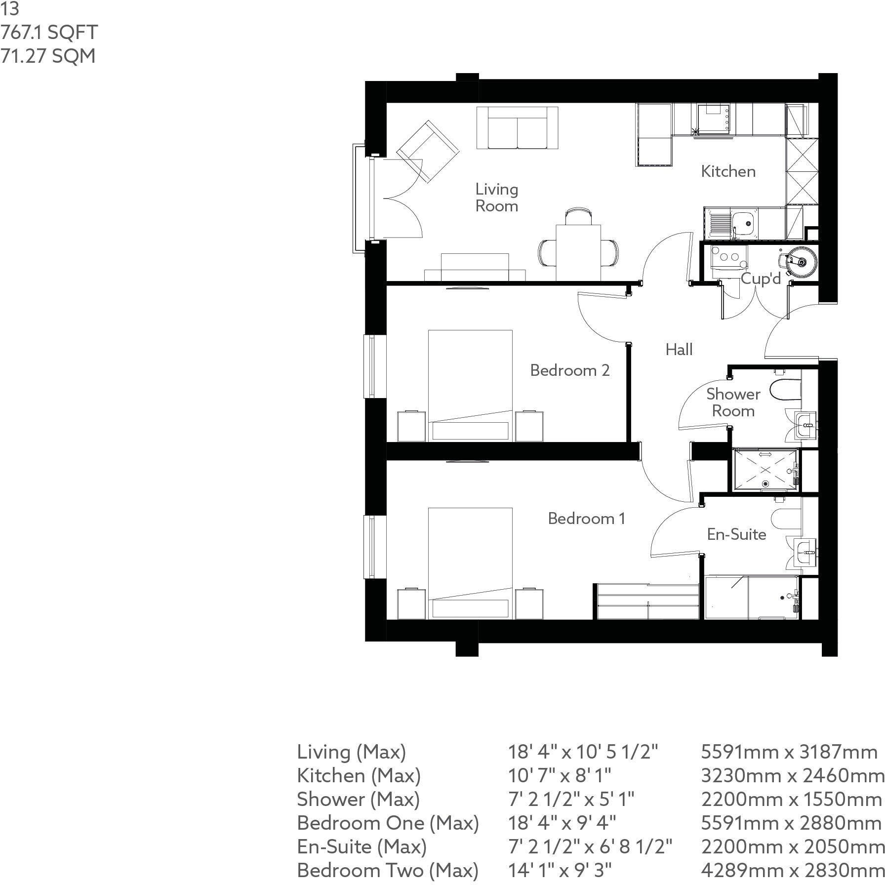
Apartment 13 at Summer Court is a bright, purpose-built retirement apartment arranged over 767 sq ft on the first floor, with a north-west Juliette balcony that brings in afternoon light. The living room and bedrooms are finished in a contemporary natural palette and the kitchen includes waist-height oven and integrated fridge-freezer for easier daily use. Fitted flooring throughout keeps maintenance low and communal grounds, patio and lounge provide sociable spaces with well-kept landscaping.
The development was completed in 2022 and benefits from an onsite House Manager, camera entry system, guest suite and allocated off-street parking — practical features for long-term comfort and peace of mind. Located in Burley in Wharfedale, the apartment is well placed for village amenities, excellent walking country and good transport links to surrounding towns.
Practical points to note: this is a leasehold retirement property (lease remaining 997 years) and the apartment uses electric room heaters as the main heating source, which may affect running costs compared with gas central heating. Council tax band is not specified. Overall this is a low-maintenance, modern retirement apartment suited to downsizers seeking a village setting with on-site support and social facilities.
2 bedroom retirement property for sale in Summer Court,
Burley In Wharfedale,
LS29 7NA
, LS29 — £266,250 • 2 bed • 1 bath • 858 ft²
2 bedroom retirement property for sale in Summer Court,
Burley In Wharfedale,
LS29 7NA
, LS29 — £270,000 • 2 bed • 1 bath • 858 ft²
2 bedroom retirement property for sale in Summer Court,
Burley In Wharfedale,
LS29 7NA
, LS29 — £384,950 • 2 bed • 1 bath • 775 ft²
2 bedroom apartment for sale in Summer Court, Burley In Wharfedale, LS29 — £400,000 • 2 bed • 1 bath • 560 ft²
1 bedroom retirement property for sale in Summer Court,
Burley In Wharfedale,
LS29 7NA
, LS29 — £183,750 • 1 bed • 1 bath • 560 ft²
1 bedroom apartment for sale in Summer Court, Burley In Wharfedale, LS29 — £275,000 • 1 bed • 1 bath • 560 ft²














































































