Low-maintenance village living with on-site House Manager and communal facilities.
South-west Juliette balcony with natural light
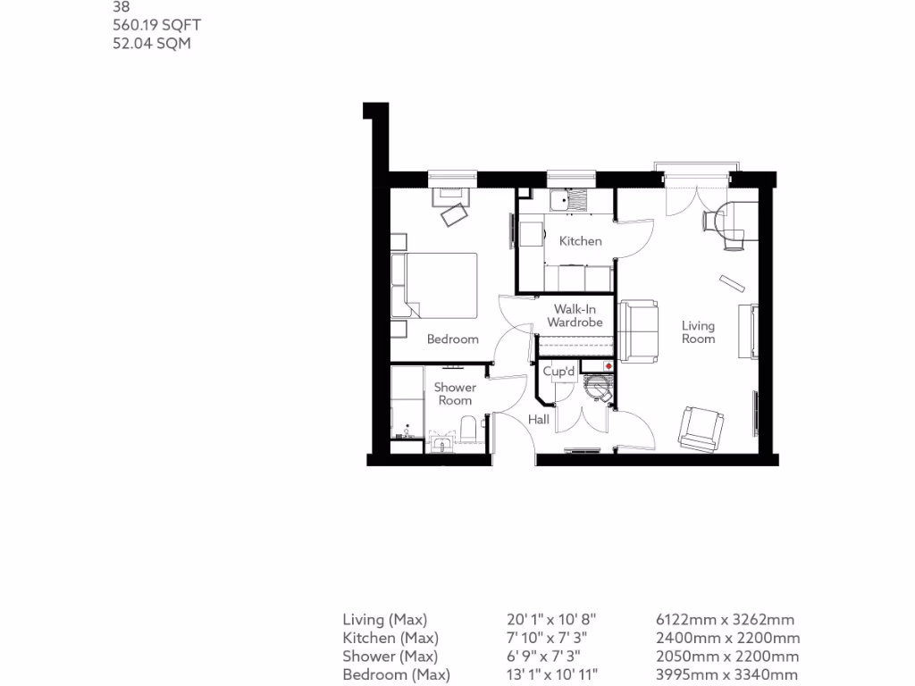
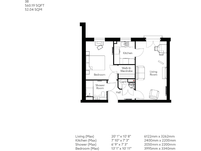
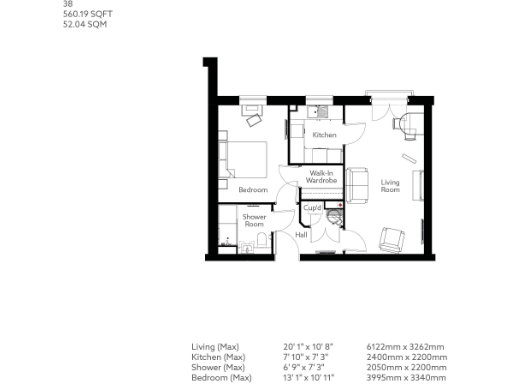
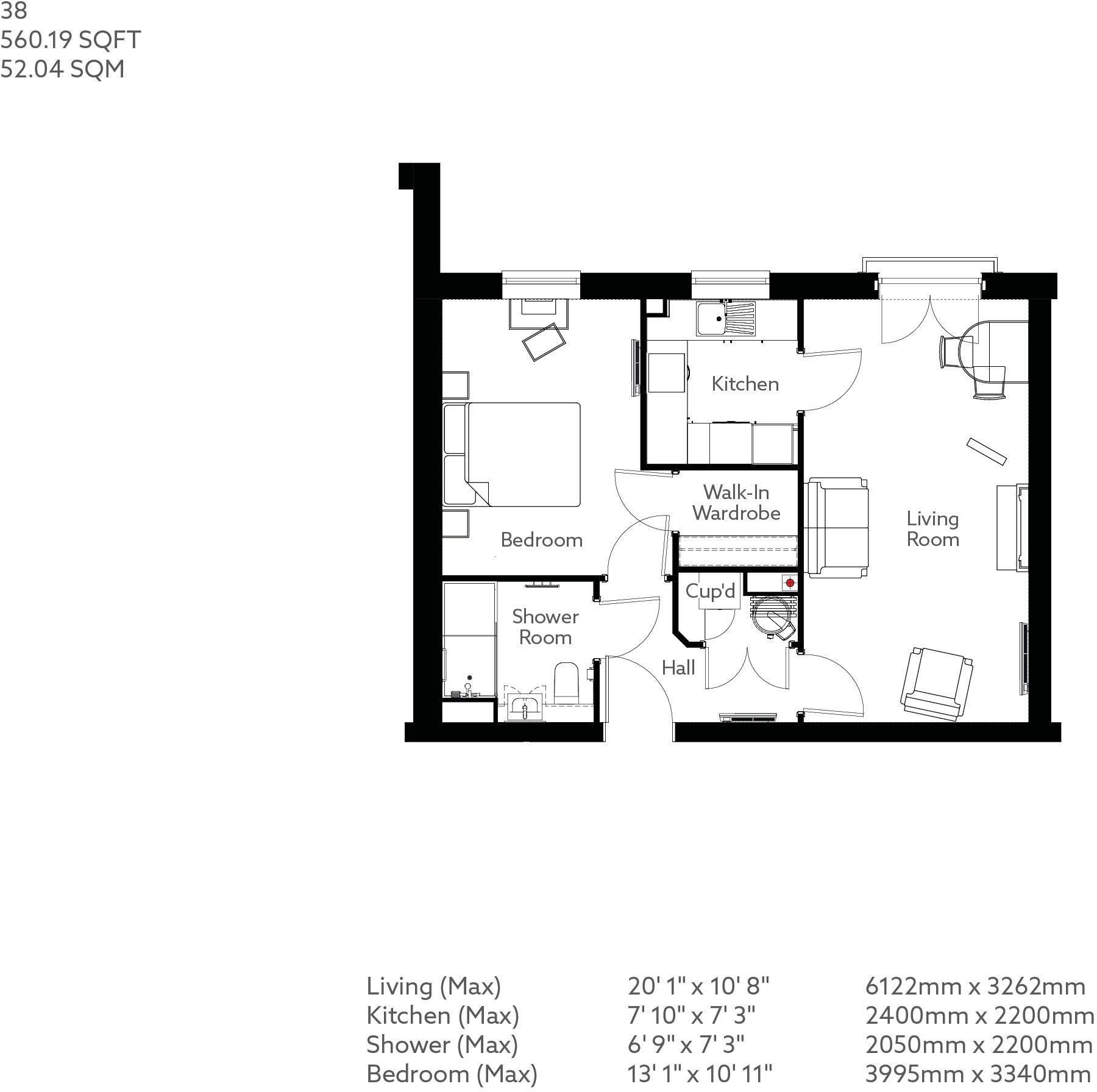
Apartment 38 is a purpose-built one-bedroom retirement apartment on the second floor of a modern 2022 development in Burley in Wharfedale. The 560 sq ft home benefits from a south-west Juliette balcony, a bright open-plan kitchen/living area with integrated appliances, and fitted flooring throughout. A dedicated House Manager, guest suite and an elegant communal lounge and patio provide easy social life and low-maintenance living.
This property suits downsizers seeking convenience and village life — close to cafes, shops and scenic walking routes. The development sits around maintained communal gardens and offers a calm, well-connected setting with excellent mobile signal and fast broadband. The long lease (997 years) removes immediate lease concerns.
Practical points to check before viewing: the apartment uses electric room heaters (confirm operating costs and tariff) and is on the second floor (verify lift access if mobility is a concern). Tenure is leasehold; council tax band and service charge details should be confirmed. Overall, it presents a modern, low-upkeep choice for retirees wanting a sociable, village-centre base.
2 bedroom retirement property for sale in Summer Court,
Burley In Wharfedale,
LS29 7NA
, LS29 — £384,950 • 2 bed • 1 bath • 775 ft²
2 bedroom retirement property for sale in Summer Court,
Burley In Wharfedale,
LS29 7NA
, LS29 — £270,000 • 2 bed • 1 bath • 858 ft²
2 bedroom flat for sale in Summer Court, Burley in Wharfedale, Ilkley, West Yorkshire, LS29 — £379,950 • 2 bed • 1 bath • 861 ft²
2 bedroom retirement property for sale in Summer Court,
Burley In Wharfedale,
LS29 7NA
, LS29 — £354,950 • 2 bed • 1 bath • 767 ft²
1 bedroom apartment for sale in Summer Court, Burley In Wharfedale, LS29 — £275,000 • 1 bed • 1 bath • 560 ft²
1 bedroom retirement property for sale in Summer Court,
Burley In Wharfedale,
LS29 7NA
, LS29 — £183,750 • 1 bed • 1 bath • 560 ft²






























































