Compact, energy-efficient family home with garage and garden, close to Telford connections.
18ft lounge and open-plan kitchen/diner with French doors to garden|Energy-efficient new build with modern fixtures and fittings|Single garage, parking and a decent-size private garden|Principal bedroom with en-suite; bedroom 3 ideal as a study|Compact overall size — approx. 618 sq ft; limited living space|Some homes still under construction; completion dates vary|Annual service charge £150; reservation fee £500 |Kitchen/diner and some rooms are modest in size (see dimensions)
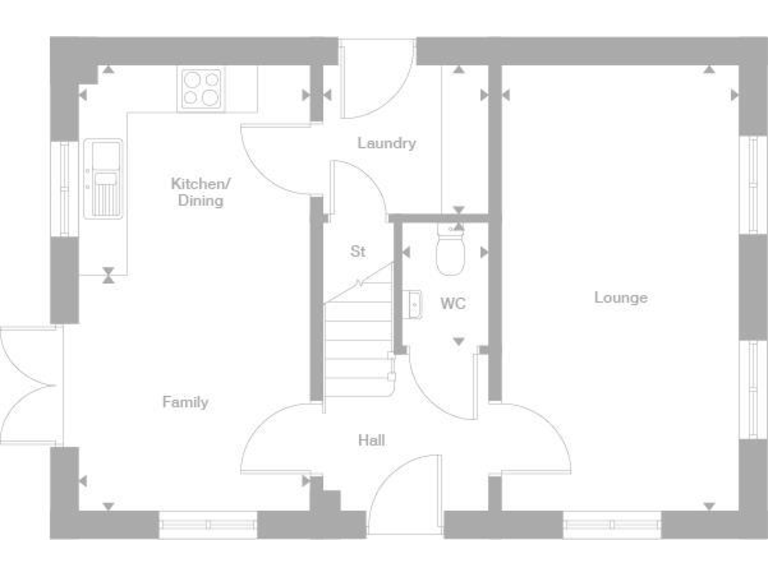
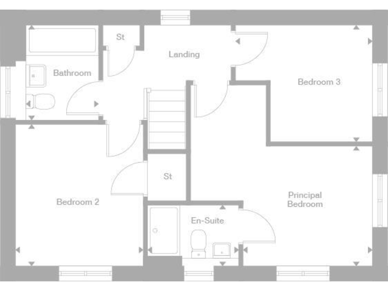
This three-bedroom detached Braxton home in Priorslee offers compact, efficient living for families seeking modern finishes and easy commuting. The layout includes an 18ft lounge, an open-plan kitchen/diner with French doors to the garden, a useful laundry room and downstairs WC. The principal bedroom has an en-suite and bedroom three can double as a home study.
The home is energy efficient and comes with a single garage, private garden and parking. The development sits close to Telford with quick access to the A5 and M54, and local schools include several highly rated primaries and secondaries nearby — appealing for families.
These plots are new build and some homes are still under construction, so completion dates vary and some fixtures may be chosen from available options. The overall internal area is compact (approx. 618 sq ft), so storage and living spaces are modest compared with larger family houses. Annual service charge is £150 and council tax is low (band B), which helps running costs.
3 bedroom semi-detached house for sale in Priorslee,
Telford
TF2 9WN, TF2 — £259,950 • 3 bed • 1 bath • 557 ft²
3 bedroom detached house for sale in Off Castle Farm Way, Priorslee,
Telford,
TF2 5AB, TF2 — £320,000 • 3 bed • 1 bath • 618 ft²
4 bedroom detached house for sale in Priorslee,
Telford
TF2 9WN, TF2 — £365,000 • 4 bed • 1 bath • 665 ft²
3 bedroom semi-detached house for sale in Priorslee,
Telford
TF2 9WN, TF2 — £265,000 • 3 bed • 1 bath • 557 ft²
4 bedroom detached house for sale in Priorslee,
Telford
TF2 9WN, TF2 — £395,000 • 4 bed • 1 bath • 862 ft²
3 bedroom detached house for sale in Priorslee,
Telford
TF2 9WN, TF2 — £315,000 • 3 bed • 1 bath • 624 ft²














































