### Standout Features:
- **Modern New Build**: Attractive semi-detached home with a contemporary design.
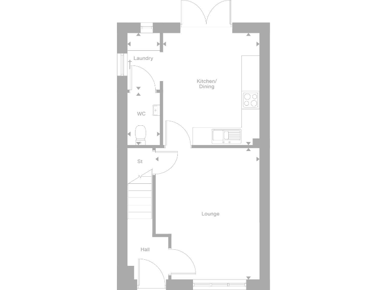
- **Spacious Kitchen/Diner**: French doors create an airy, adaptable space for family gatherings.
- **Separate Laundry Room**: Added convenience with a downstairs WC.
- **En-Suite Principal Bedroom**: Features built-in storage for maximum efficiency.
- **10-Year NHBC Warranty**: Peace of mind with new build assurance.
- **Off-Street Parking**: Convenient spaces for residents.
- **Garden**: Private outdoor space perfect for relaxation or entertainment.
### Summary:
Coming soon to the desirable Priorslee area, this charming three-bedroom semi-detached home promises modern comfort and convenience at an attractive price point of £265,000. The inviting kitchen/dining area boasts French doors that seamlessly integrate indoor and outdoor living, perfect for families or entertaining. The separate laundry room and downstairs WC enhance functionality, while the en-suite principal bedroom adds a touch of luxury.
With three bedrooms, a total of ten versatile rooms, and a decent garden, this property offers plenty of potential for personalization. Benefiting from a 10-year NHBC warranty and off-street parking, this chain-free gem is a compelling option for families or first-time buyers seeking a low-maintenance, contemporary lifestyle in a comfortable suburban setting. Furthermore, with excellent local schools and fast broadband, this home is not only an investment in property, but an investment in quality living. This opportunity won't last long—secure your future today!
3 bedroom detached house for sale in Priorslee,
Telford
TF2 9WN, TF2 — £305,000 • 3 bed • 1 bath • 624 ft²
3 bedroom semi-detached house for sale in York Road, Priorslee, TF2 — £264,950 • 3 bed • 2 bath • 617 ft²
2 bedroom semi-detached house for sale in Off Castle Farm Way, Priorslee,
Telford,
TF2 5AB, TF2 — £240,000 • 2 bed • 1 bath • 582 ft²
4 bedroom detached house for sale in Priorslee,
Telford
TF2 9WN, TF2 — £375,500 • 4 bed • 1 bath • 665 ft²
4 bedroom detached house for sale in Priorslee,
Telford
TF2 9WN, TF2 — £415,000 • 4 bed • 1 bath • 981 ft²
3 bedroom semi-detached house for sale in Ernest Dawes Avenue, Priorslee, Telford, TF2 9XA., TF2 — £290,000 • 3 bed • 2 bath • 888 ft²














































