Spacious family living with garden, garage and low running costs.
- New-build detached home with 10-year NHBC warranty
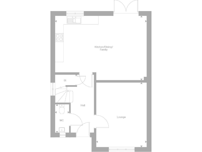
- Open-plan kitchen/family room with French doors to garden
- Principal bedroom with en-suite plus family bathroom
- Solar panels fitted; energy-efficient new-build features
- Single garage and parking; decent private plot
- Total internal size approx. 665 sq ft (compact rooms)
- Annual service charge £150; council tax TBC
- Best suited to buyers seeking modern, low-maintenance family home
This new-build four-bedroom detached home in Priorslee is arranged around a large open-plan kitchen/diner and family area that opens through French doors onto a private garden. The layout suits family life and social entertaining, with a separate 14ft lounge for quieter evenings and a principal bedroom with en-suite for added privacy.
Built with modern efficiency in mind, the house comes with a 10-year NHBC warranty and solar panels fitted to reduce running costs. The plot is described as decent and there is a single garage plus parking, making it practical for a household with one or two cars.
Room sizes are compact overall (total approx. 665 sq ft), so the property will suit buyers seeking a new, efficient family home rather than expansive living space. There is an annual service charge of £150 and council tax banding is still to be confirmed. Buyers who want specific finishes can personalise kitchens, flooring and other options through the developer’s available upgrades.
This home sits in a comfortable suburb with fast broadband and excellent mobile signal, close to several well-ranked primary and secondary schools. It is best suited to families or professionals wanting a modern, low-maintenance house in an affluent area, but those needing larger rooms should note the compact overall footprint.
3 bedroom semi-detached house for sale in Priorslee,
Telford
TF2 9WN, TF2 — £259,950 • 3 bed • 1 bath • 557 ft²
4 bedroom detached house for sale in Priorslee,
Telford
TF2 9WN, TF2 — £375,500 • 4 bed • 1 bath • 665 ft²
3 bedroom semi-detached house for sale in Priorslee,
Telford
TF2 9WN, TF2 — £265,000 • 3 bed • 1 bath • 557 ft²
4 bedroom detached house for sale in Priorslee,
Telford
TF2 9WN, TF2 — £395,000 • 4 bed • 1 bath • 862 ft²
3 bedroom detached house for sale in Priorslee,
Telford
TF2 9WN, TF2 — £305,000 • 3 bed • 1 bath • 624 ft²
4 bedroom detached house for sale in Ernest Dawes Avenue, Priorslee, Telford, Shropshire, TF2 — £465,000 • 4 bed • 2 bath • 1540 ft²














































