Compact energy-efficient home with garden and parking ideal for growing families.
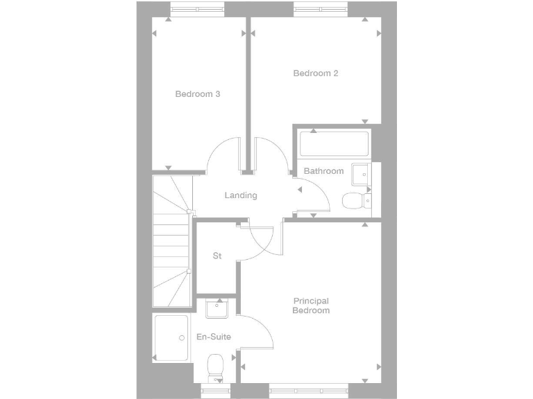
Three-bedroom detached new-build with en-suite principal bedroom.
This three-bedroom detached new-build offers a compact, efficient layout suited to families or professionals who prioritise low-maintenance modern living. The ground floor has a bright open-plan kitchen/dining area with French doors onto a decent private garden, and a 15ft lounge. The principal bedroom includes an en-suite and a walk-in cupboard; bedroom three is compact and works well as a study or single room.
Energy-efficient features such as solar panels and integrated kitchen appliances reduce running costs, while excellent mobile signal and fast broadband support home working. Off-street parking adds practical convenience for a household with one or two cars. The development is set in a comfortable suburban area with several highly rated primary and secondary schools nearby.
Important practical points: the property's overall footprint is small (approximately 624 sq ft), so living and storage space is limited compared with larger family homes. There is a modest annual service charge of £150 and council tax band is yet to be confirmed. The compact third bedroom and single family bathroom may suit smaller families or buyers wanting a home office rather than larger households.
Overall this plot is a tidy, energy-conscious option for buyers seeking a low-upkeep detached home in a very affluent, well-connected suburb. It will appeal to first-time or growing families who value location, school quality and modern finishes, and to investors looking for a straightforward, well-specified new build.
3 bedroom semi-detached house for sale in Priorslee,
Telford
TF2 9WN, TF2 — £259,950 • 3 bed • 1 bath • 557 ft²
4 bedroom detached house for sale in Priorslee,
Telford
TF2 9WN, TF2 — £375,500 • 4 bed • 1 bath • 665 ft²
3 bedroom semi-detached house for sale in Priorslee,
Telford
TF2 9WN, TF2 — £265,000 • 3 bed • 1 bath • 557 ft²
4 bedroom detached house for sale in Priorslee,
Telford
TF2 9WN, TF2 — £365,000 • 4 bed • 1 bath • 665 ft²
4 bedroom detached house for sale in Redhill,
Telford,
TF2 9PF, TF2 — £426,995 • 4 bed • 1 bath • 974 ft²
3 bedroom terraced house for sale in Telford,
TF2 5AB, TF2 — £250,000 • 3 bed • 1 bath • 814 ft²


































































