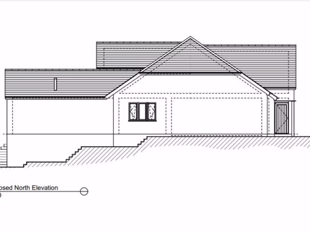
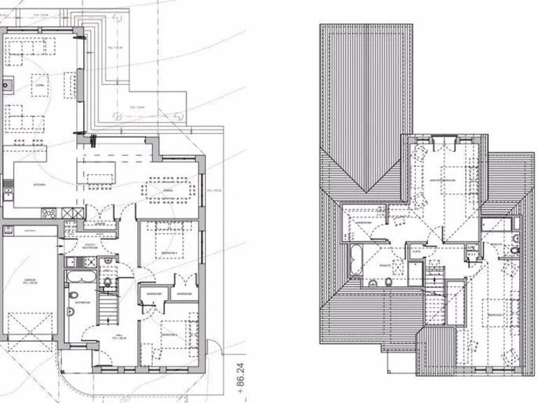
Reserved matters approval March 2023 (PA22/07320)
This freehold building plot sits at the end of a no-through road, backing onto mature woodland and farmland to offer far-reaching rural views and a secluded feel. Reserved matters approval was granted in March 2023 (PA22/07320), with an architect-designed scheme for a contemporary four-bedroom house (two en-suites). A material start has been made on site, keeping the consent live.
The site is overgrown with tall grasses and scrub on gently sloping ground and will require clearance and basic site preparation. No services are currently connected, so buyers should budget for utility connections and normal build costs. Broadband speeds are reported as slow.
Despite its tucked-away position the plot is within easy reach of Illogan and Redruth, with the A30 and Redruth mainline station nearby for wider travel links. Truro and Falmouth are around twelve to thirteen miles away; the north coast at Portreath is about 2.5 miles. Flood risk is nil and local crime levels are very low.
This plot suits a buyer or small developer wanting a single architect-designed dwelling in a semi-rural location. The principal value drivers are the live planning consent, the rural outlook and the quiet setting; practical considerations include site clearance, service connections and any reserved matters conditions.
Plot for sale in Trevarth, Near Lanner, TR16 — £200,000 • 1 bed • 1 bath • 1123 ft²
Plot for sale in Whitehall, Scorrier, TR16 — £250,000 • 1 bed • 1 bath
Residential development for sale in Land At Treleigh, Treleigh, Redruth, Cornwall, TR16 4BE, TR16 — £825,000 • 1 bed • 1 bath
Land for sale in Exciting opportunity, Near Trannack, TR13 — £250,000 • 1 bed • 1 bath
Plot for sale in Carn View, Crowntown, TR13 — £130,000 • 1 bed • 1 bath • 1095 ft²
4 bedroom detached house for sale in Station Road, Perranporth, TR6 — £250,000 • 4 bed • 1 bath


























