Two-acre plot with detailed planning for a restored period cottage and modern extension, sold chain free..
- Detailed planning permission granted (PA23/06726) for renovation and extension
- Substantial plot: approximately two acres with open countryside views
- Services on site: mains water and electricity; sewage unit installed but unconnected
- Two capped mine shafts; contamination reports and some remediation steps completed
- Multiple planning conditions: contamination remediation, materials and landscaping approvals
- Green roof approved; maintenance plan required prior to installation
- Overage clause: only one property allowed on site for a 20‑year period
- Requires renovation and compliance with planning conditions before building
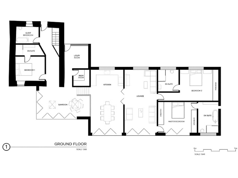
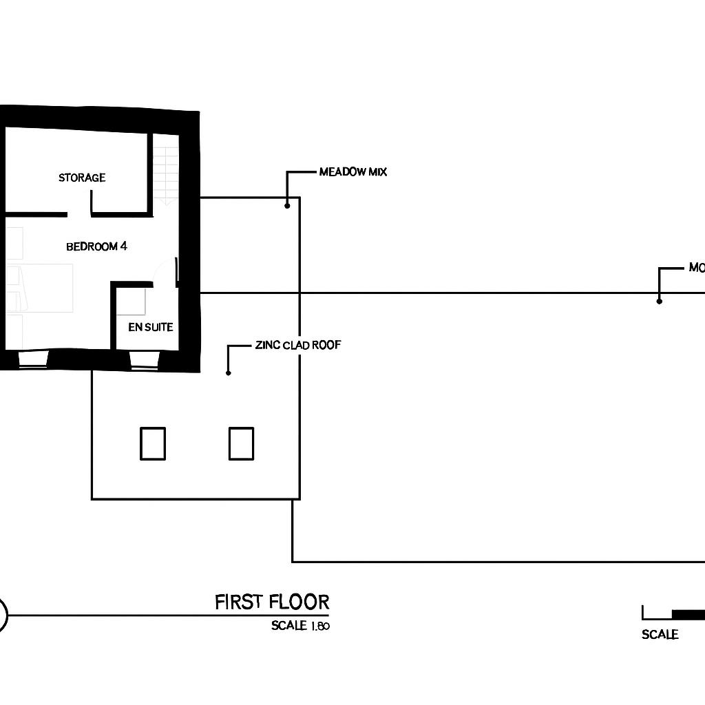
An individual building plot of approximately two acres on the outskirts of Chacewater with detailed planning permission (PA23/06726) for restoration and a substantial extension to a 250‑year‑old cottage. The approved scheme creates a large four‑bedroom home blending the original cottage character with a contemporary single‑storey extension and green roof. Services are on‑site (mains water and electricity) and a sewage treatment unit has been installed though it is not yet connected.
The vendor has already taken preparatory steps: site clearance, mining searches with two shafts capped, and contamination and remediation reports produced. Permission was granted in January 2024 but is conditional — the buyer must satisfy contamination assessment/remediation, detailed material and landscaping approvals, a green roof maintenance plan, and commence works within three years. There is also an overage clause limiting development to a single property for a 20‑year period (four years elapsed as of June 2025).
This plot suits a purchaser seeking privacy, generous grounds and the chance to create a substantial countryside family home with a mix of period character and modern living. Be aware this is a project property: the scheme carries multiple planning conditions, the dwelling requires renovation and compliance with remediation and detailing requirements before occupation. Sold freehold and chain free.
3 bedroom cottage for sale in Rural Chacewater, TR4 — £350,000 • 3 bed • 1 bath • 1935 ft²
Plot for sale in Greenbottom, Nr. Truro, TR4 — £250,000 • 1 bed • 1 bath • 3400 ft²
Plot for sale in BUILDING PLOT - Menagissey, Mount Hawke, Near Truro, TR4 — £250,000 • 1 bed • 1 bath
Plot for sale in West Tolgus Illogan - Individual building plot with rural views, TR15 — £280,000 • 1 bed • 1 bath
Land for sale in Exciting opportunity, Near Trannack, TR13 — £250,000 • 1 bed • 1 bath
2 bedroom detached house for sale in Tomperrow, Threemilestone, Truro, Cornwall, TR3 — £400,000 • 2 bed • 1 bath • 1141 ft²


















































