**Standout Features:**
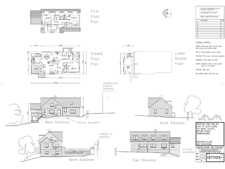
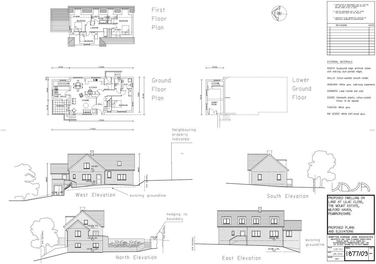
- Full planning permission for a detached four-bedroom family home
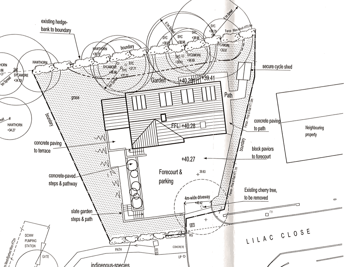
- Generous off-road parking available
- Quiet yet accessible location near Milford Haven Marina
- Close to coastal paths and local amenities
- Large plot with significant development opportunity
**Summary:**
Unlock the potential of this large plot in the serene setting of Lilac Close, Milford Haven, SA73, where full planning permission has been granted for the construction of a modern four-bedroom family home. Designed with contemporary living in mind, the proposed residence offers a spacious layout and includes generous off-road parking—a rarity in desirable locations. 
Nestled in a tranquil yet accessible area, this plot is ideally situated for those who crave both peaceful living and vibrant community life. Enjoy the close proximity to Milford Marina with its array of dining and entertainment options, as well as scenic coastal paths perfect for nature lovers or active lifestyles. It's a remarkable chance to create a bespoke home and truly personalize your living space.
While the land currently does not have any connected services and is located in an area with high crime rates, the benefits of fast broadband and excellent mobile signal provide modern conveniences for potential homeowners. Whether you're an investor looking for a valuable development opportunity or a family yearning to craft your dream home, this plot presents the chance to build in a picturesque Pembrokeshire setting. Don't miss your opportunity to turn this vision into reality!
 Plot for sale in Woodland Crescent, Milford Haven, SA73 — £110,000 • 4 bed • 2 bath • 930 ft²
 Plot for sale in Woodland Crescent, Milford Haven, SA73 — £110,000 • 4 bed • 2 bath • 930 ft² Plot for sale in Woodland Crescent, Milford Haven, SA73 — £110,000 • 4 bed • 2 bath • 678 ft²
 Plot for sale in Woodland Crescent, Milford Haven, SA73 — £110,000 • 4 bed • 2 bath • 678 ft² Plot for sale in Woodland Crescent, Milford Haven, SA73 — £75,000 • 3 bed • 2 bath • 1345 ft²
 Plot for sale in Woodland Crescent, Milford Haven, SA73 — £75,000 • 3 bed • 2 bath • 1345 ft² Plot for sale in Liddeston Road, Havens Head, Milford Haven, SA73 — £120,000 • 1 bed • 1 bath
 Plot for sale in Liddeston Road, Havens Head, Milford Haven, SA73 — £120,000 • 1 bed • 1 bath Land for sale in Milton Terrace, Pembroke Dock, Pembrokeshire, SA72 — £50,000 • 1 bed • 1 bath
 Land for sale in Milton Terrace, Pembroke Dock, Pembrokeshire, SA72 — £50,000 • 1 bed • 1 bath 5 bedroom detached house for sale in Lilac Close, Milford Haven, SA73 — £370,000 • 5 bed • 2 bath • 2692 ft²
 5 bedroom detached house for sale in Lilac Close, Milford Haven, SA73 — £370,000 • 5 bed • 2 bath • 2692 ft²














































