**Standout Features:**
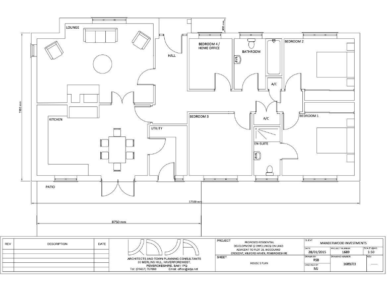
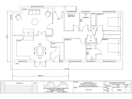
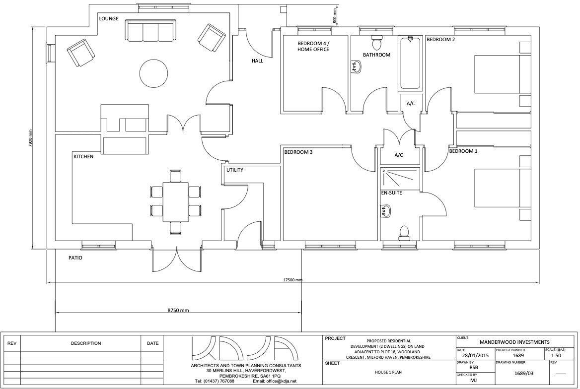
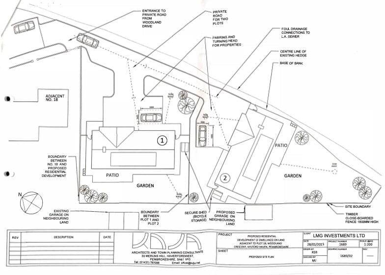
- Full planning permission for a four-bedroom detached bungalow
- Generous off-road parking included
- Quiet residential area in Milford Haven
- Close proximity to marina, coastal paths, and local amenities
- Excellent mobile signal and fast broadband speeds
- Freehold tenure
**Potential Downsides:**
- No services currently connected to the plot
- High local crime rate
- Area classified as very deprived
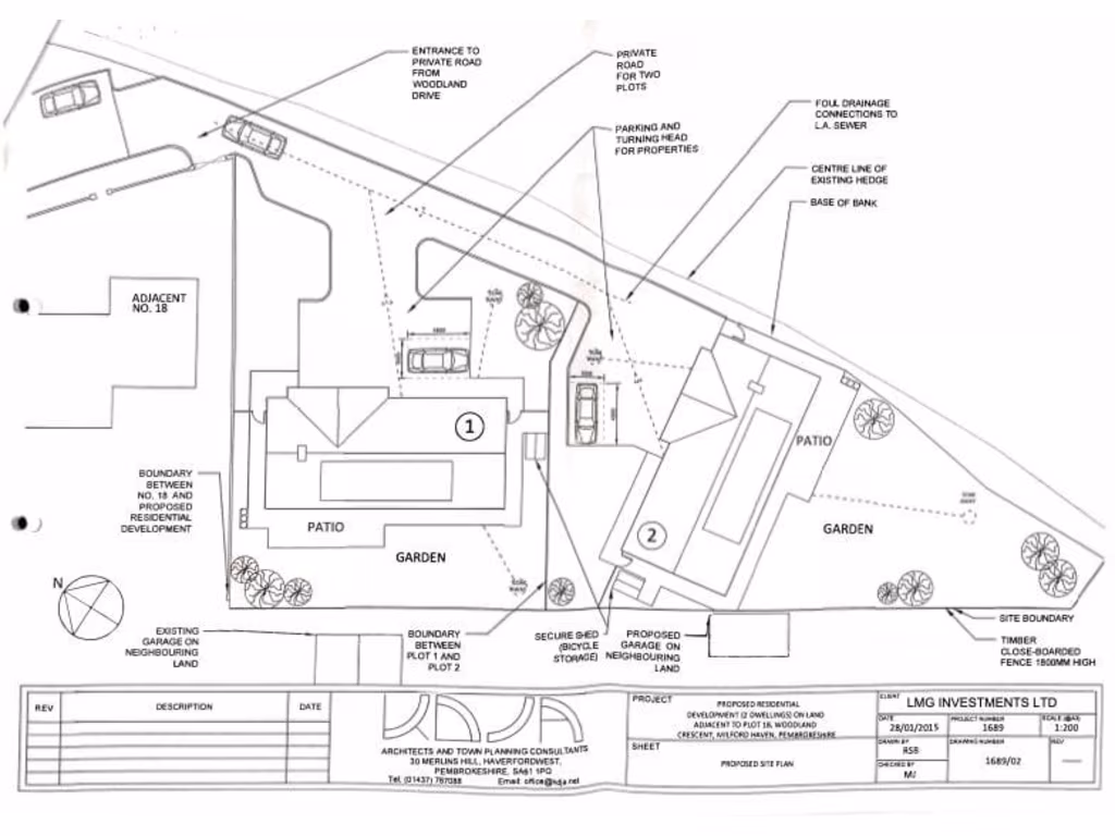
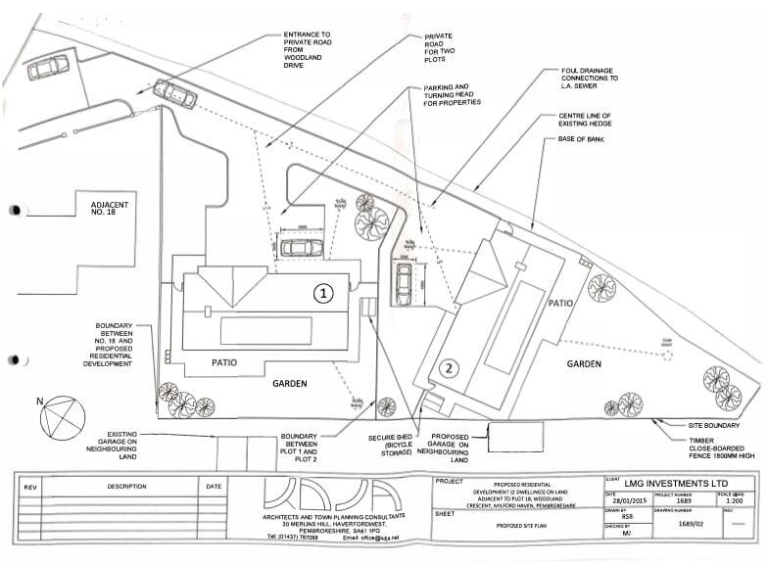
Transform your vision into reality with this appealing plot in Woodland Crescent, Milford Haven. With full planning permission to build a modern four-bedroom bungalow, this opportunity is perfect for buyers looking to create a bespoke home in a tranquil yet accessible environment. The generous layout allows for ample off-road parking, while the surrounding picturesque area promises stunning views and direct access to the marina and scenic coastal paths.
Although the plot requires utility connections and is situated in an area noted for high crime and deprivation, its potential is vast for those willing to invest both time and creativity. Ideal for families, nature enthusiasts, or even investors, this property is a chance to establish a serene haven in a vibrant and evolving community—don't let this opportunity pass you by!
Plot for sale in Woodland Crescent, Milford Haven, SA73 — £110,000 • 4 bed • 2 bath • 678 ft²
Plot for sale in Woodland Crescent, Milford Haven, SA73 — £75,000 • 3 bed • 2 bath • 1345 ft²
Plot for sale in Lilac Close, Milford Haven, SA73 — £110,000 • 4 bed • 3 bath • 1349 ft²
Plot for sale in Liddeston Road, Havens Head, Milford Haven, SA73 — £120,000 • 1 bed • 1 bath
Land for sale in Milton Terrace, Pembroke Dock, Pembrokeshire, SA72 — £50,000 • 1 bed • 1 bath
Plot for sale in Uzmaston Road, Haverfordwest, SA61 — £120,000 • 1 bed • 1 bath • 2336 ft²


































