**Standout Features:**
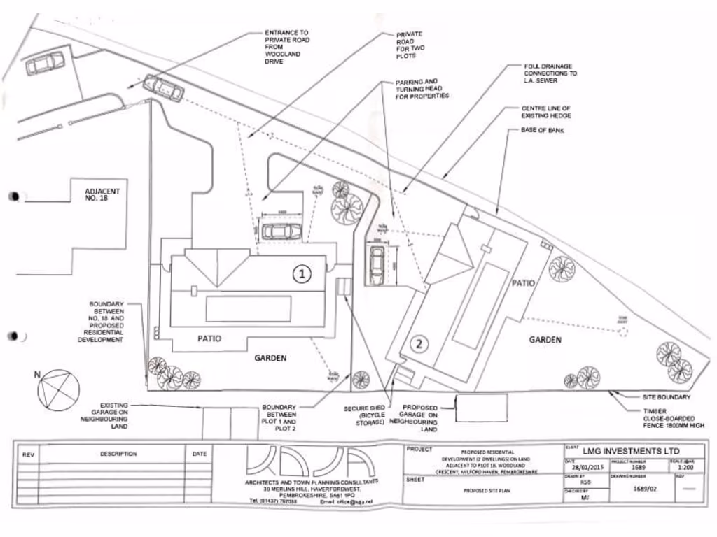
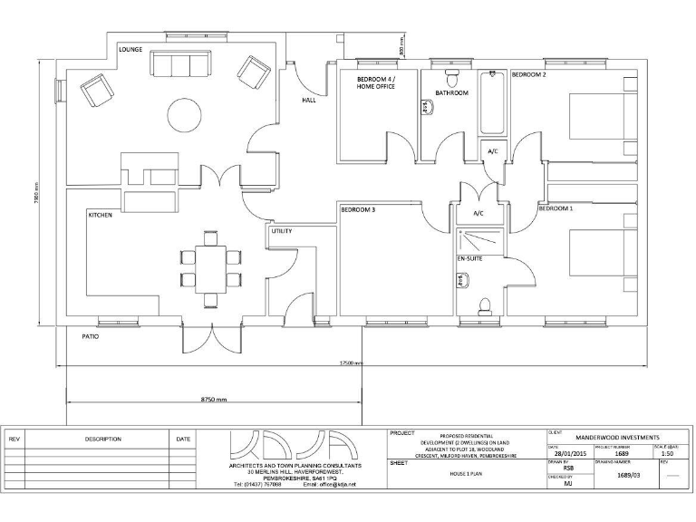
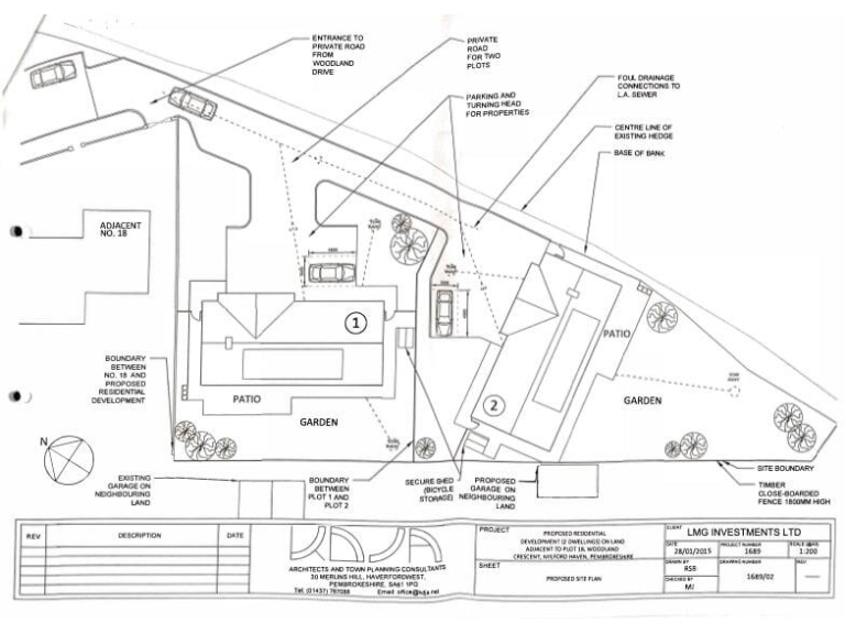
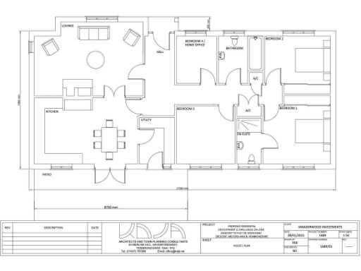
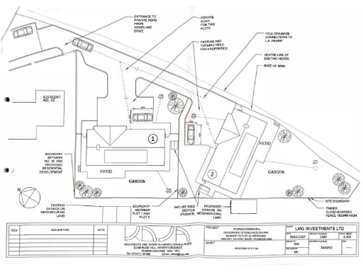
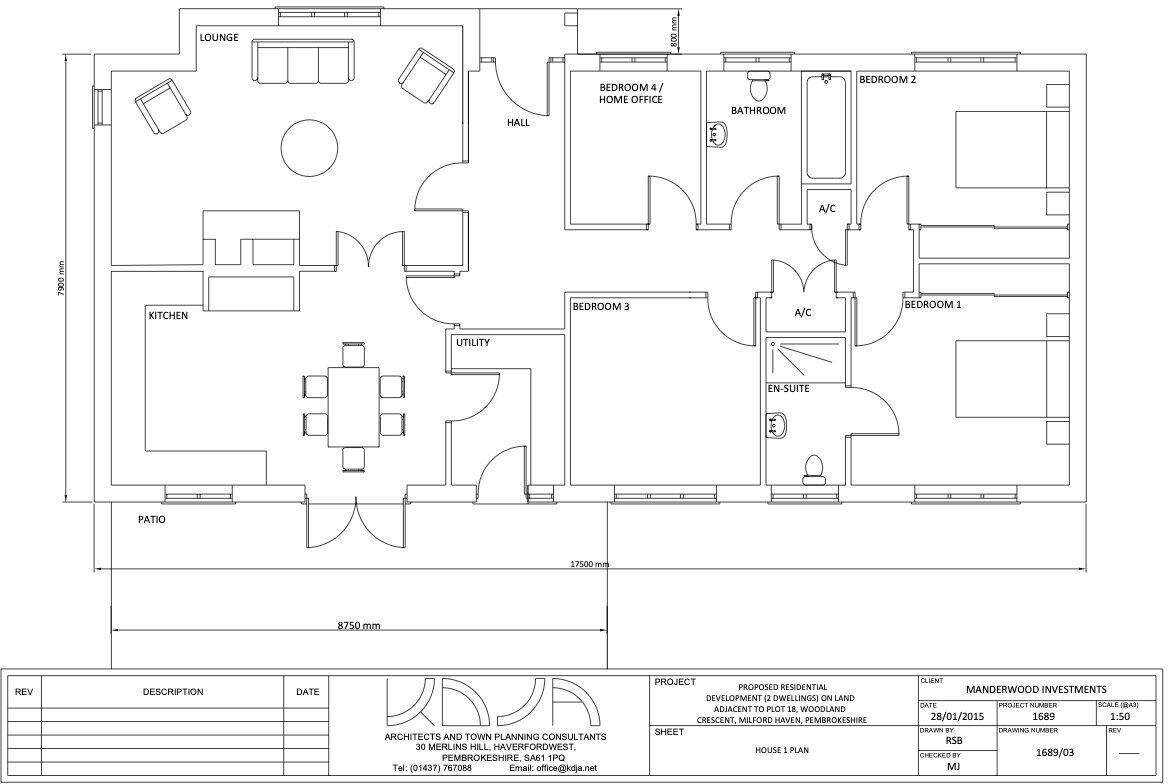
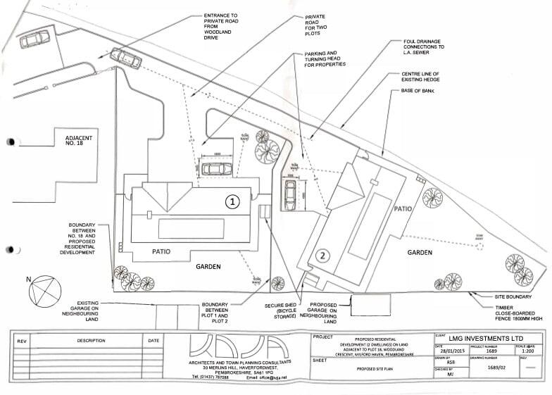
- Full planning permission for a detached four-bedroom bungalow (Planning Reference: 14/1175/PA)
- Contemporary design with potential for generous off-road parking
- Tranquil location near Milford Marina and scenic coastal paths
- Excellent mobile signal and fast broadband speeds
- Expansive views over rolling countryside and a nearby river
**Potential Concerns:**
- Currently no services connected to the plot
- Area is classified as having high crime and notable deprivation
Situated in the serene Woodland Crescent of Milford Haven, this plot offers an exceptional opportunity to build a bespoke four-bedroom bungalow with full planning permission already in place. Envision a modern home set in a peaceful yet accessible location, complete with generous off-road parking and a spacious garden area. While the community thrives on cultural and natural attractions—such as nearby Milford Marina and captivating coastal paths—be aware that no services are currently connected to the plot.
Prized for its tranquil living and stunning expansive vistas, this is more than just a plot; it’s a chance to create a future, surrounded by the enchanting beauty of Pembrokeshire. However, as this exceptional opportunity may not last long, we encourage interested parties to act swiftly before this unique offering slips away.
Plot for sale in Woodland Crescent, Milford Haven, SA73 — £110,000 • 4 bed • 2 bath • 930 ft²
Plot for sale in Woodland Crescent, Milford Haven, SA73 — £75,000 • 3 bed • 2 bath • 1345 ft²
Plot for sale in Lilac Close, Milford Haven, SA73 — £110,000 • 4 bed • 3 bath • 1349 ft²
Plot for sale in Liddeston Road, Havens Head, Milford Haven, SA73 — £120,000 • 1 bed • 1 bath
Land for sale in Milton Terrace, Pembroke Dock, Pembrokeshire, SA72 — £50,000 • 1 bed • 1 bath
Plot for sale in Uzmaston Road, Haverfordwest, SA61 — £120,000 • 1 bed • 1 bath • 2336 ft²






































