Ready-to-build corner site with rooftop garden and town views.
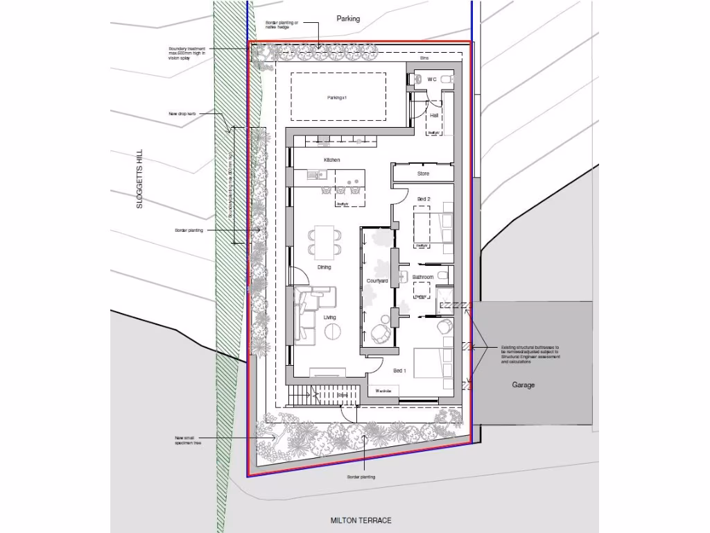
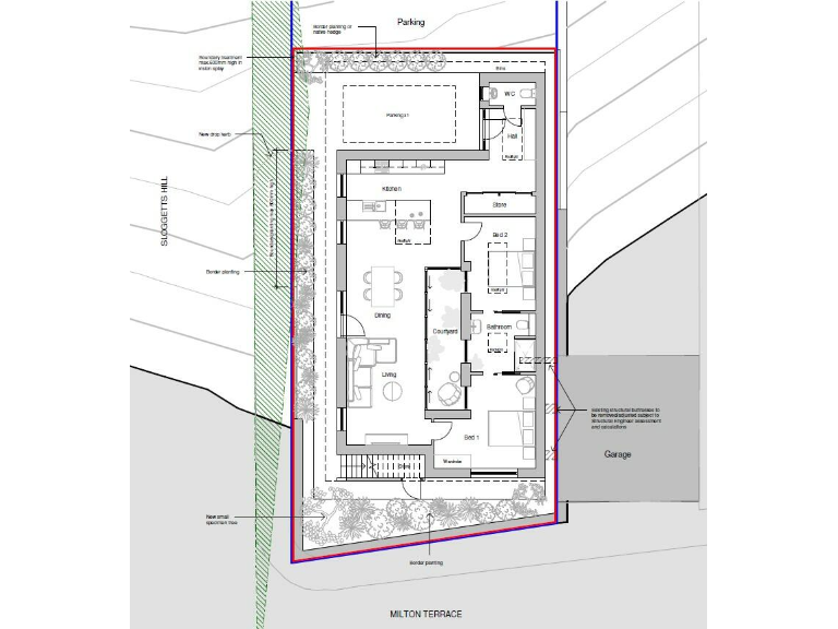
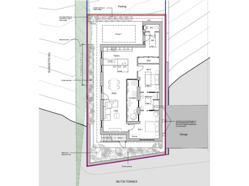
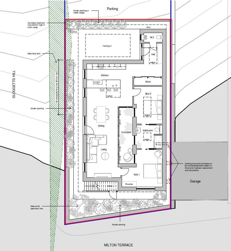
Planning permission granted for two-bedroom single-storey dwelling
A rare freehold corner infill plot with planning permission to build a two-bedroom, single-storey eco home. Permission (App. 24/0463/PA) is already granted, and all mains services are close to the site for straightforward connection. The proposed design includes a rooftop garden, off-street parking and views across Pembroke Dock town centre.
This opportunity suits a developer, investor or buyer wanting a compact modern home in a town-fringe location. The plot measures approximately 64ft by 36ft and sits on a slight slope, providing good light and street presence. The site abuts an adopted road for easy access; mobile signal and broadband are strong here.
Buyers should note material considerations: a Section 106 agreement/payment applies to the purchase; the local area records very high deprivation levels; and the plot is modest in size so the approved layout is single-storey. Council tax and build costs are not included. Flood risk is low, but prospective purchasers should carry out their own surveys and costings before exchange.
Land for sale in Hill Lane, Kilgetty, Pembrokeshire, SA68 — £150,000 • 4 bed • 3 bath • 2146 ft²
Land for sale in Building Plot, Charles Thomas Avenue, Pembroke Dock, SA72 — £85,000 • 1 bed • 1 bath
Property for sale in Begelly, Kilgetty, SA68 — £99,950 • 1 bed • 1 bath • 1411 ft²
Plot for sale in Liddeston Road, Havens Head, Milford Haven, SA73 — £120,000 • 1 bed • 1 bath
Property for sale in Freystrop, Haverfordwest, Pembrokeshire, SA62 — £105,000 • 1 bed • 1 bath
Plot for sale in Woodland Crescent, Milford Haven, SA73 — £110,000 • 4 bed • 2 bath • 678 ft²






















































