BR6 9BN - 3 bed refurbished three bedroom semi in Woodley Road, BR6 9…

View on Property Piper

3 bedroom semi-detached house for sale in Woodley Road, Orpington, BR6

Summary - 6 WOODLEY ROAD ORPINGTON BR6 9BN

3 bed 1 bath Semi-Detached

Corner-plot home with garage, large garden and clear scope to enlarge.
Recently refurbished throughout including full rewire and new boiler
Large corner plot with detached garage and off-street parking
Bright open-plan lounge and modern kitchen/breakfast room
Good-sized rear garden, approximately 50ft, with side access
Potential to extend to rear, side or loft (STPP) — no approvals
Single family bathroom only; three bedrooms, one small third room
Council Tax Band E (above average) and freehold tenure
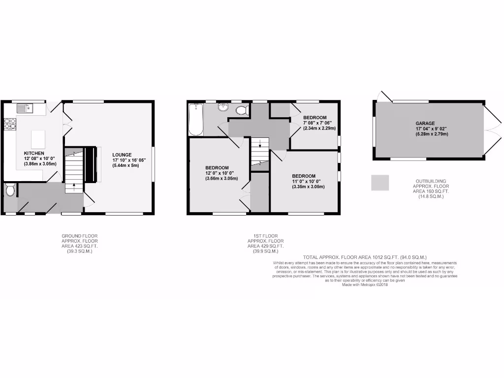
This recently refurbished three-bedroom semi-detached home sits on a large corner plot close to Goddington Park. The ground floor offers a bright open-plan lounge and a well-appointed kitchen/breakfast room, while three bedrooms and a modern bathroom occupy the first floor. Recent upgrades include a full rewire, new boiler and contemporary kitchen and bathroom fittings.

The plot includes a detached garage, off-street parking and generous rear garden with mature beds — appealing for family outdoor life and entertaining. There is clear scope to extend (rear, side or loft subject to planning), which has been done locally, offering potential to increase living space and value (STPP).

Practical points: the house is freehold, double-glazed and on mains gas with fast broadband and strong mobile signal. Council Tax sits in Band E, and the property has one family bathroom. The setting is quiet with low crime and good local schools, making this a sensible choice for growing families or buyers seeking workable investment potential.

Property Details

Brochure Descriptions

Image Descriptions

Floorplan Description

Rooms

Textual Property Features

Target Audience

AI Tags

Detected Visual Features

EPC Details

Nearby Schools

Nearest Bars And Restaurants

,,,,}

Nearest General Shops

,,}

Nearest Grocery shops

,,}

Nearest Supermarkets

,,}

Nearest Religious buildings

,,}

Nearest Medical buildings

,,,}

Nearest Airports

,,}

Nearest Leisure Facilities

,,,,}

Nearest Tourist attractions

,,}

Nearest Train stations

,,,,}

Nearest Bus stations and stops

,,,,}

Nearest Hotels

,,}

Tags

Local Market Stats

AirBnB Data

Similar Properties

Meta

High Res Images

Compatible Images

Low res Images

Thumbnails

Raw Images

High Res Floorplan Images

Compatible Floorplan Images

Low res Floorplan Images

FloorplanImages Thumbnail

Raw Floorplan Images