**Standout Features:**
- Extensive 6.81-acre plot with stunning unspoiled views of the Clwydian Range
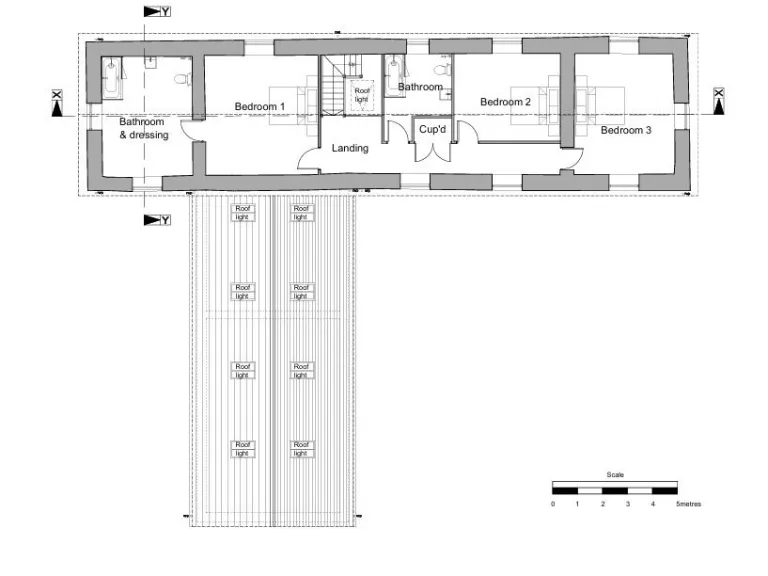
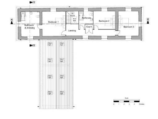
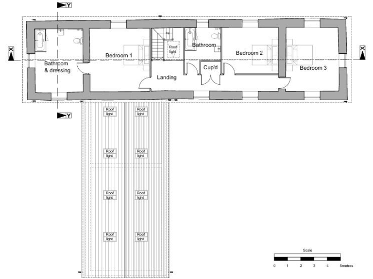
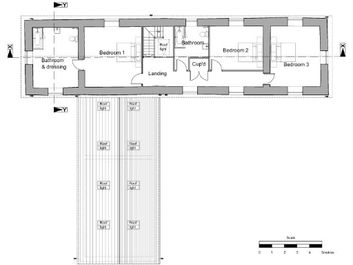
- Planning permission granted in 2017 for converting existing buildings into a single dwelling
- Versatile usage potential suitable for private buyers, investors, and smallholders
- Great access to transportation links (A55 and A541), making commuting to Chester and Wrexham convenient
- Located in a tranquil rural setting, surrounded by beautiful countryside
**Concise Summary:**
This extraordinary 6.81-acre parcel of land in Caerwys offers a unique opportunity to create your ideal rural retreat. Set in an elevated position, the property boasts breathtaking views of the surrounding countryside, making it perfect for nature lovers and those seeking tranquility. The extensive outbuildings provide excellent potential for various uses, particularly with the existing planning permission for the conversion of a redundant stone barn and a brick structure into a single dwelling, allowing you to bring your vision to life.
Situated near charming villages with easy access to local amenities, parks, and transport links, this property is an attractive option for private buyers, investors, or smallholders looking to develop in a peaceful community. While broadband speeds are currently slow, the excellent mobile signal and low crime rate enhance the potential for a safe, family-friendly environment. Don’t miss your chance to secure this exceptional land; viewings are strictly by appointment and reserved for cash buyers only, emphasizing the exclusivity of this unique offering.
Land for sale in Land at Pen y Bryn, Mount Road, St. Asaph, LL17 — £750,000 • 1 bed • 1 bath
5 bedroom smallholding for sale in Pen Y Cefn, Caerwys, Flintshire CH7 — £675,000 • 5 bed • 1 bath • 3248 ft²
5 bedroom property for sale in St. Asaph Road, Lloc, Holywell, CH8 — £600,000 • 5 bed • 3 bath
Land for sale in Ffordd Pen Y Maes, Trefnant. LL16 4YL, LL16 — £130,000 • 4 bed • 2 bath
Land for sale in Pen Y Ball, Holywell, Flintshire, CH8 — £220,000 • 1 bed • 1 bath • 1076 ft²
Land for sale in Northop, Flintshire, CH7 — £670,000 • 1 bed • 1 bath










































































































