Ideal family base near coast, station and schools with private parking.
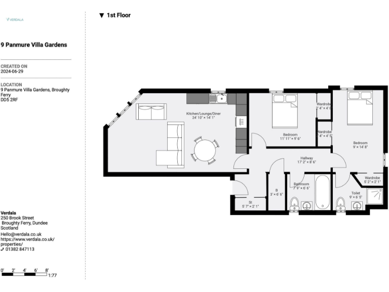
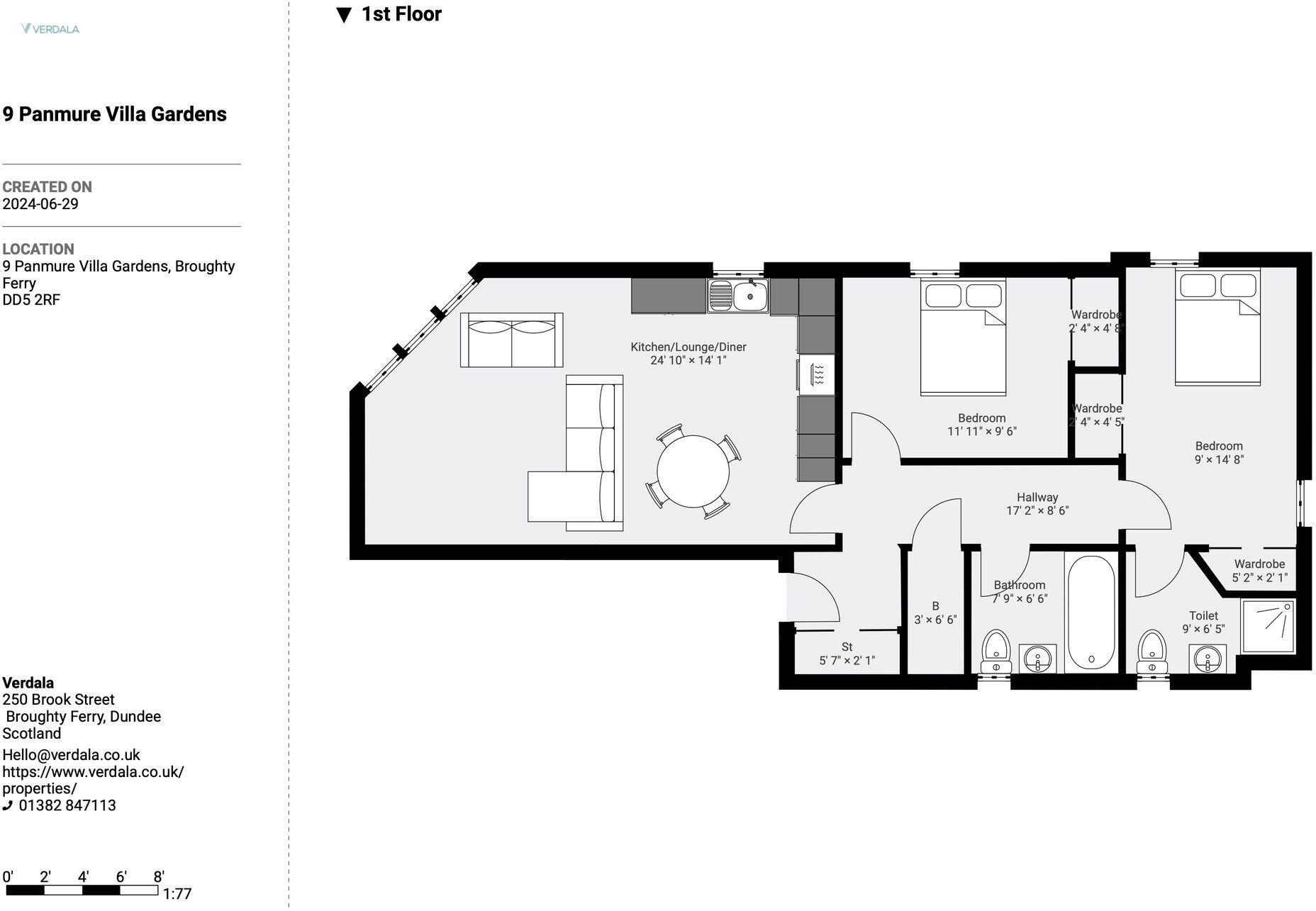
Freehold 2-bedroom apartment with master en-suite
Set within the sought-after H&H development in Broughty Ferry, this freehold 2-bedroom home offers a bright, contemporary open-plan living space and practical daily convenience. The main living area measures around 31 sqm, creating a comfortable entertaining and family zone. A master bedroom with en-suite and fitted wardrobes, plus a second double bedroom, complete the sleeping accommodation.
Residents benefit from well-maintained communal gardens and an allocated parking space, with fast broadband and easy access to local transport — about a mile from Broughty Ferry station. The property is close to coastline amenities, a nature reserve and Grove Academy, making it suitable for families wanting local schools and leisure nearby. EPC rating B and no flooding risk are positive practical points.
Notable negatives are straightforward: the surrounding area is recorded as deprived, which may affect resale dynamics, and mobile signal is only average. Some images provided are CGI representations and may not exactly reflect current finishes. Overall this is a low-maintenance, modern apartment with good local links and clear potential for comfortable family living or a long-term let.
2 bedroom apartment for sale in Flat 25 St.Vincent Court, Broughty Ferry, DD5 — £220,000 • 2 bed • 1 bath • 721 ft²
2 bedroom flat for sale in Whinny Brae, Broughty Ferry, DD5 — £199,995 • 2 bed • 1 bath • 969 ft²
2 bedroom flat for sale in Ballinard Gardens, Broughty Ferry, Dundee, DD5 — £190,000 • 2 bed • 1 bath • 1806 ft²
3 bedroom apartment for sale in 79c Brown Street, Broughty Ferry, DD5 1EP, DD5 — £249,000 • 3 bed • 2 bath • 1345 ft²
2 bedroom flat for sale in Flat 39 St. Vincent Court, St. Vincent Street, Broughty Ferry, DD5 2DA, DD5 — £215,000 • 2 bed • 1 bath • 732 ft²
2 bedroom apartment for sale in Grove Road, Broughty Ferry, Dundee, DD5 — £230,000 • 2 bed • 1 bath • 846 ft²






































































