Low-maintenance coastal living close to shops, station and the beach.
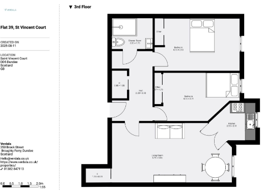
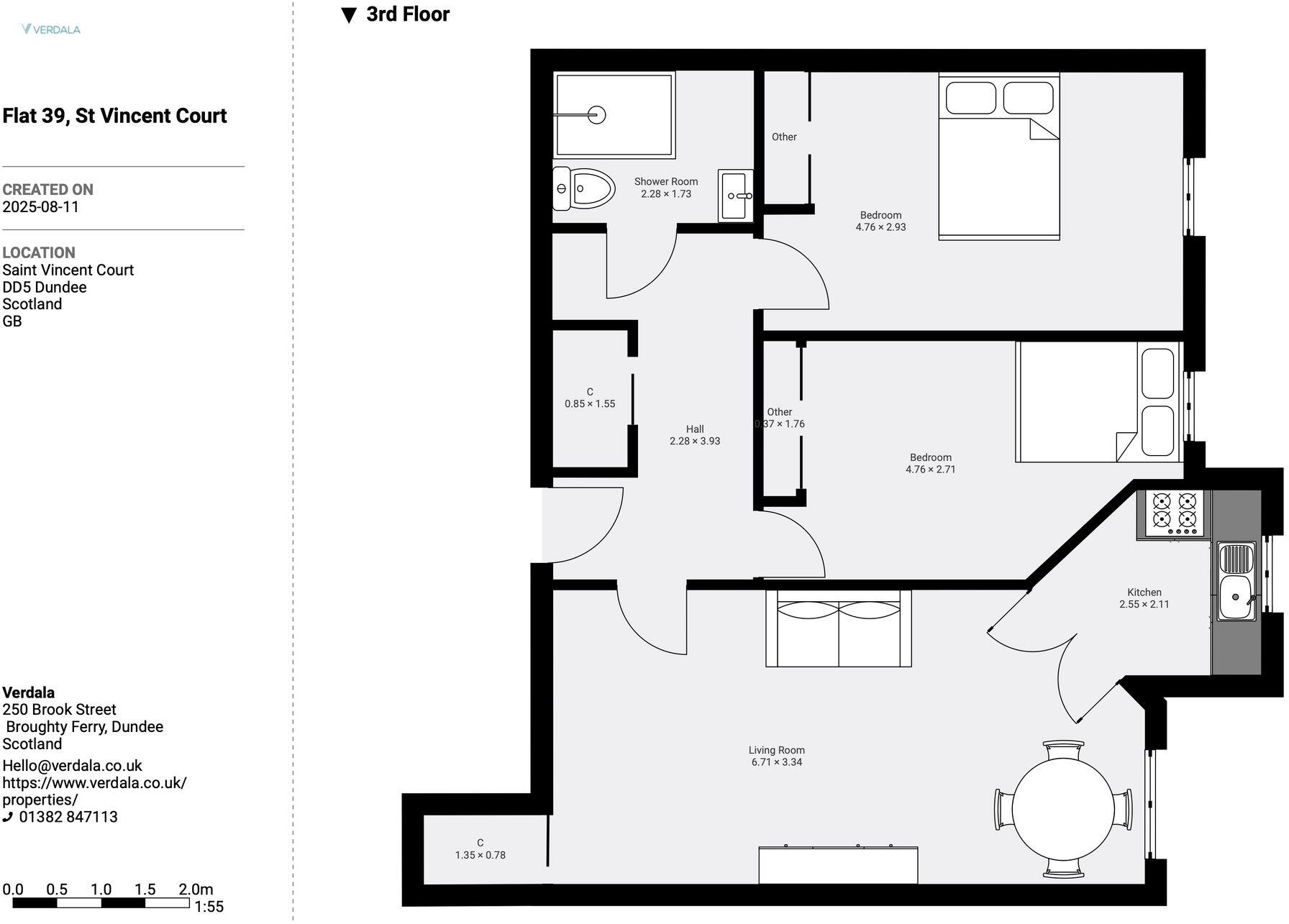
Third-floor retirement apartment with lift access
Set on the third floor of a well-maintained retirement development in central Broughty Ferry, this two-bedroom apartment offers low-maintenance coastal living with excellent local amenities. The generous lounge benefits from natural light and rooftop views while the adjacent kitchen is neatly proportioned for everyday use. Both bedrooms are comfortable doubles with fitted wardrobes and quiet outlooks.
Practical features include lift access, double glazing, electric heating and a shower room fitted with accessible fixtures. The development provides communal benefits: a resident manager, residents’ lounge, guest suite, laundry facilities, landscaped gardens and off-street parking. Broadband speeds are fast and mobile signal is excellent.
Buyers should note factoring fees and an average annual service charge of £3,525 apply, and age restrictions govern residency. The building is freehold and offered in move-in condition, but the higher service charge may affect running costs and resale appeal for some buyers.
This home suits those looking to downsize or enjoy supported independent living close to shops, cafés, the beach and the train station. Early viewing is recommended to appreciate the communal facilities and convenient coastal location.
2 bedroom apartment for sale in Flat 25, St.Vincent Court, Broughty Ferry, DD5 — £220,000 • 2 bed • 1 bath • 721 ft²
2 bedroom flat for sale in Whinny Brae, Broughty Ferry, DD5 — £199,995 • 2 bed • 1 bath • 969 ft²
1 bedroom flat for sale in 1/2 329 Brook Street, Broughty Ferry, DD5 2DS, DD5 — £109,000 • 1 bed • 1 bath • 721 ft²
2 bedroom apartment for sale in Flat 11 Anton House, Forthill Road, Broughty Ferry, DD5 2JT, DD5 — £259,000 • 2 bed • 2 bath • 1023 ft²
2 bedroom apartment for sale in Ravenscraig Gardens, Broughty Ferry, DD5 — £285,000 • 2 bed • 1 bath • 850 ft²
2 bedroom apartment for sale in 12 The Old Dairy, Forthill Road, Broughty Ferry, DD5 3DH, DD5 — £245,000 • 2 bed • 2 bath • 1033 ft²


























































