Victorian conversion with private garden and approved plans to expand living space..
Share of freehold ownership
Set on a quiet, tree-lined street on the borders of Holland Park, this well-presented Victorian conversion offers family-friendly space with modern finishes. The ground-floor entrance leads to a master suite with ensuite, a flexible front room currently used as a bedroom or office, and an open-plan kitchen/reception that opens directly onto a private two-level garden. Natural light floods the rear living space through floor-to-ceiling sliding doors, creating an easy indoor-outdoor flow.
The flat has been newly renovated and benefits from practical upgrades such as a fitted kitchen with quartz surfaces, built-in storage in the principal bedroom, two bathrooms and double glazing. At 969 sq ft and offered with a share of freehold, it provides the scale and layout many families or professionals seek close to central London amenities and transport. Kensington High Street and Holland Park are a short walk away, and Kensington Olympia station is within easy reach.
A key long-term advantage is the council-approved planning permission to excavate and add further square footage to the garden/ground, giving scope to increase living space (subject to costs and technical works). That potential enhances future value and flexibility for reconfiguration.
Honest points to note: the property sits in a borough with above-average crime statistics and council tax here is described as expensive. The building is solid brick with no assumed external wall insulation, which may mean higher heating costs unless improved. As a Victorian conversion, layouts are linear and some rooms are shaped by the terrace footprint—suitable for buyers who value character but mindful of conventional room proportions.
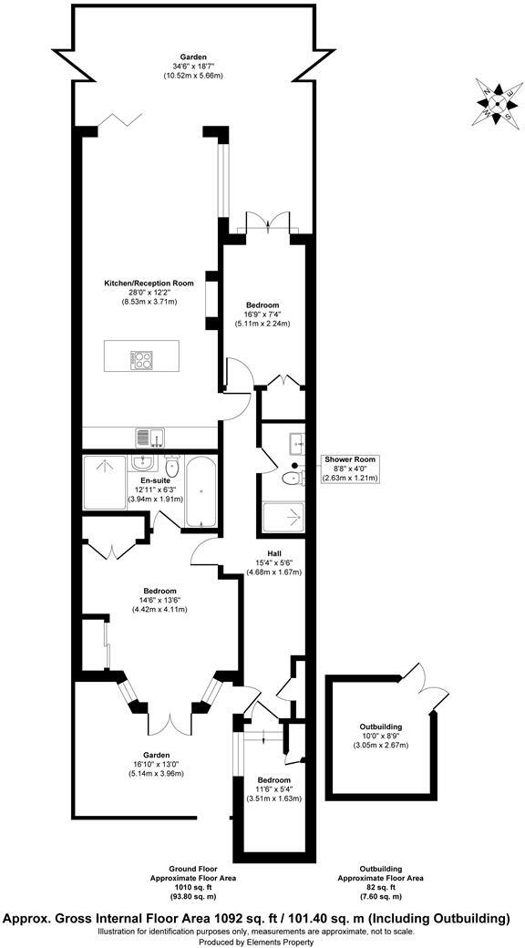
 3 bedroom maisonette for sale in Russel Road, Kensington, W14 — £925,000 • 3 bed • 2 bath • 1092 ft²
 3 bedroom maisonette for sale in Russel Road, Kensington, W14 — £925,000 • 3 bed • 2 bath • 1092 ft² 3 bedroom apartment for sale in Fitzjames Avenue, London, W14 — £1,600,000 • 3 bed • 2 bath • 1580 ft²
 3 bedroom apartment for sale in Fitzjames Avenue, London, W14 — £1,600,000 • 3 bed • 2 bath • 1580 ft² 2 bedroom flat for sale in Holland Road, West Kensington, W14 — £825,000 • 2 bed • 2 bath • 925 ft²
 2 bedroom flat for sale in Holland Road, West Kensington, W14 — £825,000 • 2 bed • 2 bath • 925 ft² 3 bedroom flat for sale in Holland Road, London, W14 — £825,000 • 3 bed • 2 bath • 879 ft²
 3 bedroom flat for sale in Holland Road, London, W14 — £825,000 • 3 bed • 2 bath • 879 ft² 1 bedroom apartment for sale in Holland Road, London, W14 — £425,000 • 1 bed • 1 bath • 609 ft²
 1 bedroom apartment for sale in Holland Road, London, W14 — £425,000 • 1 bed • 1 bath • 609 ft² 2 bedroom flat for sale in Southcombe Street, Brook Green, W14 — £599,950 • 2 bed • 1 bath • 663 ft²
 2 bedroom flat for sale in Southcombe Street, Brook Green, W14 — £599,950 • 2 bed • 1 bath • 663 ft²


























































