Three-bedroom, two-bath maisonette with two gardens and move-in ready condition in W14..
Private entrance and share of freehold
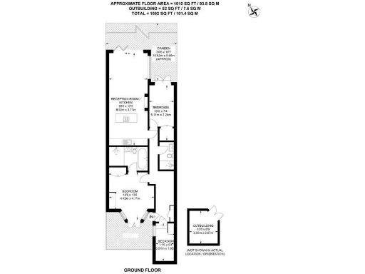
This light-filled three-bedroom maisonette offers more than 1,092 sq ft of comfortable living with the rare convenience of a private entrance and share of freehold. The open-plan kitchen/reception is designed for entertaining and opens through full-height doors to a two-tiered rear garden; a private front patio provides a second outdoor spot for coffee or planting. The home is presented in lovely, move-in ready condition.
The principal bedroom benefits from a bay window and good fitted storage, while two further bedrooms provide flexible space for guests, a nursery or home working. Two modern bathrooms — one with a walk-in shower, one with a bath — add practical family convenience. Located on Russell Road in W14, the flat sits within easy reach of tube links, shops, dining and nearby green spaces.
Practical points to note: the building is a mid-terrace constructed before 1900 with solid brick walls (no known cavity insulation), and the double glazing install date is not recorded. Council tax is expensive for the area, and local crime levels are above average. Heating runs from a mains-gas boiler and radiators; broadband and mobile signal are strong.
This property will suit buyers wanting spacious, characterful Kensington living with outdoor space and minimal immediate work. It also appeals to families seeking strong local schools and commuters wanting fast links. Consider modest insulation or upgrade works in future to improve energy efficiency.
3 bedroom flat for sale in Russell Road, W14 — £925,000 • 3 bed • 2 bath • 969 ft²
2 bedroom apartment for sale in Holland Road, Kensington, W14 — £965,000 • 2 bed • 2 bath • 1066 ft²
3 bedroom maisonette for sale in Ansdell Terrace, London, W8 — £1,450,000 • 3 bed • 1 bath • 1014 ft²
3 bedroom apartment for sale in Fitzjames Avenue, London, W14 — £1,600,000 • 3 bed • 2 bath • 1580 ft²
3 bedroom apartment for sale in Holland Road, Kensington, W14 — £1,195,000 • 3 bed • 2 bath • 1378 ft²
3 bedroom flat for sale in Russell Road, Kensington, London, W14 — £925,000 • 3 bed • 2 bath • 1054 ft²


















































