Chain-free project with garden and parking, ideal for investors or first-time renovators.
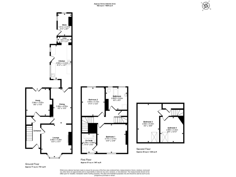
4 Bedrooms and 2 bathrooms in a spacious Victorian mid-terrace
Currently let to tenants paying £700 pcm — sold with tenant in situ
Requires cosmetic work and general renovation throughout
Solid brick construction; likely no cavity insulation (assumed)
Off-street parking via ten-foot entrance and usable outbuildings with electrics
Private rear garden with paved patio and mature borders
EPC rating E; double glazing present, install date unknown
Local area: very high crime and very deprived — impacts resale/rental risk
This Victorian mid-terrace blends period character with practical outdoor space and clear refurbishment potential. The property features decorative brickwork, a bay window, open-plan living and a modern kitchen, plus private garden and off-street parking accessed via a ten-foot entrance. Offered freehold and chain-free, it suits buyers seeking a project or investors adding rental income.
Internally the house requires cosmetic updating and some renovation; the marketing price reflects this. The building is solid brick and likely lacks modern cavity insulation, so buyers should allow for potential energy-efficiency improvements. The EPC is rated E and glazing is double glazed, though install dates are unknown.
Currently let to tenants paying £700 pcm, the property is offered with sitting tenants — useful for investors but restrictive for immediate owner occupation. The local area is an inner-urban mix popular with students and professionals; however, the neighbourhood records very high crime and sits within a very deprived area, factors to weigh against rental demand and long-term capital plans.
Practical benefits include mains gas central heating, outbuildings with electrics, a paved patio and raised borders in the garden. Chain-free sale and a guide price of £140,000–£145,000 make this a clearly priced renovation or buy-to-let opportunity, best suited to buyers comfortable managing refurbishment and local market conditions.
3 bedroom house for sale in Dorset Street, Hull, HU4 — £95,000 • 3 bed • 1 bath • 948 ft²
3 bedroom terraced house for sale in Plane St, Hull, HU3 6BU, HU3 — £129,950 • 3 bed • 1 bath • 1204 ft²
2 bedroom terraced house for sale in Eastern Villas, Holland Street, Hull, East Yorkshire, HU9 — £60,000 • 2 bed • 1 bath
4 bedroom house for sale in Victoria Avenue, Hull, HU5 — £315,000 • 4 bed • 1 bath • 1746 ft²
2 bedroom terraced house for sale in Dudley Avenue, Mayfield Street, HU3 — £60,000 • 2 bed • 1 bath • 700 ft²
4 bedroom end of terrace house for sale in Hull Road, Hessle, HU13 — £150,000 • 4 bed • 1 bath • 817 ft²






































































