Spacious period house with garden and parking in well-connected area.
Four double bedrooms across three floors, including a large master
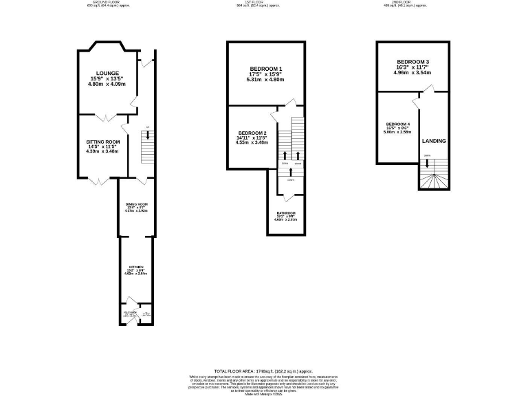
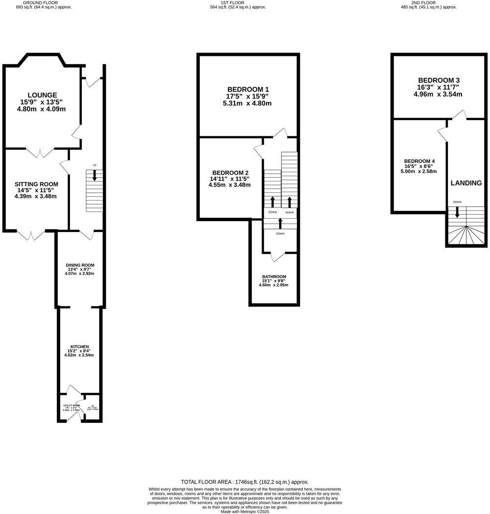
This handsome Victorian mid-terrace spans three floors and offers generous living space for family life. High ceilings, decorative cornicing and bay windows give a strong period character throughout, while two reception rooms and a large front bedroom create flexible living and sleeping arrangements.
The kitchen diner, utility and WC provide practical day-to-day convenience; a south-facing rear garden and gated off-street parking add rare in-town outdoor space and vehicle access. At about 1,746 sq ft the house sits on a typical city-avenue plot with a compact rear garden and small front forecourt.
Practical points to note: there is only one bathroom serving four bedrooms, double glazing was fitted before 2002, and the gas central heating system is present but untested. The property sits in a mixed area classified as a cosmopolitan student neighbourhood within a wider family-dominated district and in an area with higher deprivation than average — useful context for buyers considering rental or schooling choices.
This home will suit a growing family wanting period features close to Pearson Park and local schools, or a buyer seeking refurbishment potential in a well-connected city location. A survey is recommended to confirm mechanical and structural condition before purchase.
4 bedroom terraced house for sale in Victoria Avenue, Hull, HU5 — £375,000 • 4 bed • 2 bath • 1180 ft²
4 bedroom semi-detached house for sale in Park Ave, HULL, HU5 3ET, HU5 — £365,000 • 4 bed • 2 bath • 1945 ft²
5 bedroom terraced house for sale in Park Avenue, HULL, HU5 3ET, HU5 — £399,950 • 5 bed • 2 bath • 2330 ft²
5 bedroom terraced house for sale in Park Avenue, Princes Avenue, Hull, East Riding Of Yorkshire, HU5 3EY, HU5 — £350,000 • 5 bed • 1 bath • 1687 ft²
4 bedroom terraced house for sale in Park Grove, Princes Avenue, Hull, HU5 2UR, HU5 — £200,000 • 4 bed • 3 bath • 1577 ft²
4 bedroom terraced house for sale in Hymers Avenue, Hull, HU3 1LJ, HU3 — £280,000 • 4 bed • 2 bath • 1983 ft²


































































































































































