Period character and high ceilings — a renovation project in sought‑after Hessle location.
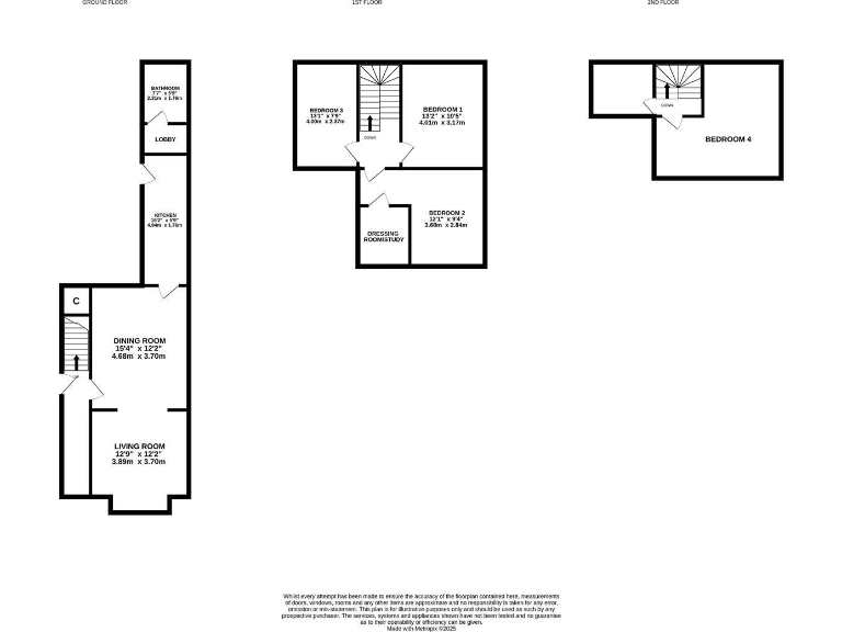
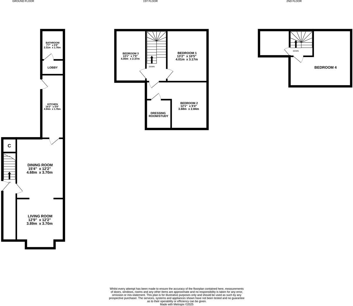
Four bedrooms across three floors with strong period features
Requires full refurbishment and modernisation throughout
Solid brick walls likely uninsulated; energy upgrades needed
Single bathroom only; scope to reconfigure layout
Small forecourt and modest rear garden with shared access
Older double glazing (installed before 2002) and dated finishes
Mains gas central heating present but boiler not tested
Medium flooding risk in the area
This Victorian four-bedroom end‑terrace on Hull Road offers generous room proportions across three floors and sits close to shops, schools and transport links in Hessle. High ceilings, bay windows and original fireplaces provide strong period character—ideal for someone wanting a sympathetic restoration or a profitable refurbishment project.
The house requires comprehensive renovation: dated internal finishes, older double glazing, likely uninsulated solid-brick walls, and a single bathroom. Heating is mains gas with a boiler and radiators (not tested). There is clear scope to reconfigure spaces and modernise services to current standards.
Externally there’s a small forecourt and a rear garden with concrete and lawned areas, plus shared side access. The plot is modest, so improvements will likely focus on internal remodelling, energy upgrades and updating kitchen and bathroom spaces rather than extending the garden.
This property will suit families seeking a long‑term home to personalise or investors looking for a value‑add refurbishment in a popular Hessle location. Note the medium flood risk and the need to budget for insulation and full modernisation works.
3 bedroom end of terrace house for sale in Westbourne Grove, Hessle, HU13 — £180,000 • 3 bed • 1 bath • 974 ft²
2 bedroom terraced house for sale in Victoria Street, Hessle, East Riding of Yorkshire, HU13 — £100,000 • 2 bed • 1 bath • 775 ft²
3 bedroom terraced house for sale in Hull Road, Hessle, HU13 — £170,000 • 3 bed • 1 bath • 1019 ft²
3 bedroom terraced house for sale in Seaton Road, Hessle, HU13 — £165,000 • 3 bed • 1 bath • 778 ft²
3 bedroom end of terrace house for sale in Hull Road, Hessle, East Riding of Yorkshi, HU13 — £205,000 • 3 bed • 3 bath • 1840 ft²
2 bedroom terraced house for sale in First Lane, Hessle, East Riding of Yorkshire, HU13 — £80,000 • 2 bed • 1 bath • 544 ft²


















































































