Nearly three acres with permission for a striking contemporary family home near Tunbridge Wells.
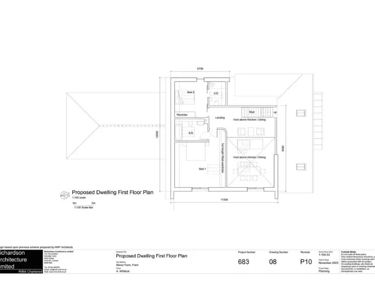
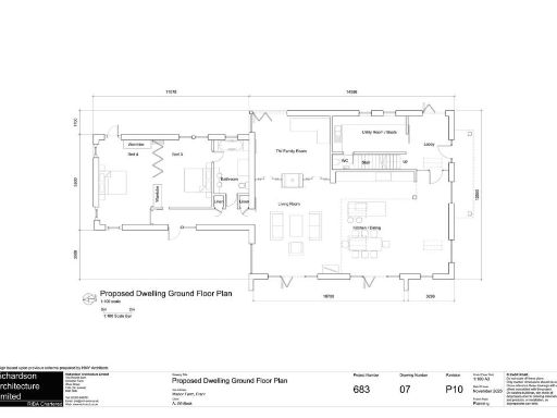
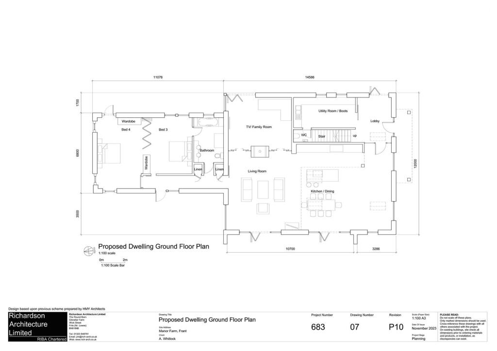
- Full planning consent for 4-bed barn-style house (GIA ~323 m2)
- Detached double garage with office/studio above (GIA ~88 m2)
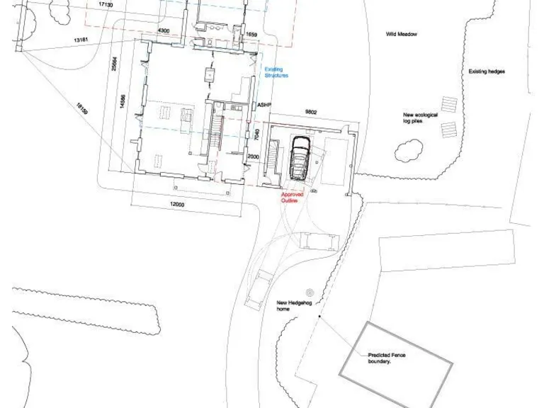
- Approximately 2.9 acres including walled garden and old orchard
- Mains electricity (three-phase) and mains water available
- Private sewage required; no gas to site
- Existing barns must be demolished before build
- Access via shared private drive maintained by seven properties
- Close to Frant station; Tunbridge Wells a short drive
A rare chance to create a substantial country home on nearly 2.9 acres at the edge of Tunbridge Wells. Full planning consent has been granted for a contemporary barn-style house (GIA approx 323 m2 / 3,476 sq ft) with a detached double garage and studio (GIA 88 m2 / 947 sq ft), giving a total planned footprint of about 411 m2 (4,424 sq ft). The site sits within a small enclave of former manor estate properties and benefits from mature boundaries and a large walled garden, delivering privacy and immediate scope for extensive landscaping or a small paddock.
The consented design centres on a vaulted, open-plan living space with bedrooms arranged across ground and first floors, including two en-suites. Practical services are in place: mains electricity (three-phase) and mains water; there is no gas and private sewage will be required. The existing agricultural barns on the plot will need demolition to implement the approved scheme.
This opportunity suits buyers wanting a bespoke family home in a peaceful, rural setting with good local links — Frant station is nearby with direct services to London, and Tunbridge Wells is a short drive for wider amenities and schooling. Important practical points: construction, demolition and foul drainage works are necessary, the private drive is maintained by seven properties, and council tax/EPC are yet to be confirmed. Prospective purchasers should factor build costs, site preparation and service connections into their budgets.
In short, the plot offers immediate permitted development for a large, contemporary family residence in an affluent countryside location, but requires active project management and capital for demolition and building works to realise the potential.
5 bedroom detached house for sale in Frant, Tunbridge Wells, TN3 — £1,100,000 • 5 bed • 1 bath • 2870 ft²
5 bedroom detached house for sale in Knowle Road, Brenchley, TN12 — £750,000 • 5 bed • 3 bath • 3500 ft²
Detached house for sale in Mark Cross, East Sussex, TN6 — £685,000 • 1 bed • 1 bath
5 bedroom detached house for sale in Bayham Road, Bells Yew Green, Tunbridge Wells, East Sussex, TN3 — £2,499,995 • 5 bed • 5 bath • 5200 ft²
4 bedroom detached house for sale in Windmill Hill, Brenchley, Tonbridge, Kent, TN12 — £700,000 • 4 bed • 1 bath • 3450 ft²
Plot for sale in Single Plot at Swife Lane, TN21 — £850,000 • 4 bed • 1 bath • 3628 ft²






























































































