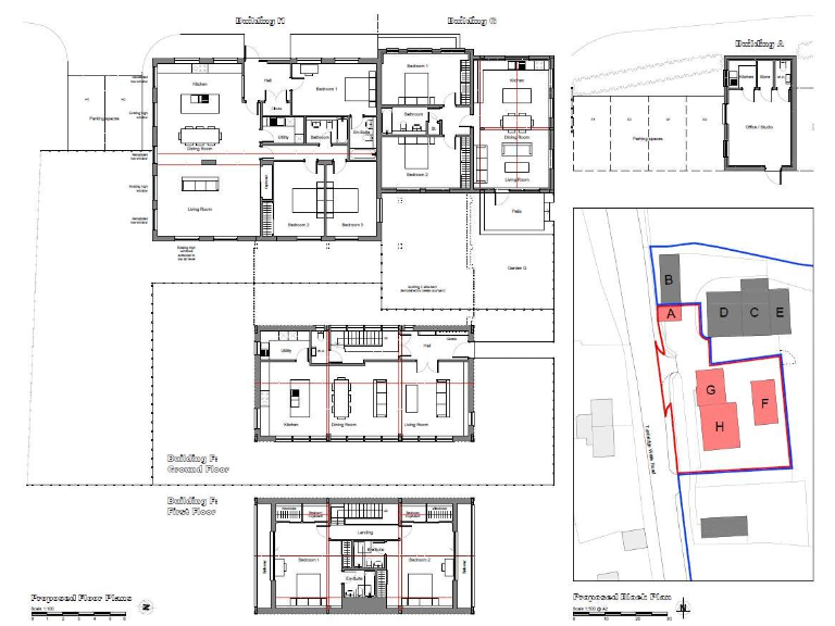
**Standout Features:**
- Planning permission for conversion into 3 residential units (1 detached, 2 attached).
- Elevated position with stunning countryside views.
- Located in the High Weald Area of Outstanding Natural Beauty.
- Close proximity to Tunbridge Wells, approx. 5 miles away.
- Large plot size with potential for expansive outdoor spaces or additional development.
- Mains electricity and water available; private drainage system required.
**Potential Concerns:**
- Requires renovation and conversion to residential living.
- Existences of redundant agricultural buildings on-site needing assessment for further development.
Saxonbury Farm Buildings represents a rare development opportunity nestled within the idyllic High Weald Area of Outstanding Natural Beauty. Planned for conversion into three residential units, the property boasts an elevated position offering breathtaking views of the verdant countryside. With easy access to Tunbridge Wells, this site provides a perfect balance of countryside living and urban conveniences. The sizable plot not only allows for expansive gardens but also opens possibilities for additional development, enhancing its appeal for both investors and families seeking comfort and tranquility.
This is an ideal prospect for those looking to create their dream homes in a peaceful setting, while also enjoying the benefits of fast broadband and a strong local community. Families will appreciate the nearby schools, which all hold an Ofsted rating of 'Good,' ensuring excellent education options. Don’t miss this unique chance to own a piece of land with immense potential—properties like this, offering a blend of scenic beauty and development possibilities, are rarely available for long!
 Plot for sale in Bells Yew Green Road, Bells Yew Green, Tunbridge Wells, TN3 — £1,500,000 • 5 bed • 1 bath • 4424 ft²
 Plot for sale in Bells Yew Green Road, Bells Yew Green, Tunbridge Wells, TN3 — £1,500,000 • 5 bed • 1 bath • 4424 ft² 5 bedroom detached house for sale in Tapsells Lane, Wadhurst, East Sussex, TN5 — £1,450,000 • 5 bed • 3 bath • 2269 ft²
 5 bedroom detached house for sale in Tapsells Lane, Wadhurst, East Sussex, TN5 — £1,450,000 • 5 bed • 3 bath • 2269 ft² 3 bedroom detached house for sale in Hoghole Lane, Lamberhurst, TN3 — £325,000 • 3 bed • 2 bath • 1779 ft²
 3 bedroom detached house for sale in Hoghole Lane, Lamberhurst, TN3 — £325,000 • 3 bed • 2 bath • 1779 ft² 4 bedroom detached house for sale in Smockham Farm, Reynolds Lane, Tunbridge Wells, Kent, TN4 — £425,000 • 4 bed • 2 bath • 1908 ft²
 4 bedroom detached house for sale in Smockham Farm, Reynolds Lane, Tunbridge Wells, Kent, TN4 — £425,000 • 4 bed • 2 bath • 1908 ft² Plot for sale in Coldharbour Lane, Punnetts Town, Nr Heathfield, TN21 — £350,000 • 3 bed • 1 bath
 Plot for sale in Coldharbour Lane, Punnetts Town, Nr Heathfield, TN21 — £350,000 • 3 bed • 1 bath 4 bedroom barn conversion for sale in Postern Lane, Tonbridge, Kent, TN11 — £435,000 • 4 bed • 2 bath
 4 bedroom barn conversion for sale in Postern Lane, Tonbridge, Kent, TN11 — £435,000 • 4 bed • 2 bath


















































