Sunny private garden and good local schools, ideal for practical family buyers.
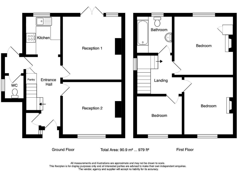
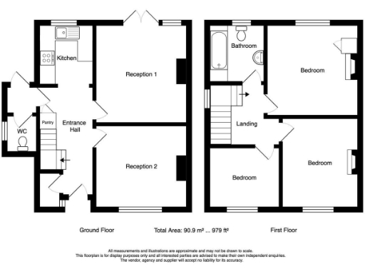
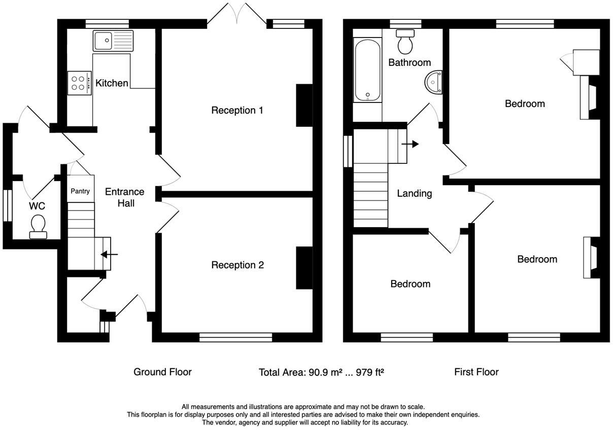
Three double bedrooms across two floors, good for family use
Two separate reception rooms provide flexible living and dining space
Private south-west facing rear garden with lawn, hedges and two sheds
Freehold and offered with no upward chain for a quicker move
EPC Rating D — energy efficiency improvements likely required
Solid brick construction; assumed no cavity insulation, potential heat loss
Single bathroom upstairs and small fitted kitchen—modernisation potential
Local area has above-average crime; buyers should consider security measures
This Victorian semi-detached house offers practical family living across two floors, with three double bedrooms and two separate reception rooms. The layout suits conventional family routines—separate living and dining spaces, a fitted kitchen, downstairs W/C and an upstairs bathroom—while the private south-west facing garden provides afternoon sun and outdoor privacy.
The property is offered freehold and chain-free, making it straightforward for buyers wanting a quicker move. It sits close to a range of schools rated Good or Outstanding, local shops and direct access to Leicester city centre, which will appeal to families and commuters.
There are a few clear areas for attention: the home dates from the early 20th century and has solid brick walls with assumed no cavity insulation, an EPC rating of D, and above-average local crime levels. The accommodation is in generally average condition and would benefit from targeted updates to improve energy efficiency and modernise kitchen and bathroom fittings.
For buyers seeking an affordable three-bedroom period house with a private garden and scope to add value, this property provides a solid starting point. Council tax is low, and the decent plot size gives potential for landscaping or extension work subject to consent.
3 bedroom terraced house for sale in St. Dunstan Road, Leicester, LE3 — £225,000 • 3 bed • 1 bath • 1314 ft²
4 bedroom semi-detached house for sale in Northcote Road, Knighton, Leicester, LE2 — £450,000 • 4 bed • 1 bath • 1838 ft²
3 bedroom semi-detached house for sale in South Knighton Road, South Knighton, Leicester, LE2 — £375,000 • 3 bed • 1 bath • 872 ft²
3 bedroom semi-detached house for sale in Ashclose Avenue, Knighton, Leicester, LE2 — £350,000 • 3 bed • 1 bath • 990 ft²
3 bedroom town house for sale in Knighton Fields Road West, Knighton Fields, Leicester, LE2 — £245,000 • 3 bed • 1 bath • 958 ft²
3 bedroom terraced house for sale in Lorne Road, Leicester, LE2 — £250,000 • 3 bed • 1 bath • 1023 ft²






























































































































