Character home with update potential near Queens Road amenities.
Freehold mid-terrace with three bedrooms and two receptions
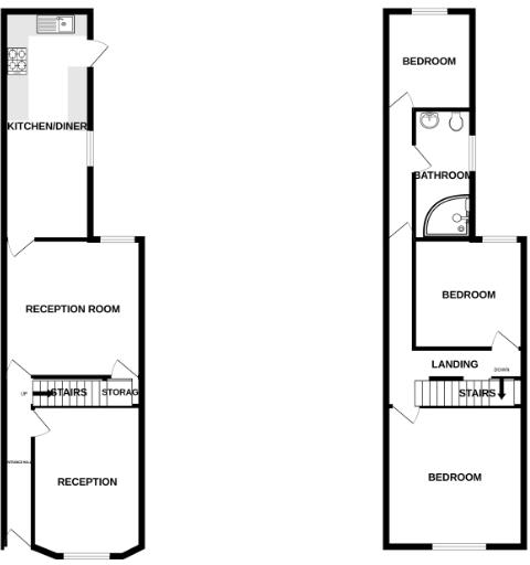
A classic Victorian mid-terrace in Clarendon Park, this three-bedroom home offers generous room sizes, original bay-window charm and a flexible layout across two reception rooms and a long dining kitchen. Its freehold status and no-chain position suit buyers wanting a straightforward purchase close to Queens Road, Victoria Park, universities and transport links.
The house benefits from useful outbuildings, a courtyard garden and mains gas central heating. The accommodation totals about 1,023 sq ft and is well suited to first-time buyers or investors seeking rental potential in a student-and-professional area.
Buyers should note the property presents clear scope for updating: interiors are dated, some rooms show cosmetic wear, and walls are likely uninsulated (solid brick construction). There is a single shower room only and the EPC is D. The courtyard is small but low-maintenance, and the original outbuildings offer storage or conversion potential subject to permissions.
Overall this is a character property with good location credentials and practical space, best suited to purchasers prepared to modernise to improve energy performance and interior finishes.
3 bedroom terraced house for sale in Lytton Road, Clarendon Park, Leicester, LE2 — £240,000 • 3 bed • 1 bath • 825 ft²
3 bedroom terraced house for sale in Welford Road, Leicester, LE2 — £245,000 • 3 bed • 1 bath • 1169 ft²
3 bedroom end of terrace house for sale in Lytton Road, Leicester, LE2 — £250,000 • 3 bed • 1 bath • 861 ft²
2 bedroom terraced house for sale in Lytton Road, Clarendon Park, Leicester, LE2 — £200,000 • 2 bed • 1 bath • 969 ft²
2 bedroom terraced house for sale in Beaconsfield Road, Leicester, LE3 — £185,000 • 2 bed • 1 bath • 862 ft²
3 bedroom terraced house for sale in St. Dunstan Road, Leicester, LE3 — £225,000 • 3 bed • 1 bath • 1314 ft²






















































































