Spacious three-bed Victorian terrace — chain-free with strong update potential close to city amenities..
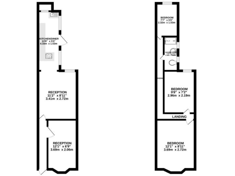
- Three double bedrooms, generous room proportions
- Extended open-plan dining kitchen and utility space
- Chain free; freehold tenure
- Small patio garden with two original outbuildings
- EPC rating D; solid brick walls, likely no insulation
- Rear surface water drains need regular clearing
- Located in cul-de-sac close to city centre and hospitals
- High local crime and very deprived area
A spacious three-double-bedroom Victorian terraced house on a quiet cul-de-sac, offered chain-free and ready for an owner to personalise. The property retains period features such as a bay window and fireplaces and benefits from generous room proportions across two reception rooms and an extended open-plan dining kitchen. The small patio garden and two original outbuildings provide useful external storage and simple outdoor space.
Practical positives include gas central heating, double glazing (post-2002), freehold tenure and easy access to the city centre, hospitals and local amenities. At approximately 1,314 sq ft, the layout suits a first-time buyer or young family wanting room to grow, and the long open-plan kitchen provides scope to create a modern social hub.
Buyers should note material drawbacks: the property needs modernization throughout and walls are solid brick with assumed no cavity insulation, which affects running costs. The EPC is D and surface water drains at the rear need regular clearing to prevent water penetration into the kitchen and utility areas. The immediate area records higher crime and significant local deprivation, which may concern some purchasers.
Overall this house offers strong space and potential at the guide price for a buyer prepared to invest in updating and damp-prevention work. It will particularly suit those seeking a roomy, centrally placed freehold home with scope to add value, or a hands-on landlord targeting rental demand from nearby students and hospital staff.
3 bedroom terraced house for sale in Lorne Road, Leicester, LE2 — £250,000 • 3 bed • 1 bath • 1023 ft²
3 bedroom terraced house for sale in Sandhurst Road, Leicester, LE3 — £220,000 • 3 bed • 1 bath • 861 ft²
3 bedroom terraced house for sale in Chepstow Road, Leicester, LE2 — £230,000 • 3 bed • 2 bath • 692 ft²
3 bedroom terraced house for sale in Aylestone, LE2 — £220,000 • 3 bed • 1 bath • 974 ft²
3 bedroom terraced house for sale in Church Avenue, Leicester, LE3 — £220,000 • 3 bed • 1 bath • 1012 ft²
3 bedroom town house for sale in Percy Road, Leicester, LE2 — £220,000 • 3 bed • 1 bath • 829 ft²






















































































































































































































