Traditional three-bed semi with driveway, garden and extension — check planning for the kitchen.
Bay-fronted three-bedroom semi-detached family home
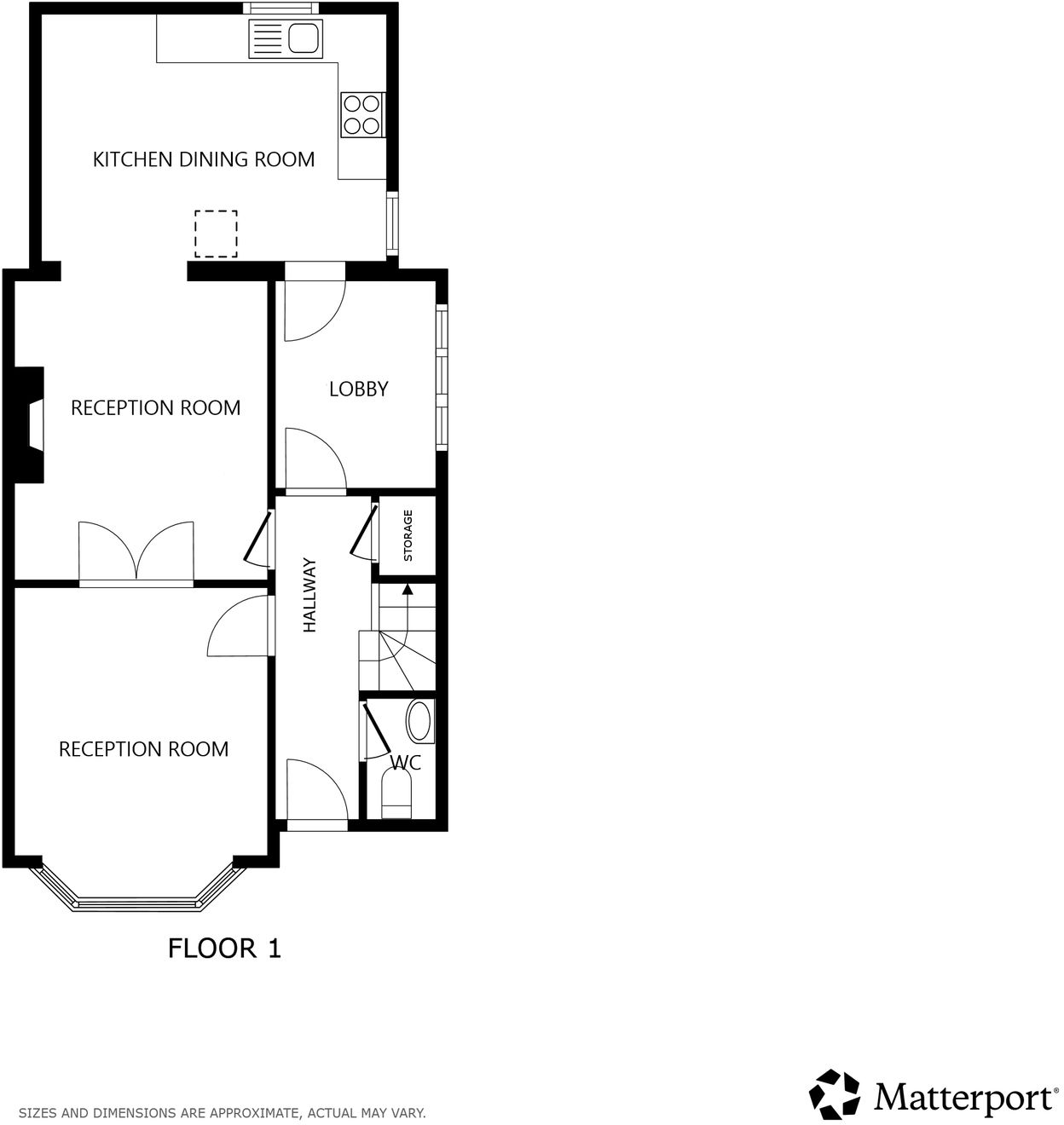
Extended kitchen/diner; open flow to reception spaces
Good-sized established rear garden and detached outbuilding/garage
Block-paved driveway with off-street parking to front and side
Mains gas central heating; double glazing throughout
EPC D; solid brick walls assumed without cavity insulation
Kitchen extension lacks planning/building regulation documentation
Single family bathroom; opportunities to modernise energy efficiency
This bay-fronted three-bedroom semi-detached home in Knighton offers a comfortable, ready-to-live-in layout with a clear family focus. The property benefits from two reception rooms, an extended kitchen/diner and a good-sized established rear garden — practical spaces for everyday family life and entertaining.
Practical positives include off-street parking on a block-paved driveway, mains gas central heating, double glazing and a decent plot with a detached outbuilding/garage at the rear. The location is a strong selling point: close to Overdale schools, parks, Queens Road shops, Leicester city centre, universities and hospitals.
Material considerations are stated plainly: the kitchen extension lacks documentation confirming planning permission or building regulations approvals, so buyers should verify with the local authority. The house dates from c.1930–1949 and has solid-brick walls (assumed without cavity insulation), and the EPC rating is a D — potential buyers may wish to factor insulation and energy improvements into future plans.
Overall this is a mid-sized, characterful family home in a very affluent, low-crime neighbourhood. It suits buyers seeking immediate occupation with scope to modernise energy performance and cosmetic finishes, or investors looking for a well-located rental property.
3 bedroom semi-detached house for sale in Kingsmead Road, Knighton, Leicester, LE2 — £425,000 • 3 bed • 1 bath • 1184 ft²
3 bedroom semi-detached house for sale in Stanfell Road, Knighton, Leicester, LE2 — £325,000 • 3 bed • 1 bath • 1044 ft²
3 bedroom semi-detached house for sale in Gainsborough Road, Knighton, Leicester, LE2 — £340,000 • 3 bed • 1 bath • 1001 ft²
4 bedroom semi-detached house for sale in Northcote Road, Knighton, LE2 — £450,000 • 4 bed • 2 bath • 1560 ft²
3 bedroom semi-detached house for sale in South Kingsmead Road, Knighton, Leicester, LE2 — £375,000 • 3 bed • 1 bath • 1163 ft²
3 bedroom semi-detached house for sale in Northdene Road, Leicester, LE2 — £325,000 • 3 bed • 1 bath • 969 ft²






















































































