Affordable period terrace with garden — ideal for hands-on buyers or landlords.
Freehold Victorian mid-terrace, four bedrooms, two reception rooms
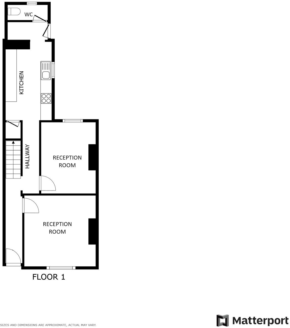
Approx 905 sq ft; small internal rooms and compact plot
Modern galley kitchen; double glazing present
Gas central heating via boiler and radiators
Sold at online auction; immediate exchange option available
Buyer costs: 5% non-refundable deposit plus reservation fee (up to 6%, min £6,000)
Solid brick walls likely uninsulated — potential energy inefficiency
Located in very deprived area; average crime, strong broadband/mobile
This four-bedroom period mid-terrace in Bartholomew Street offers an affordable entry point to Leicester’s LE2 area, presented as a freehold property with a small rear courtyard garden and outbuildings. At around 905 sq ft, the house combines traditional Victorian character with a modern galley kitchen and double glazing already installed. Broadband and mobile signal are strong, making it suitable for working tenants or a compact family.
The layout includes two reception rooms, ground-floor WC, four first-floor bedrooms and a single bathroom — a practical configuration for rental use or a first home. The property is sold via online auction with immediate exchange possible; bidders should budget for a 5% non-refundable deposit and a reservation/admin fee up to 6% (minimum £6,000 inc VAT). A legal pack is available and buyers must complete AML ID checks prior to bidding.
Material points: the house is a solid-brick Victorian build likely without cavity insulation, in a very deprived neighbourhood classification, and the overall plot and internal room sizes are small. These factors affect heating efficiency and potential refurbishment costs, but the low asking/starting price and Council Tax Band A present clear upside for investors or buyers willing to upgrade. Viewings are by appointment only.
4 bedroom terraced house for sale in Bartholomew Street, Highfields, Leicester, LE2 — £200,000 • 4 bed • 1 bath • 904 ft²
4 bedroom terraced house for sale in Daneshill Road, Leicester, Leicestershire, LE3 — £250,000 • 4 bed • 2 bath • 1516 ft²
3 bedroom terraced house for sale in Park Avenue, Leicester, Leicestershire, LE2 8BD, LE2 — £165,000 • 3 bed • 1 bath • 915 ft²
4 bedroom terraced house for sale in St. James Road, Leicester, Leicestershire, LE2 1HR, LE2 — £250,000 • 4 bed • 1 bath • 2325 ft²
4 bedroom terraced house for sale in Dulverton Road, Leicester, Leicestershire, LE3 0SA, LE3 — £225,000 • 4 bed • 2 bath • 1217 ft²
3 bedroom end of terrace house for sale in Dannett Walk, Leicester, Leicestershire, LE3 5RG, LE3 — £180,000 • 3 bed • 1 bath • 837 ft²


























































