Chain-free auction lot with rental potential in a well-connected inner-city location.
Four bedrooms in a Victorian mid-terrace
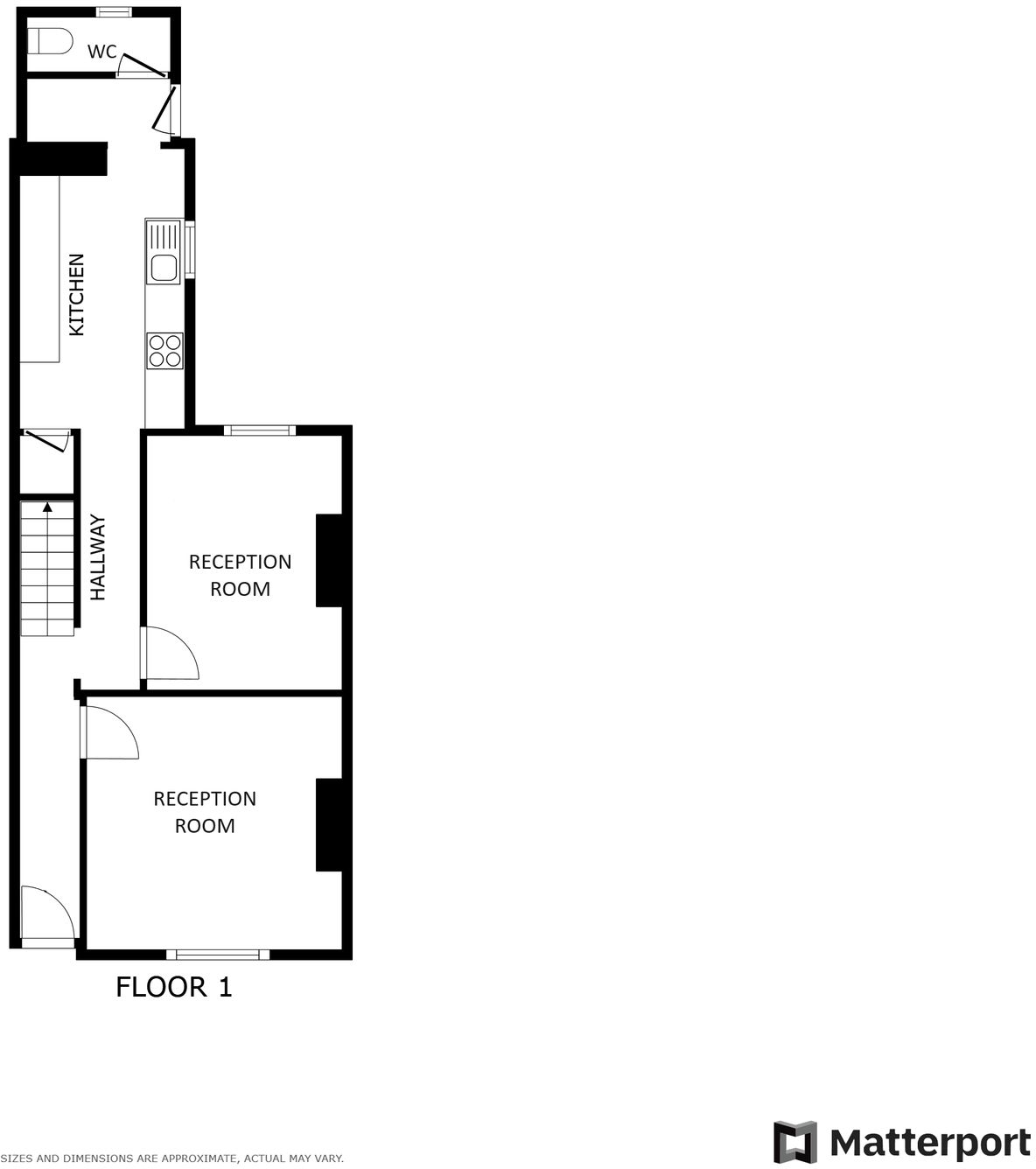
A four-bedroom mid-terrace in Highfields offered at a guide price of £200,000 — sold via online auction and available chain free. The property is traditional Victorian brick with double glazing, gas central heating and a small rear courtyard with outbuildings. Internally the layout includes two reception rooms, a galley kitchen, ground-floor WC, four first-floor bedrooms and one bathroom, presented in a neutral, functional finish.
This lot suits investors or first-time buyers willing to buy at auction and complete the required refurbishment. The house is solid-brick Victorian stock (likely no cavity insulation) and the finish is practical rather than high-end — ready to let with cosmetic work or to improve for higher rental or resale value. Broadband and mobile signals are good and local amenities, schools and places of worship are close by, supporting rental demand.
Important sale and condition notes: the sale is via online auction with verification, a non-refundable 5% exchange deposit and a reservation fee (up to 6% inc. VAT, minimum £6,000) payable on agreement. The property has a D EPC, a single bathroom for four bedrooms, a small plot and is in a very deprived area — factors to include in investment return calculations. Viewings are strictly by appointment and buyers should review the legal pack and seek legal advice before bidding.
4 bedroom terraced house for sale in Dulverton Road, Leicester, Leicestershire, LE3 0SA, LE3 — £225,000 • 4 bed • 2 bath • 1217 ft²
4 bedroom terraced house for sale in Daneshill Road, Leicester, Leicestershire, LE3 — £250,000 • 4 bed • 2 bath • 1516 ft²
4 bedroom semi-detached house for sale in Blue Gates Road, Leicester, Leicestershire, LE4 — £220,000 • 4 bed • 1 bath • 996 ft²
4 bedroom villa for sale in Dulverton Road, Leicester, LE3 — £225,000 • 4 bed • 2 bath • 1365 ft²
3 bedroom terraced house for sale in Harrow Road, Leicester, Leicestershire, LE3 — £175,000 • 3 bed • 1 bath • 1217 ft²
2 bedroom terraced house for sale in Avenue Road Extension, Leicester, LE2 — £165,000 • 2 bed • 1 bath • 808 ft²


























































