Large period family home with renovation potential opposite Victoria Park.
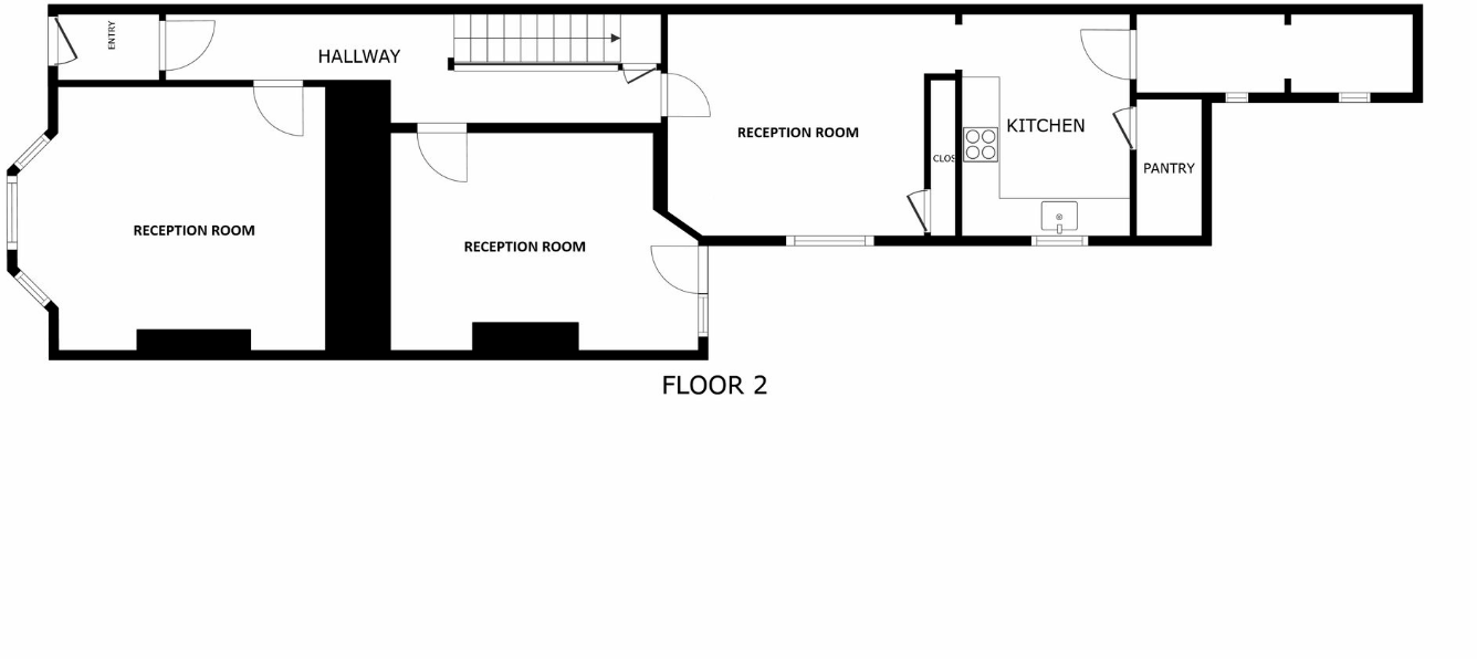
4 double bedrooms over three floors
Large basement with power and lighting (usable storage/workspace)
Period features: stained glass bay, original doors, high ceilings
Sold at auction via Secure Sale; immediate exchange option
EPC D; likely needs insulation and modernisation
Part double glazing; mains gas boiler and radiators
Small courtyard garden; on-street parking only
Located opposite Victoria Park; area has high crime/deprivation
This substantial four-bedroom mid-terrace blends strong period character with flexible living across three floors. High ceilings, stained glass bay, original doors and a large basement create bright, adaptable spaces ideal for family life or multi-room rental. The property sits directly opposite Victoria Park, with good public transport links to Leicester city centre and station.
Sold via Secure Sale online bidding with immediate exchange available, the house is offered freehold and will be sold at auction. Practical features include mains gas boiler and radiators, part double glazing and an EPC rating of D. A small courtyard rear garden and forecourt add outdoor space; parking is on-street.
The house is large (approximately 2,325 sq ft) but sits in a deprived area with higher crime levels; buyers should consider security and local management if letting. Construction is solid brick (circa 1900–1929) and likely lacks cavity wall insulation. Decorative updating and some modernisation would improve comfort and energy performance — this is reflected in the price and strong potential for renovation or investment returns.
Viewings and purchase should factor in auction terms and the Secure Sale process. For families, the roomy layout, park-facing position and nearby schools are real advantages. For investors, the scale, basement and proximity to the city centre suggest good rental potential after refurbishment.
4 bedroom terraced house for sale in Daneshill Road, Leicester, Leicestershire, LE3 — £250,000 • 4 bed • 2 bath • 1516 ft²
4 bedroom terraced house for sale in Dulverton Road, Leicester, Leicestershire, LE3 0SA, LE3 — £225,000 • 4 bed • 2 bath • 1217 ft²
7 bedroom terraced house for sale in Highfield Street, Leicester, LE2 — £320,000 • 7 bed • 4 bath • 2336 ft²
2 bedroom terraced house for sale in Avenue Road Extension, Leicester, LE2 — £165,000 • 2 bed • 1 bath • 808 ft²
4 bedroom terraced house for sale in St. James Road, Leicester, LE2 — £325,000 • 4 bed • 1 bath • 1851 ft²
4 bedroom detached house for sale in St. James Road, Leicester, LE2 — £525,000 • 4 bed • 2 bath • 2230 ft²










































































