Starter home with garden, good transport and immediate move-in potential.
- Chain-free freehold Victorian mid-terrace, circa 1900–1929
- Newly re-carpeted throughout and modern combination boiler installed
- Two double bedrooms and ground-floor bathroom, comfortable room sizes
- Private enclosed rear garden, small plot but useful outdoor space
- Double glazing fitted after 2002; cavity walls likely uninsulated
- Kitchen shows wear and would benefit from updating
- Excellent public transport links and local amenities nearby
- Council tax affordable; area crime and deprivation rated average
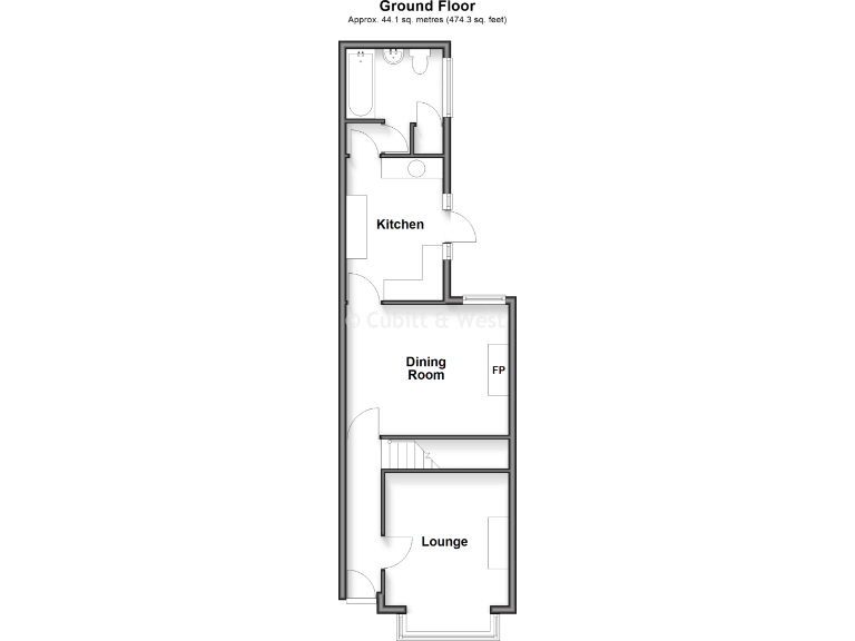
This mid-terrace Victorian two-bedroom house in Copnor offers an affordable, chain-free purchase for first-time buyers or buy-to-let investors. The property has been newly re-carpeted throughout and fitted with a modern combination boiler, so heating and presentation are up to date. The compact rear garden and largely original exterior retain period character while giving outdoor space for plants or a small seating area.
Internally the layout is practical: a ground-floor bathroom, separate lounge and dining room, and two double bedrooms upstairs. Room sizes are generous for the footprint (total c. 894 sq ft) and the property feels larger than many nearby two-beds. Double glazing was installed after 2002, and mains gas central heating runs from a modern boiler.
Notable drawbacks are straightforward and important: the plot is small and the building dates from c.1900–1929 with cavity walls that likely lack insulation, so energy costs could be higher than modern homes. The kitchen shows signs of wear and could benefit from updating if you want a fully modern finish. There are no reported flooding risks, council tax is described as affordable, and the area has average crime and deprivation levels.
Location is a genuine selling point — strong public transport links, nearby shops and amenities, and several primary and secondary schools close by (mixed Ofsted ratings). Sold freehold and chain free, the house suits buyers who want to move quickly or investors seeking a straightforward rental property with room to add value through cosmetic kitchen and insulation improvements.
2 bedroom terraced house for sale in Stapleton Road, Portsmouth, Hampshire, PO3 — £152,500 • 2 bed • 1 bath • 894 ft²
2 bedroom terraced house for sale in Mafeking Road, Southsea, PO4 — £235,000 • 2 bed • 1 bath • 784 ft²
2 bedroom terraced house for sale in Washington Road, Portsmouth, Hampshire, PO2 — £225,000 • 2 bed • 1 bath • 793 ft²
2 bedroom terraced house for sale in Talbot Road, Southsea, PO4 — £220,000 • 2 bed • 1 bath • 649 ft²
3 bedroom terraced house for sale in New Road East, Copnor, PO2 — £230,000 • 3 bed • 1 bath • 1007 ft²
2 bedroom terraced house for sale in Esslemont Road, Southsea, PO4 — £240,000 • 2 bed • 1 bath • 691 ft²














































