Affordable retirement-ready home with scope to modernise and add value.
- Chain free freehold mid-terrace with two bedrooms
- Lifetime Lease example price £152,500 (full market £230,000)
- Newly re‑carpeted throughout and modern combination boiler
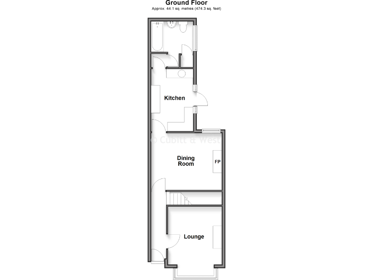
- Ground-floor bathroom; practical for single-level living
- Kitchen dated 1970s and requires modernisation
- Small, private enclosed rear garden; low maintenance plot
- Likely no cavity wall insulation (assumed) — consider upgrades
- Suitable for over‑60s Lifetime Lease purchasers only
Set in Copnor, this mid-terrace two-bedroom home suits buyers aged 60+ looking for an affordable, low-maintenance base. The property is chain free, offered as a freehold and benefits from a modern combination boiler, double glazing and fresh carpeting throughout, so it’s ready to occupy while you plan any changes.
The rear garden is private and enclosed — a small, manageable outdoor space ideal for pot plants or a seating area. Room sizes are generous for the house type (approximately 894 sq ft overall) and the layout includes two reception rooms and a ground-floor bathroom, useful for single-level living.
There is clear scope to add value: the kitchen dates from the 1970s and needs modernization, and the house likely lacks cavity wall insulation as built. Buyers should factor in further updating to kitchen and decor if a modern finish is required. The property is marketed through a Home for Life Lifetime Lease example: typical savings are between 20–50%, with a guide Lifetime Lease price of £152,500 compared with the full market price of £230,000; exact terms depend on age and personal circumstances.
Local amenities are close by (bus routes, shops and several primary and secondary schools) and the area is primarily terraces and flats. Broadband and mobile signals are good and there is no flooding risk. Interested buyers should verify fixtures, fittings and any legal details independently.
2 bedroom terraced house for sale in Landguard Road, Eastney, Portsmouth, Hampshire, PO4 — £152,500 • 2 bed • 1 bath • 485 ft²
2 bedroom semi-detached house for sale in Curzon Howe Road, Portsmouth, Hampshire, PO1 — £254,500 • 2 bed • 1 bath • 926 ft²
2 bedroom terraced house for sale in Stapleton Road, Portsmouth, Hampshire, PO3 — £230,000 • 2 bed • 1 bath • 765 ft²
2 bedroom ground floor flat for sale in Twyford Avenue, Stamshaw, Portsmouth, Hampshire, PO2 — £109,500 • 2 bed • 1 bath • 840 ft²
1 bedroom ground floor flat for sale in Chichester Road, Portsmouth, Hampshire, PO2 — £85,750 • 1 bed • 1 bath • 560 ft²
2 bedroom ground floor flat for sale in Waverley Road, Southsea, Hampshire, PO5 — £109,500 • 2 bed • 1 bath • 408 ft²






































