Characterful two-bedroom home with low-maintenance garden and new boiler.
No forward chain, ready for quick completion
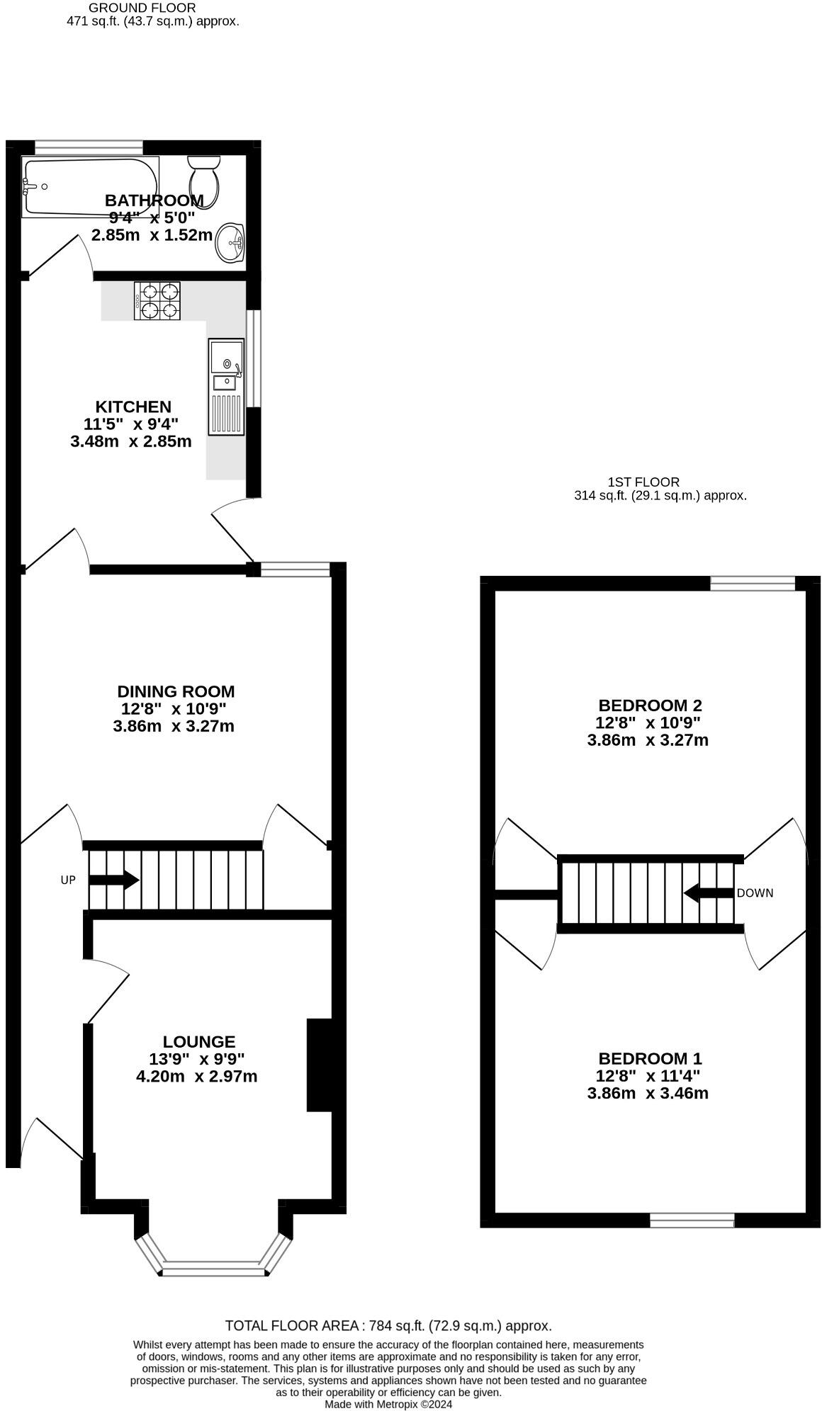
A traditional two-bedroom Victorian terrace offered with no forward chain, ideal for a first-time buyer or investor seeking straightforward living close to local amenities. The home retains period character — a bay-fronted lounge with a feature fireplace and decorative cornicing — alongside practical modern upgrades such as double glazing and a newly fitted combination gas boiler.
Rooms are well-proportioned for the property's size, with two double bedrooms on the first floor and a versatile dining room featuring an exposed brick chimney breast and under-stairs storage. The rear garden is paved for low maintenance, making this a convenient city home with easy outdoor access.
Practical details include freehold tenure, council tax band B, and no flood risk. The house was built c.1900–1929 and has cavity walls assumed to have no added insulation, so buyers should consider potential insulation or energy-efficiency improvements. Overall, this is a straightforward, characterful property ready for immediate occupation with scope to personalise and increase value.
2 bedroom terraced house for sale in Esslemont Road, Southsea, PO4 — £240,000 • 2 bed • 1 bath • 691 ft²
2 bedroom terraced house for sale in Talbot Road, Southsea, PO4 — £235,000 • 2 bed • 1 bath • 649 ft²
2 bedroom terraced house for sale in Toronto Road, Portsmouth, PO2 7QD, PO2 — £210,000 • 2 bed • 1 bath • 818 ft²
2 bedroom terraced house for sale in Washington Road, Portsmouth, Hampshire, PO2 — £225,000 • 2 bed • 1 bath • 793 ft²
2 bedroom terraced house for sale in Percy Road, Southsea, PO4 — £250,000 • 2 bed • 1 bath • 764 ft²
2 bedroom terraced house for sale in Landguard Road, Eastney, Portsmouth, Hampshire, PO4 — £230,000 • 2 bed • 1 bath • 485 ft²


























































