Compact, low-maintenance terrace ideal for first-time buyers or buy-to-let investors.
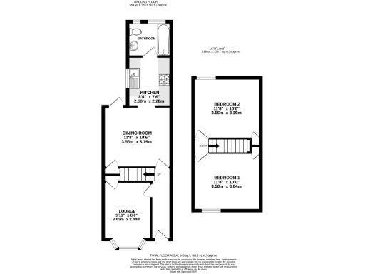
- Two reception rooms and fitted modern kitchen
- Two good-sized first-floor bedrooms
- West-facing paved rear garden, low maintenance
- No forward chain, ready for quick sale
- Double glazing installed post-2002, mains gas heating
- Solid brick walls (no assumed insulation) may need upgrading
- Small plot size and above-average local crime rate
- Approximately 649 sq ft; potential for value-adding improvements
This Victorian mid-terrace offers practical city living a short walk from Fratton station and Albert Road’s shops and cafés. The layout includes two reception rooms, a fitted kitchen and two good-sized first-floor bedrooms, providing straightforward space for first-time buyers or those wanting rental potential. The property is sold with no forward chain and benefits from double glazing installed after 2002 and a mains-gas boiler with radiators.
The west-facing rear garden is paved for low maintenance and the overall footprint (approximately 649 sq ft) suits buyers seeking a compact, manageable home. Interior finishes include a modern kitchen with white cabinets and subway tiles and a bathroom with a shower over the bath. Council Tax Band B keeps running costs relatively low.
Notable practical points: the house is a solid-brick Victorian build with assumed no cavity insulation in the walls, so buyers should budget for potential insulation improvements to improve comfort and efficiency. The plot is small and the neighbourhood records above-average crime, which may concern some buyers or influence lettings. Overall, the property offers sensible value in a well-connected area with clear potential for improvement or rental use.
2 bedroom terraced house for sale in Southsea, Hampshire, PO4 — £240,000 • 2 bed • 1 bath • 942 ft²
2 bedroom terraced house for sale in Shearer Road, Portsmouth, Hampshire, PO1 — £215,000 • 2 bed • 1 bath • 817 ft²
2 bedroom terraced house for sale in Londesborough Road, Southsea, PO4 — £230,000 • 2 bed • 1 bath • 635 ft²
2 bedroom terraced house for sale in Sutherland Road, Southsea, Hampshire, PO4 — £235,000 • 2 bed • 1 bath • 518 ft²
2 bedroom terraced house for sale in Esslemont Road, Southsea, PO4 — £230,000 • 2 bed • 1 bath • 829 ft²
2 bedroom end of terrace house for sale in Bramble Road, Southsea, PO4 — £230,000 • 2 bed • 1 bath • 624 ft²


































































