Permitted conversion: three mews homes in a large, private rural setting.
Full planning consent for three mews dwellings (Ref: 2023/1041/LBC)
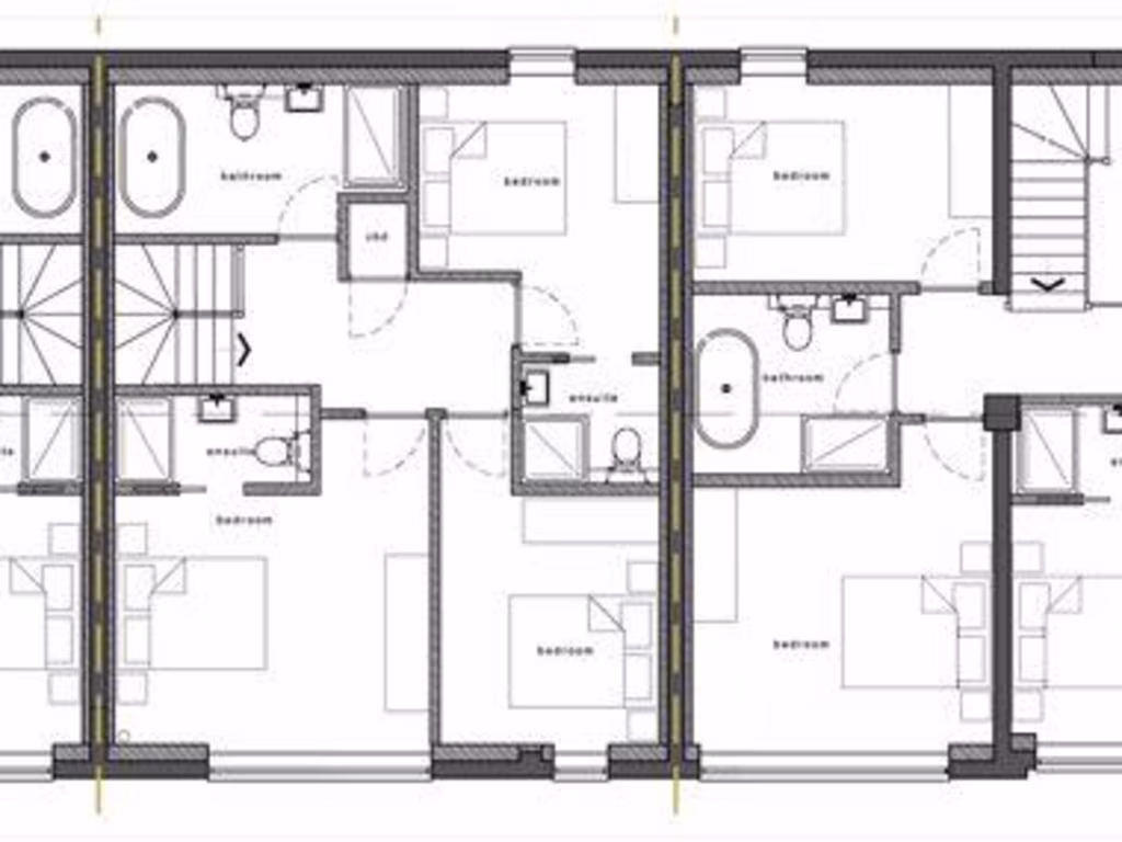
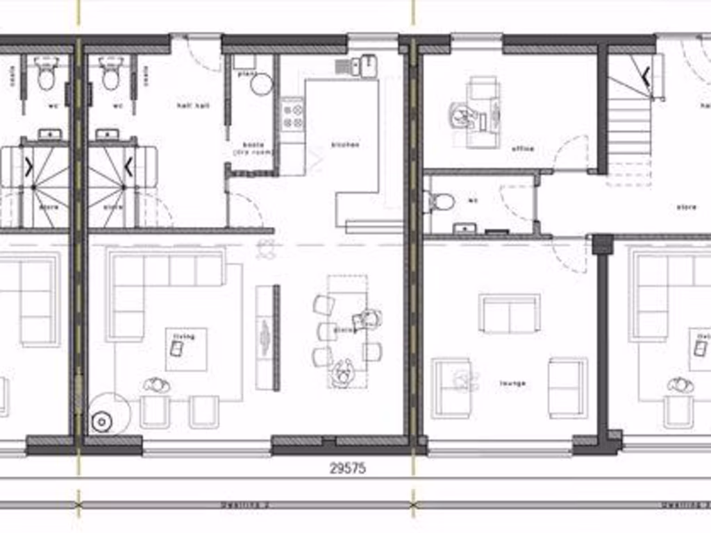
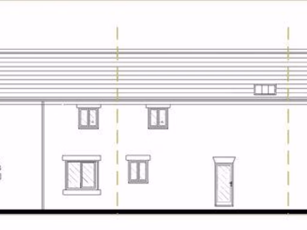
A substantial rural development opportunity set within the Owens Farm estate, centred on a large brick-built barn with full planning consent to create three mews-style dwellings (Planning Ref: 2023/1041/LBC). The consented scheme delivers two three-bedroom mews and one five-bedroom mews, each with allocated ranch-style parking in the attached open-fronted hay barn. The site sits in a secluded hamlet setting with expansive grounds, mature boundaries and excellent broadband and mobile signal — attractive for buyers seeking space and privacy.
The barn is currently in a derelict/rustic state and will require a full conversion to complete the approved dwellings. Buyers should allow for conversion costs and the usual statutory checks; services are connected via a septic tank and all measurements and service conditions should be independently verified. There is an option to purchase the adjoining five-bedroom farmhouse with three acres and an agricultural barn with 26 acres either separately or together, offering further scope for a larger holding or phased development.
This opportunity suits an investor or developer seeking a permitted rural conversion with clear layouts and parking provision already agreed. Its strengths are the size of the plot, planning certainty for three dwellings, and the peaceful countryside location. Drawbacks to factor in are conversion and refurbishment costs, septic drainage, and verification of land measurements and services prior to completion.
Detached house for sale in Owens Farm, Broad Lane, Aughton L39 7HS, L39 — £410,000 • 1 bed • 1 bath • 4736 ft²
3 bedroom detached house for sale in Slate Lane, Lathom, Skelmersdale, Lancashire, WN8 — £210,000 • 3 bed • 3 bath
4 bedroom barn conversion for sale in Arley Lane, Haigh, WN1 2UJ, WN1 — £699,000 • 4 bed • 2 bath • 1550 ft²
6 bedroom barn conversion for sale in Shepherds Lane, Halsall, L39 — £895,000 • 6 bed • 3 bath • 27286 ft²
5 bedroom barn conversion for sale in School Lane, Downholland, Ormskirk, L39 7JF, L39 — £1,600,000 • 5 bed • 5 bath • 2196 ft²
5 bedroom semi-detached house for sale in Syd Brook Lane, Mawdesley, L40 2RD, L40 — £895,000 • 5 bed • 3 bath • 1533 ft²






















































