Victorian character with outdoor space, ideal for first-time buyers.
Chain free one-bedroom garden flat with private side entrance
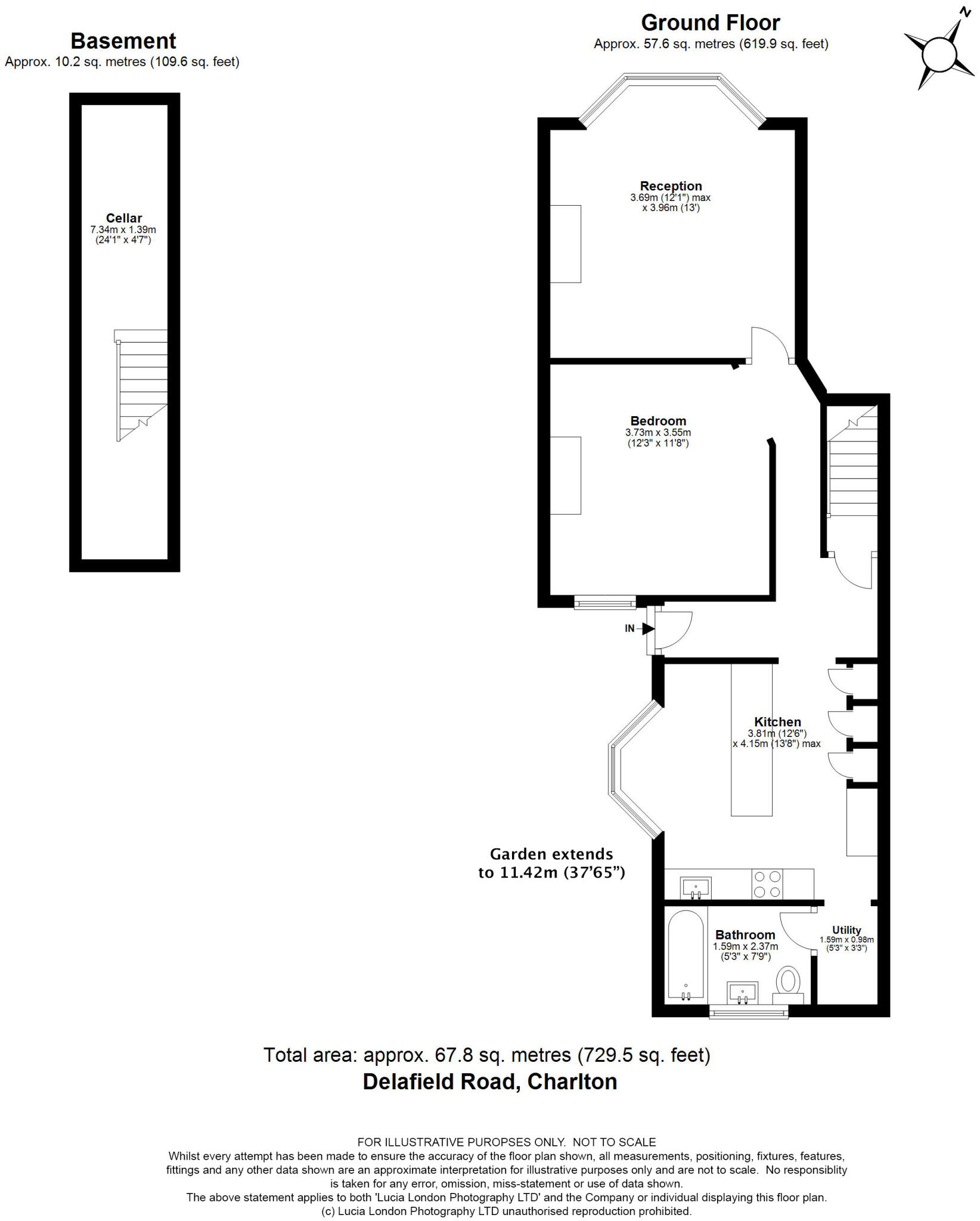
Bright and unusually spacious one-bedroom garden flat set on Delafield Road, offered chain free and with a private side entrance. The large living room retains original Victorian features — bay window, ornate cornice and fireplace — and the double bedroom also benefits from high ceilings. A contemporary kitchen with peninsula dining and a high-quality bathroom complete the accommodation, plus a useful cellar for storage.
Outdoor space is a standout: a private section of garden accessed from the flat gives room for plants and outdoor dining — rare for properties at this price. Practical comforts include mains gas central heating, fast broadband and excellent mobile signal, and local amenities, schools and transport links are all within easy reach.
Important facts: the property is leasehold with 116 years remaining, an annual service charge of £1,010.50 and ground rent of £350 per year. The building is solid-brick Victorian construction (likely no cavity insulation), so buyers should consider potential thermal upgrade costs and typical period-property maintenance.
This flat will suit first-time buyers or couples seeking character and outside space without a garden maintenance responsibility of a house. It offers immediate move-in condition in key rooms, with scope for energy improvements over time to reduce bills and improve comfort.
1 bedroom apartment for sale in Gurdon Road, Charlton, London, SE7 — £300,000 • 1 bed • 1 bath • 553 ft²
1 bedroom flat for sale in Delafield Road, Charlton, SE7 — £350,000 • 1 bed • 1 bath • 555 ft²
1 bedroom flat for sale in Fairthorn Road, Charlton, London, SE7 — £300,000 • 1 bed • 1 bath • 492 ft²
1 bedroom flat for sale in Sunninghill Road, London, SE13 — £300,000 • 1 bed • 1 bath • 495 ft²
1 bedroom flat for sale in Wallbutton Road, Brockley, SE4 — £350,000 • 1 bed • 1 bath • 499 ft²
2 bedroom flat for sale in Wellington Gardens, Charlton, London, SE7 — £345,999 • 2 bed • 1 bath • 926 ft²


















































