Bright ground-floor apartment with private rear patio near Charlton station.
Victorian conversion with high ceilings and original features
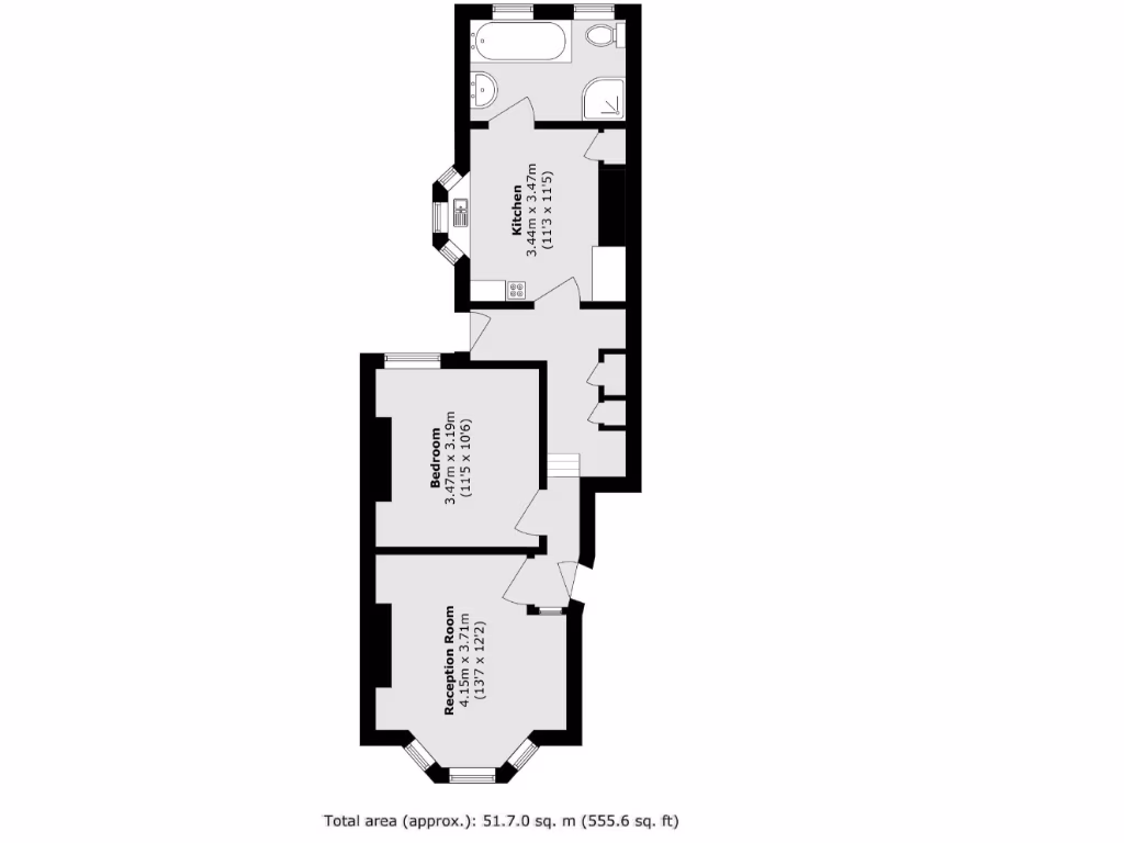
A well-proportioned one-bedroom ground-floor apartment in an attractive Victorian conversion on a quiet, tree-lined road. The front reception has a high-ceilinged bay with original flooring and generous natural light; the layout offers a separate kitchen/dining room and a generous double bedroom with a modern bathroom and separate shower. The apartment benefits from a long lease (949 years), mains gas central heating and its own secluded rear garden with established planting and patio.
Practical positives include fast broadband, excellent mobile signal and easy access to Charlton station for direct services into central London, plus local shops and supermarkets on the Greenwich Peninsula. Council tax band B keeps running costs relatively low. The property is neutrally presented and well maintained, making it move-in ready for a first-time buyer or a couple.
Notable points to check: the kitchen is mid-century dated and could be upgraded to add value; walls are solid brick with assumed no internal insulation; the flat is leasehold. The area is inner-city cosmopolitan with average crime and typical urban noise — worth viewing to judge suitability. Overall this is a characterful, practical home with scope to personalise and improve.
2 bedroom apartment for sale in Elliscombe Road, Charlton, London, SE7 — £450,000 • 2 bed • 2 bath • 843 ft²
2 bedroom flat for sale in Charlton Road, Blackheath, SE3 — £400,000 • 2 bed • 1 bath • 672 ft²
2 bedroom flat for sale in Wellington Gardens, Charlton, SE7 — £475,000 • 2 bed • 1 bath • 819 ft²
1 bedroom apartment for sale in Lansdowne Lane, London, SE7 — £240,000 • 1 bed • 1 bath • 407 ft²
1 bedroom apartment for sale in Charlton Church Lane, Charlton, SE7 — £279,995 • 1 bed • 1 bath • 435 ft²
2 bedroom apartment for sale in Elliscombe Road, Charlton, London, SE7 — £380,000 • 2 bed • 1 bath • 754 ft²






































