South-facing plot with garage and close links to station and strong local schools.
Planning permission granted for a new three-bed, two-bath dwelling (ref 25/0324/FUL)
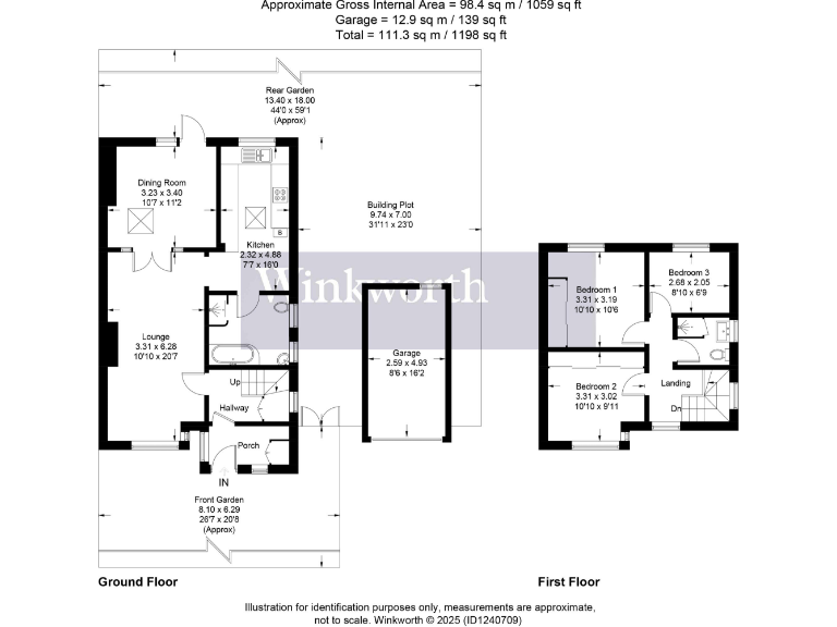
A rare redevelopment opportunity in South Borehamwood, this 1930s semi-detached home sits on a corner plot with planning permission to add a three-bedroom, two-bathroom house to the side (planning ref: 25/0324/FUL). The existing property provides three bedrooms, two bathrooms, an attached single garage, private driveway and a southerly-facing garden — useful while you deliver the approved build or if you prefer to modernise the existing house.
Location is a genuine strength: the property is within walking distance of Borehamwood High Street and Thameslink station, and close to a number of well-rated primary and secondary schools (including Outstanding and Good Ofsted results). Broadband and mobile signal are strong, the area is affluent with low crime, and the plot size is decent for suburban infill, making it appealing to developers or families seeking expansion potential.
The house is presented as a dated, liveable structure with 1930s character and pebbledash exterior. It will require refurbishment to modern standards — plans indicate scope for internal reconfiguration and extension but the existing solid brick walls likely lack cavity insulation. Council tax is above average and purchasers should budget for modernisation, possible insulation works and full compliance costs for the new-build element.
Overall this purchase suits a buyer who values location and development upside: a developer or owner-occupier can take advantage of granted planning permission to increase accommodation, or renovate the current dwelling for long-term family living.
3 bedroom end of terrace house for sale in Barton Way, Borehamwood, Hertfordshire, WD6 — £685,000 • 3 bed • 1 bath • 1000 ft²
3 bedroom house for sale in Kenilworth Drive, Borehamwood, Hertfordshire, WD6 — £450,000 • 3 bed • 1 bath • 1009 ft²
Plot for sale in Furzehill Road, Borehamwood, Hertfordshire, WD6 — £1,190,000 • 1 bed • 1 bath • 948 ft²
Plot for sale in The Warren, Radlett, Hertfordshire, WD7 — £1,950,000 • 1 bed • 1 bath • 7664 ft²
Land for sale in Stag Lane, Chorleywood, Rickmansworth, WD3 — £250,000 • 1 bed • 1 bath • 1387 ft²
3 bedroom detached house for sale in Chicheley Gardens, Harrow, HA3 — £575,000 • 3 bed • 1 bath • 882 ft²














































































