Shovel‑ready central plot with permission for six flats, ideal for investors.
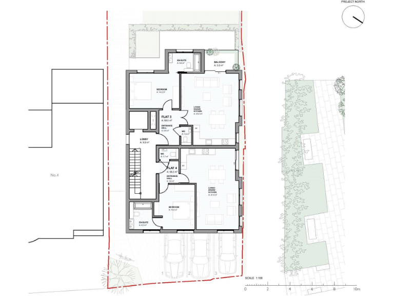
- Planning permission granted for six flats (4 x 1‑bed, 2 x 2‑bed)
- Freehold plot with communal garden, private garden and balconies
- Very close to Elstree & Borehamwood station (approx. 350m)
- Three off‑street parking spaces only; parking provision is limited
- Existing building to be demolished; full redevelopment required
- EPC recorded as E; walls likely solid brick with no insulation
- Accessibility Zone 2 allows up to 75% parking discount
- Council tax above average; budget for energy upgrades
A rare, shovel-ready development plot in central Borehamwood with planning permission for a new four‑storey block of six flats (4 x 1‑bed, 2 x 2‑bed). The scheme includes a communal rear garden, a private ground‑floor garden and balconies to three flats, plus three off‑street parking spaces and convenient pedestrian and vehicular access from Furzehill Road.
The site sits 350m from Elstree & Borehamwood station (Zone 6) and meters from the town’s shopping park and High Street amenities, making it well placed for rental demand and short commutes into London. The approved layout meets Hertsmere space standards and benefits from an Accessibility Zone 2 parking discount that reduces developer parking obligations.
Buyers should budget for full demolition and full construction costs — the existing building will be removed prior to redevelopment. The scheme’s EPC rating is E as currently recorded; the existing walls are solid brick with no assumed insulation, so compliance and energy‑efficiency upgrades will be part of construction costs. Council tax is above average in the area and on‑site parking is limited to three spaces.
Overall, this is a practical, centrally located development opportunity for an investor or small developer targeting lettings or resale in a busy commuter town. The planning permission, station proximity and strong local retail/leisure offer clear value drivers; purchasers must allow for build costs, energy upgrades and constrained parking provision.
Commercial development for sale in 26-30 Theobald Street, Borehamwood, WD6 4SG, WD6 — £3,700,000 • 1 bed • 1 bath • 28026 ft²
3 bedroom semi-detached house for sale in Cardinal Avenue, Borehamwood, Hertfordshire, WD6 — £900,000 • 3 bed • 2 bath • 1059 ft²
3 bedroom end of terrace house for sale in Barton Way, Borehamwood, Hertfordshire, WD6 — £685,000 • 3 bed • 1 bath • 1000 ft²
Plot for sale in Fortune Lane, Elstree, Borehamwood, Hertfordshire, WD6 — £1,695,000 • 1 bed • 1 bath • 7500 ft²
Plot for sale in Watford Road, Radlett, Hertfordshire, WD7 — £3,900,000 • 1 bed • 1 bath • 2014 ft²
Residential development for sale in Development Site, The Former Directors Arms Public House, Ripon Way, Borehamwood, Hertfordshire, WD6 — POA • 1 bed • 1 bath


















































