WD6 1QL - 3 bedroom house for sale in Kenilworth Drive, Borehamwood,…

View on Property Piper

3 bedroom house for sale in Kenilworth Drive, Borehamwood, Hertfordshire, WD6

Summary - 33 KENILWORTH DRIVE BOREHAMWOOD WD6 1QL

3 bed 1 bath House

**Standout Features:**
- Three bedrooms, two reception rooms in a semi-detached house.
- Planning permission granted for a 5M rear extension; party wall agreements are in place.
- Chain-free sale for immediate occupancy.
- Located in a desirable area close to schools, parks, and excellent transport links.
- Requires renovation, offering potential for customization.

**Summary:**
Discover the potential of this spacious three-bedroom semi-detached family home in South Borehamwood, ideally suited for young families or first-time buyers. With a generous 1,009 square feet of living space, the property features a well-lit living room and dining area, three good-sized bedrooms, and an expansive garden backing onto Kenilworth Park, providing a serene and private retreat.

The approved planning permission for a 5-meter extension empowers you to tailor the home to your vision, unlocking further value and space. While the home requires modernization, this presents an exciting opportunity to create your dream residence in a thriving community known for its excellent schools and amenities.

Nestled in a convenient location with quick access to the A1, M1, and M25, you're well-connected for commuting, making this an ideal choice for professionals. Don’t miss this rare chance to secure a chain-free property that offers both comfort and potential. Act soon; opportunities like this don’t last long!

Property Details

Brochure Descriptions

Image Descriptions

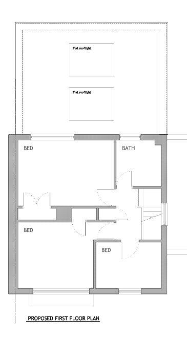
Floorplan Description

Rooms

Textual Property Features

Detected Visual Features

EPC Details

Nearby Schools

Nearest Bars And Restaurants

,,,,}

Nearest General Shops

,,}

Nearest Grocery shops

,,}

Nearest Supermarkets

,,}

Nearest Religious buildings

,,}

Nearest Medical buildings

,,,}

Nearest Airports

,}

Nearest Leisure Facilities

,,,,}

Nearest Tourist attractions

,,}

Nearest Train stations

,,,,}

Nearest Bus stations and stops

,,,,}

Nearest Hotels

,,}

Tags

Local Market Stats

AirBnB Data

Similar Properties

Meta

High Res Images

Compatible Images

Low res Images

Thumbnails

Raw Images

High Res Floorplan Images

Compatible Floorplan Images

Low res Floorplan Images

FloorplanImages Thumbnail

Raw Floorplan Images