**Standout Features:**
- Planning consent for a substantial detached family home.
- Expansive plot size of approximately 3.5 acres, offering privacy and potential for landscaping.
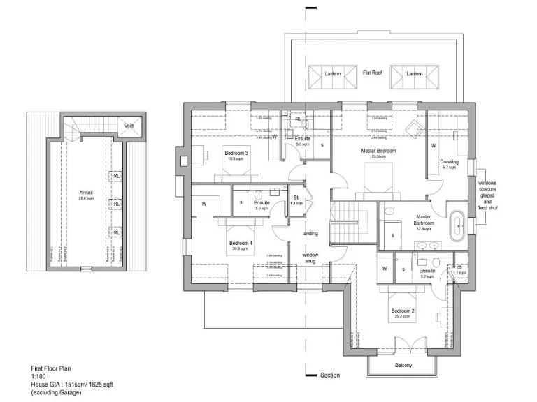
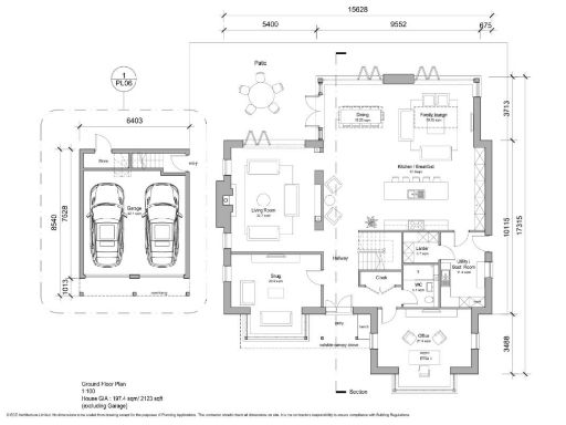
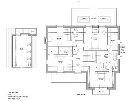
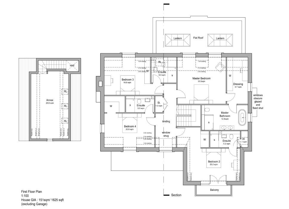
- Gross sq. footage for the planned home: 3,748 sq. ft., plus a double garage with storage above.
- Located in a tranquil rural setting close to West Surrey Golf Club.
- No visible residential structures on-site, maximizing the sense of seclusion.
- Excellent local schools rated 'Good', including both state and independent options.
- Fast broadband and low crime rates enhance the family-friendly appeal.
**Summary:**
Discover an exceptional opportunity to create your dream home in one of South West Surrey's most coveted locations. This substantial plot of approximately 3.5 acres comes with planning consent for a magnificent detached family residence spanning 3,748 sq. ft., complemented by a double garage and additional storage space. Nestled in a peaceful rural setting, the land offers lush gardens and paddocks, perfect for anyone seeking privacy and outdoor space.
With a backdrop facing due west, this property basks in natural light and picturesque views, resulting in a serene atmosphere ideal for family living. Local amenities, including West Surrey Golf Club and reputable schools, enhance its charm and convenience. Moreover, the full capital payments can be waived if the home is built by an owner-occupier, making this a potentially lucrative investment for discerning buyers. Don’t miss the chance to build a characterful home in a community that combines the best of countryside life with easy access to London via Milford station. This exclusive opportunity won't last long—envision your future today!
4 bedroom detached house for sale in Hambledon Road, Hydestile, Godalming, GU8 — £2,750,000 • 4 bed • 4 bath • 3748 ft²
Land for sale in Plot with planning permission, Amlets Lane, Cranleigh, GU6 — £500,000 • 4 bed • 3 bath • 2250 ft²
Land for sale in 33 Aveley Lane, Lower Bourne, Farnham, GU9 — £500,000 • 4 bed • 3 bath • 2778 ft²
5 bedroom detached house for sale in Woodham Park Road, Woodham, Addlestone, Surrey, KT15 — £700,000 • 5 bed • 5 bath • 4837 ft²
Land for sale in Portsmouth Road, Hindhead, GU26 — £450,000 • 1 bed • 1 bath • 2391 ft²
Plot for sale in Longdown Road, Guildford, Surrey, GU4 — £2,350,000 • 6 bed • 1 bath • 4662 ft²






































