**Standout Features:**
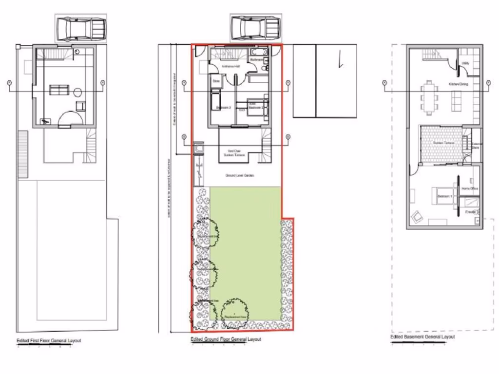
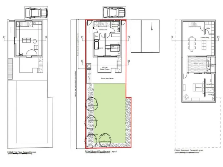
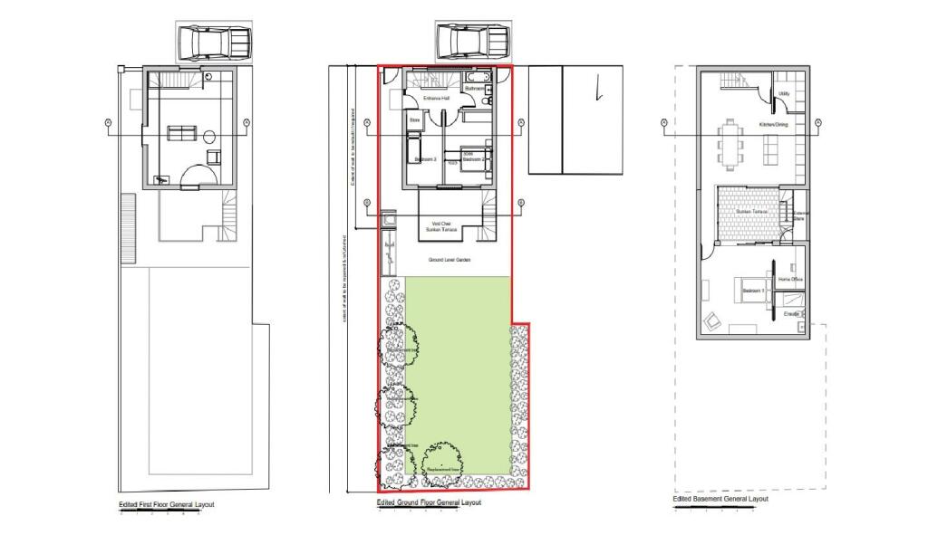
- 3-bedroom detached house with planning permission approved for development.
- Approx. 1500 sq ft of internal space with potential for sea views.
- Site is cleared and ready for building, with all baseline calculations already completed.
- Located in a desirable conservation area within walking distance to Southend High Street and award-winning beaches.
- CIL payment settled; utilities accessible.
**Summary:**
Discover a rare opportunity to craft your dream home in Clifton Mews, Southend-On-Sea. This generous plot, currently approved for a stunning 3-bedroom detached house, boasts approximately 1500 sq ft of versatile living space, including a basement with open-plan design tailored for modern living. Enjoy serene estuary views and a south-facing garden, ideal for family gatherings or a peaceful retreat.
Though the site is vacant and ready for redevelopment, it's worth noting the neighborhood has high crime rates, which some may view as a concern. However, the location is rich with amenities, and its close proximity to schools and the vibrant Southend city center adds immense value. No chain means you’re free to begin your project without delay. Don’t miss out on this exclusive chance to construct a bespoke family home or holiday retreat in one of Southend's most sought-after areas! Act now—opportunities like this are fleeting.
Commercial property for sale in Clifton Mews, Southend-on-Sea, SS1 — £275,000 • 3 bed • 1 bath • 1500 ft²
3 bedroom detached house for sale in Clifton Mews, Southend-on-sea, SS1 — £275,000 • 3 bed • 2 bath • 1490 ft²
Land for sale in Development, Southend-on-sea,, SS1 — £275,000 • 1 bed • 1 bath • 1492 ft²
Commercial development for sale in Lot, 1 Clifton Mews, Southend-on-Sea SS1 1FL, SS1 — £275,000 • 1 bed • 1 bath • 2500 ft²
Property for sale in London Road, Southend-On-Sea, SS1 — £1,050,000 • 1 bed • 1 bath
Land for sale in Leigh Hill, Leigh-On-Sea, SS9 — £1,250,000 • 1 bed • 1 bath • 3000 ft²






























































































