**Standout Features:**
- **Planning Permission Granted**: For a 3-bedroom detached property with a basement and estuary views.
- **Cleared Development Plot**: Ready for immediate construction.
- **Spacious**: Approximately 1500 sq ft of internal space.
- **Prime Location**: Sought-after area, walking distance to Southend High Street and beautiful beaches.
- **Additional Potential**: Possibility for further development, subject to council approval.
- **Utilities**: Adjacent properties benefit from power and water access.
**Summary:**
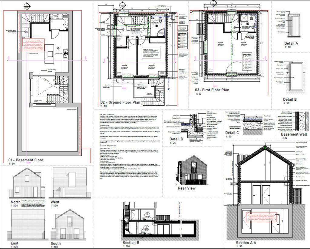
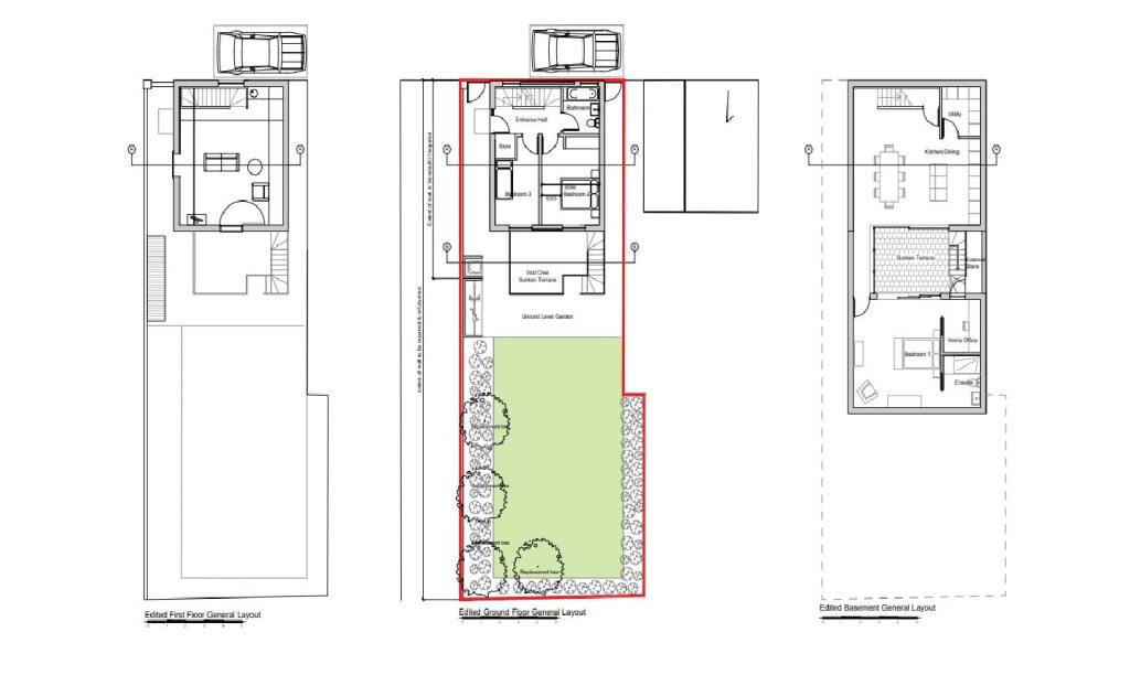
Discover a unique opportunity to develop a bespoke 3-bedroom detached home in prestigious Clifton Mews, Southend-on-Sea. With planning permission already in place (ref: 20/02041/FUL), you can build your dream residence featuring stunning estuary views and a well-conceived design that includes a basement level with an open-plan kitchen and dining area, a luxurious master suite, and spacious living areas.
The plot is ready to break ground, boasting cleared land with CIL payments already settled, making it hassle-free for immediate development. Enjoy a south-facing garden and private off-street parking, all located within a vibrant community surrounded by traditional architecture. This location offers both serenity and convenience, being close to local amenities, highly-rated schools, and award-winning beaches, ideal for families or investors seeking attractive rental potential.
Act quickly to secure this rare chance to bring your property vision to life in a character-rich conservation area. Potential buyers are encouraged to explore modifications to existing plans, making this the perfect project for those looking to create a custom space in a desirable setting. Don’t miss out—make this dream development yours!
3 bedroom detached house for sale in Clifton Mews, Southend-On-Sea, SS1 — £275,000 • 3 bed • 1 bath • 1500 ft²
Commercial development for sale in Lot, 1 Clifton Mews, Southend-on-Sea SS1 1FL, SS1 — £275,000 • 1 bed • 1 bath • 2500 ft²
3 bedroom detached house for sale in Clifton Mews, Southend-on-sea, SS1 — £275,000 • 3 bed • 2 bath • 1490 ft²
Land for sale in Development, Southend-on-sea,, SS1 — £275,000 • 1 bed • 1 bath • 1492 ft²
Property for sale in London Road, Southend-On-Sea, SS1 — £1,050,000 • 1 bed • 1 bath
Plot for sale in Alexandra Street, Southend-On-Sea, SS1 — £2,250,000 • 27 bed • 27 bath






























































































