Freehold, secure yard and flexible office-mezzanine space near M53.
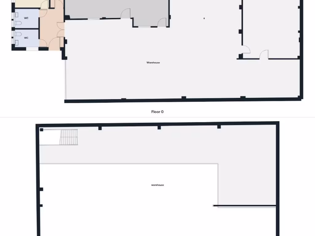
4,528 sq ft large single-bay warehouse with high eaves
A substantial, recently refurbished light industrial unit on a well-established Thornton Road industrial estate. The end-terrace steel portal-frame building offers an open single-bay warehouse with high eaves, multiple rooflights and a secure yard frontage visible from the roller shutter. Internally there is a ground-floor office/mezzanine arrangement, fitted kitchenette and DDA-compliant WC facilities, providing flexible space for light industrial, showroom, studio or distribution use.
Positioned approximately 1.5 miles from Junction 9 of the M53, the location is practical for logistics and trade customers and sits close to Cheshire Oaks retail park and new nearby industrial development, which could increase local activity. The unit is freehold, has off-street parking and benefits from excellent mobile signal and average broadband speeds.
Buyers should note local social and economic challenges: the wider area is classified as deprived with higher-than-average crime levels. The setting is urban/industrial with no scenic or residential garden features. While the property is presented in good refurbished condition, occupiers should confirm specific fit-out needs for their operations and allow for estate-related workings and security considerations.
This building suits an operator or investor seeking a large, flexible industrial footprint in a strategically connected Ellesmere Port location. The combination of secure yard, clear internal working area and integral office/welfare accommodation makes it ready for immediate occupation or rental, subject to any bespoke tenant fit-out.
Light industrial facility for sale in 20 & 20A Accord Place, Telford Road, Ellesmere Port, Cheshire CH65 5EU, CH65 — £400,000 • 1 bed • 1 bath • 4528 ft²
Light industrial facility for sale in Unit 1, North Road, Vauxhall Supply Park, Ellesmere Port, CH65 1BL, CH65 — £9,678,410 • 1 bed • 1 bath
Light industrial facility for sale in Charter 55, Charterhouse Close, Ellesmere Port, Cheshire, CH65 4EL, CH65 — POA • 1 bed • 1 bath
Light industrial facility for sale in Northside 45, Jct 8 M53, Ellesmere Port, CH66 1LU, CH66 — POA • 1 bed • 1 bath
Warehouse for sale in 57-58 Brindley Road, Astmoor Industrial Estate, Runcorn, WA7 1PF, WA7 — POA • 1 bed • 1 bath • 25744 ft²
Light industrial facility for sale in Vortex 110, Newbridge Road, Ellesmere Port, CH65 4DR, CH65 — POA • 1 bed • 1 bath


























