Three bedrooms, garden and garage near Tavistock town centre — great starter family home.
Extended semi-detached house with over 1,300 sq ft of accommodation
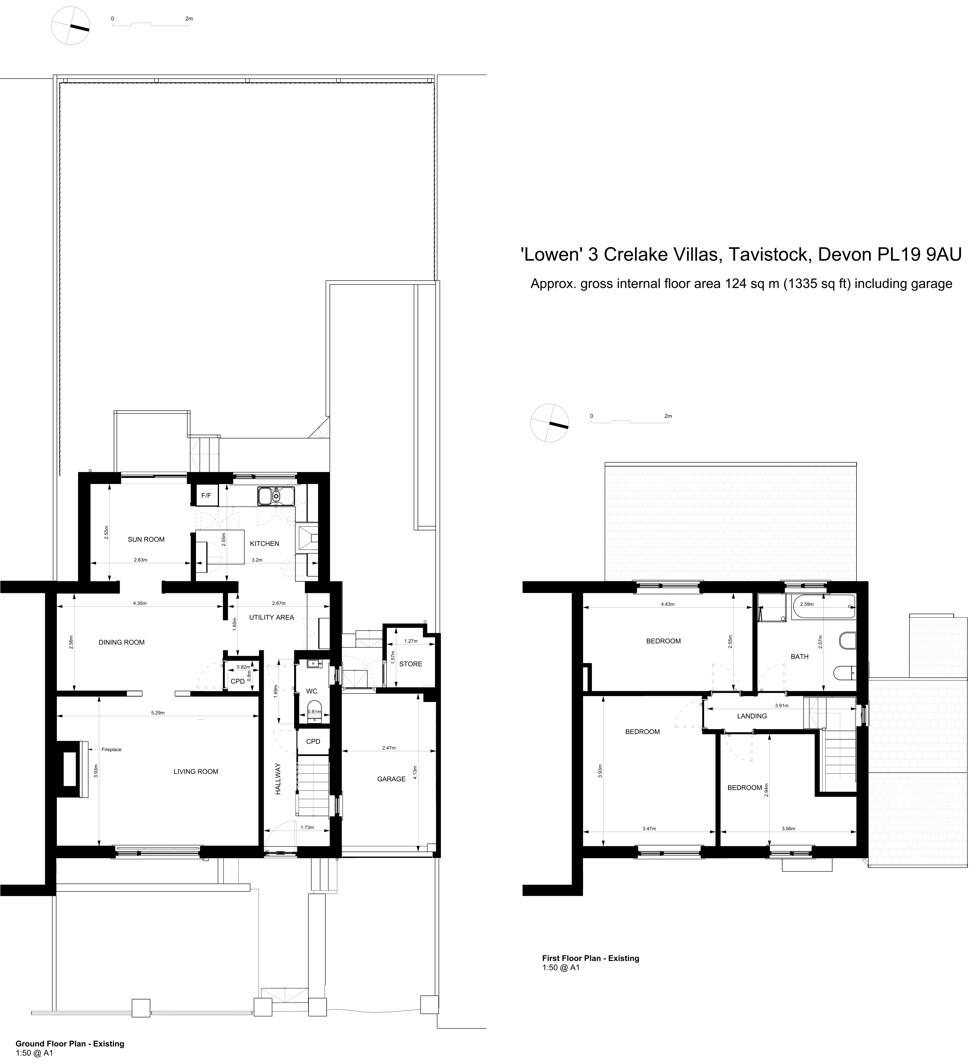
Occupying a convenient edge-of-town position in Tavistock, this extended semi-detached home offers over 1,300 sq ft of flexible family space. The ground floor layout flows from a sitting room into a dining room and a bright garden/playroom, with an extended kitchen/breakfast room and useful utility area. It suits buyers who want roomy accommodation close to shops and schools.
Upstairs are three good-sized bedrooms, including a master with fitted wardrobes, and a spacious family bathroom with both bath and separate shower. Practical features include gas central heating, PVCu double glazing, a boarded loft for storage and a single garage with driveway parking. The rear garden is enclosed with a deck, lawn and patio – a manageable, child-friendly outdoor space.
This is a straightforward freehold purchase with low local crime, good mobile and broadband coverage, and council tax band B. Note there is one bathroom for three bedrooms and driveway parking for one car only. The property’s 1930s build and sizeable accommodation will appeal to first-time buyers wanting roomy, well-located family living or buyers seeking a low-maintenance starter home.
Viewings are recommended to appreciate the layout and location; the house is offered with immediate vacant possession and scope to personalise fittings and décor to taste.
3 bedroom semi-detached house for sale in Old Exeter Road, Tavistock, Devon, PL19 — £295,000 • 3 bed • 1 bath • 887 ft²
4 bedroom detached house for sale in Tremayne Rise, Tavistock, Devon, PL19 — £440,000 • 4 bed • 3 bath • 1414 ft²
4 bedroom detached house for sale in Down Road, Tavistock, Devon, PL19 — £700,000 • 4 bed • 2 bath • 2066 ft²
4 bedroom detached house for sale in Parkwood Road, Tavistock, PL19 — £475,000 • 4 bed • 1 bath • 1676 ft²
3 bedroom semi-detached house for sale in Tavistock, PL19 — £350,000 • 3 bed • 2 bath • 1098 ft²
4 bedroom semi-detached house for sale in Courtlands Road, Tavistock, Devon, PL19 — £325,000 • 4 bed • 2 bath • 943 ft²










































































