Ready-to-occupy workspace in Old Street tech hub with long virtual freehold.
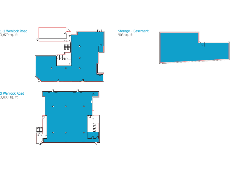
Extremely large open-plan office: 8,390 sq ft across ground floor and basement storage
A rare, very large ground-floor office suite in the Old Street tech cluster, offered with full vacant possession. The property forms part of a mixed-use development completed in 2016 and was comprehensively refurbished in November 2024, delivering a modern open-plan workspace with basement storage and dual front/rear access.
Sustainability credentials are future-proof: EPC C and BREEAM Very Good. The virtual freehold (999 years from 2015, c.990 years unexpired) and low annual ground rent of £250 make ownership straightforward. The suite’s size and open layout suit an occupier seeking consolidation, a HQ space, or an investor targeting prime Shoreditch/Old Street demand.
Location is a major strength — about 600m from Old Street station and surrounded by established tech occupiers. Good public transport links and excellent mobile/broadband connectivity support digital businesses. Note the immediate area is classified as deprived despite the strong tech cluster, which may affect local street-level amenity and long-term area dynamics.
Offers are invited at £5,200,000 for the virtual freehold interest (subject to contract, exclusive of VAT). The building is offered with full vacant possession following dissolution of the existing lease, allowing an owner-occupier or investor to take immediate control and implement fit-out as required.
Office for sale in 22 Wenlock Road, Old Street, London, N1 7TA, N1 — £1,500,000 • 1 bed • 1 bath • 4121 ft²
Office for sale in 193-195 City Road, EC1V — £3,800,000 • 1 bed • 1 bath • 5253 ft²
Office for sale in Unit 115a, The Timber Yard, Hoxton, London, N1 6ND, N1 — £1,900,000 • 1 bed • 1 bath • 2709 ft²
3 bedroom maisonette for sale in 193-195 City Road, EC1V — £3,800,000 • 3 bed • 2 bath • 5253 ft²
Office for sale in Waterside, 44-48 Wharf Road, Islington, N1 7UX, N1 — £1,495,000 • 1 bed • 1 bath • 1994 ft²
Leisure facility for sale in Unit 2, Waterside, 44-48 Wharf Road, Islington, N1 7UX, N1 — £1,750,000 • 1 bed • 1 bath • 3803 ft²






























