Large garden, generous living space near village amenities and good schools.
Five good-sized bedrooms with principal en‑suite
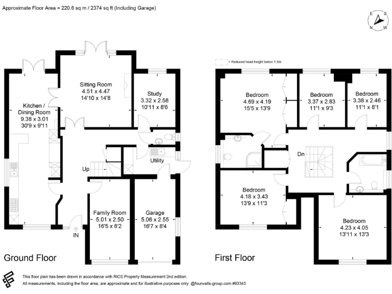
This well-kept five-bedroom detached house sits in the desirable village of Great Bedwyn, offering generous family living across well-proportioned rooms. The house has a large kitchen/dining room with field views to the front and French doors to a southerly garden, plus a sitting room with open fireplace and a separate family room and study — ideal for flexible family routines and home working.
Bedrooms are comfortable and arranged off a galleried landing; the principal bedroom benefits from a large en‑suite and there is a modern family bathroom. Practical spaces include a utility room, cloakroom and an integral single garage with driveway parking. The plot is large and private, with paved seating adjacent to the house and a graveled play area at the far end.
Local amenities and village life are strong: an outstanding primary school, local shop, surgery, pub and a railway station with services to London. Countryside attractions such as the Kennet and Avon canal and Savernake Forest are nearby, supporting a relaxed rural lifestyle with good walking and riding options.
Notable negatives are factual: heating is oil‑fired rather than mains gas and the property relies on oil, which affects running costs and sourcing. Broadband speeds are slow locally. Council Tax is band G and therefore relatively expensive. Interested buyers should arrange their own checks on services, fixtures and fittings.
4 bedroom detached house for sale in Copyhold, Great Bedwyn, Marlborough, SN8 3YR, SN8 — £575,000 • 4 bed • 2 bath • 1345 ft²
4 bedroom detached house for sale in Wansdyke Road, Great Bedwyn, SN8 — £650,000 • 4 bed • 2 bath • 1844 ft²
5 bedroom detached house for sale in High Street, Ogbourne St George, SN8 — £775,000 • 5 bed • 2 bath • 2008 ft²
3 bedroom semi-detached house for sale in Castle Road, Marlborough, SN8 3LS, SN8 — £495,000 • 3 bed • 2 bath • 1193 ft²
5 bedroom detached house for sale in Woolton Lodge Gardens, Woolton Hill, Newbury, Hampshire, RG20 — £1,150,000 • 5 bed • 3 bath • 3171 ft²
5 bedroom detached house for sale in Bath Road, Fyfield, Marlborough, SN8 — £900,000 • 5 bed • 4 bath • 2916 ft²


























































































































































































