Well-located commercial plot with long lease and design flexibility for developers.
Existing unrestricted B1 business planning consent in place
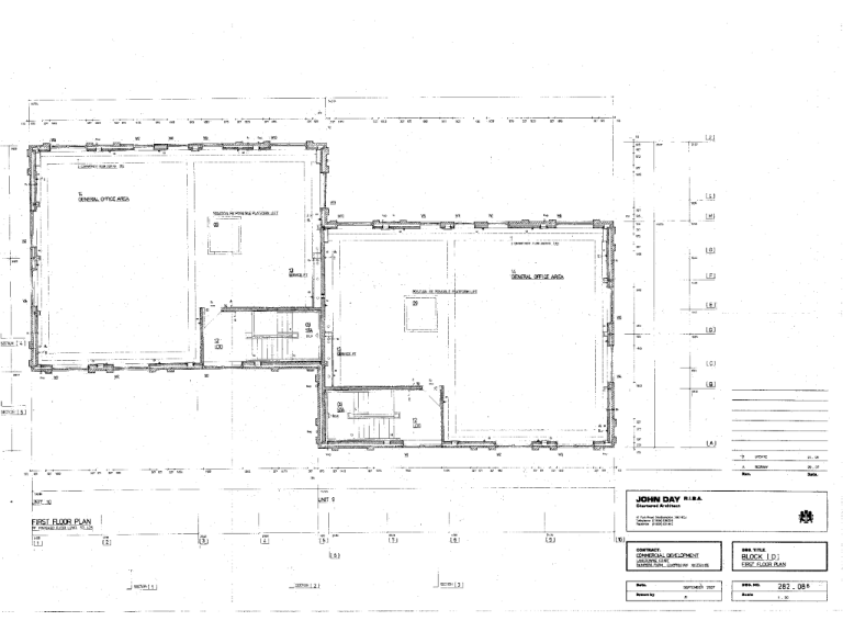
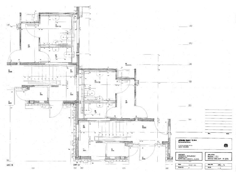
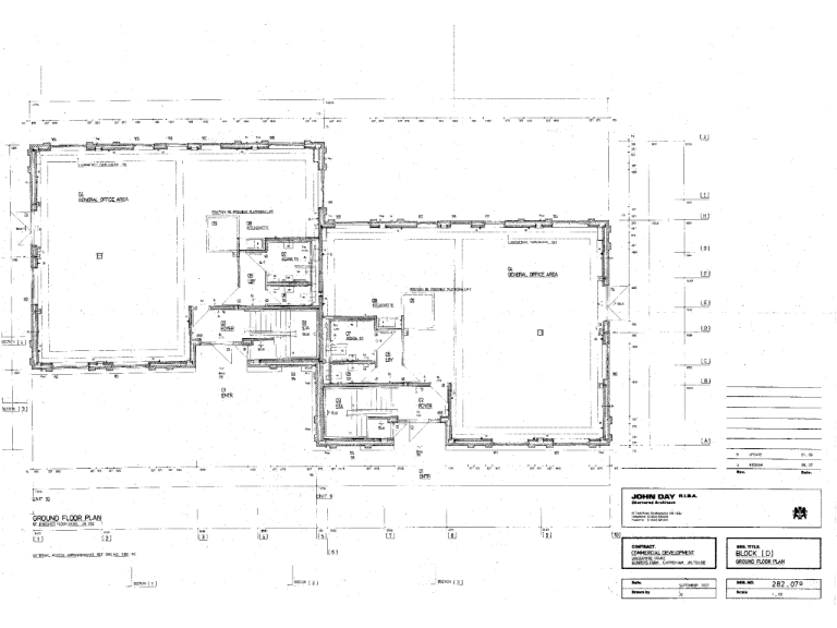
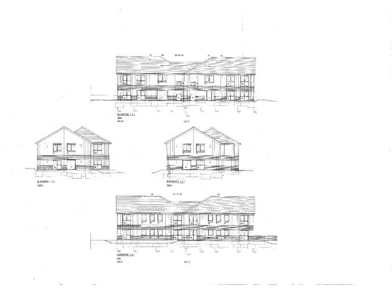
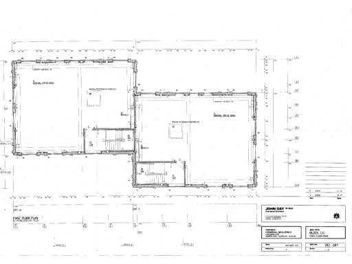
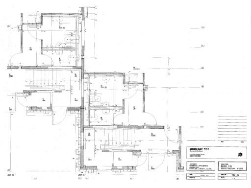
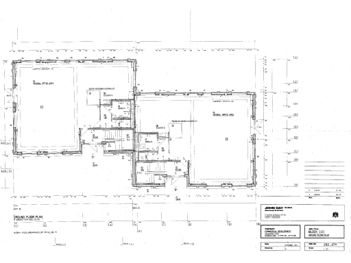
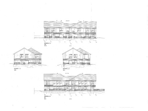
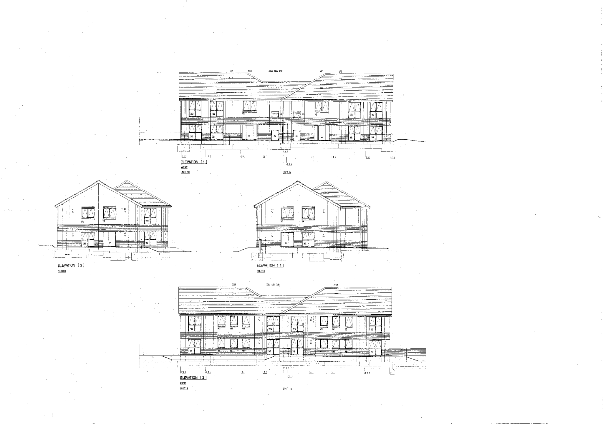
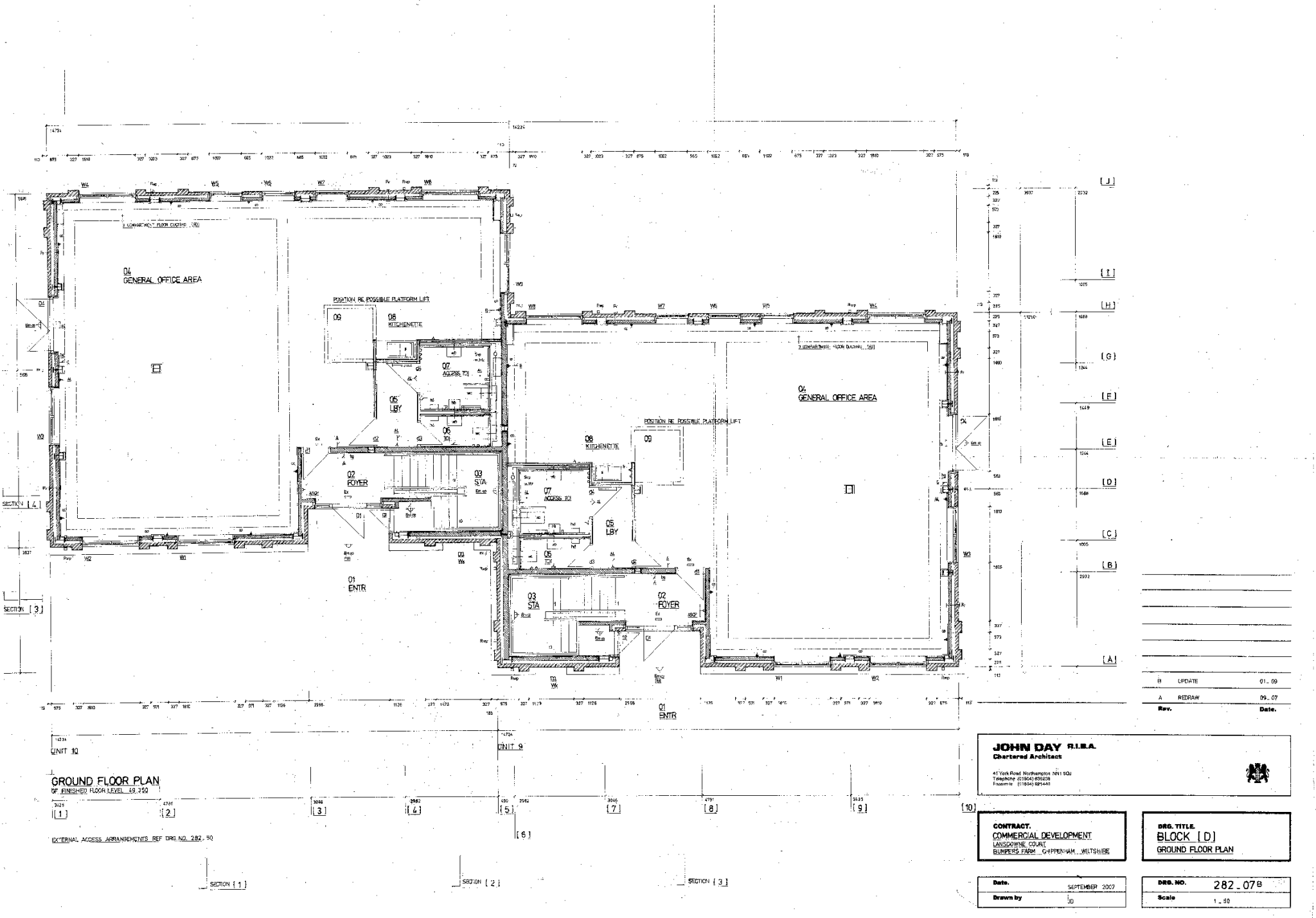
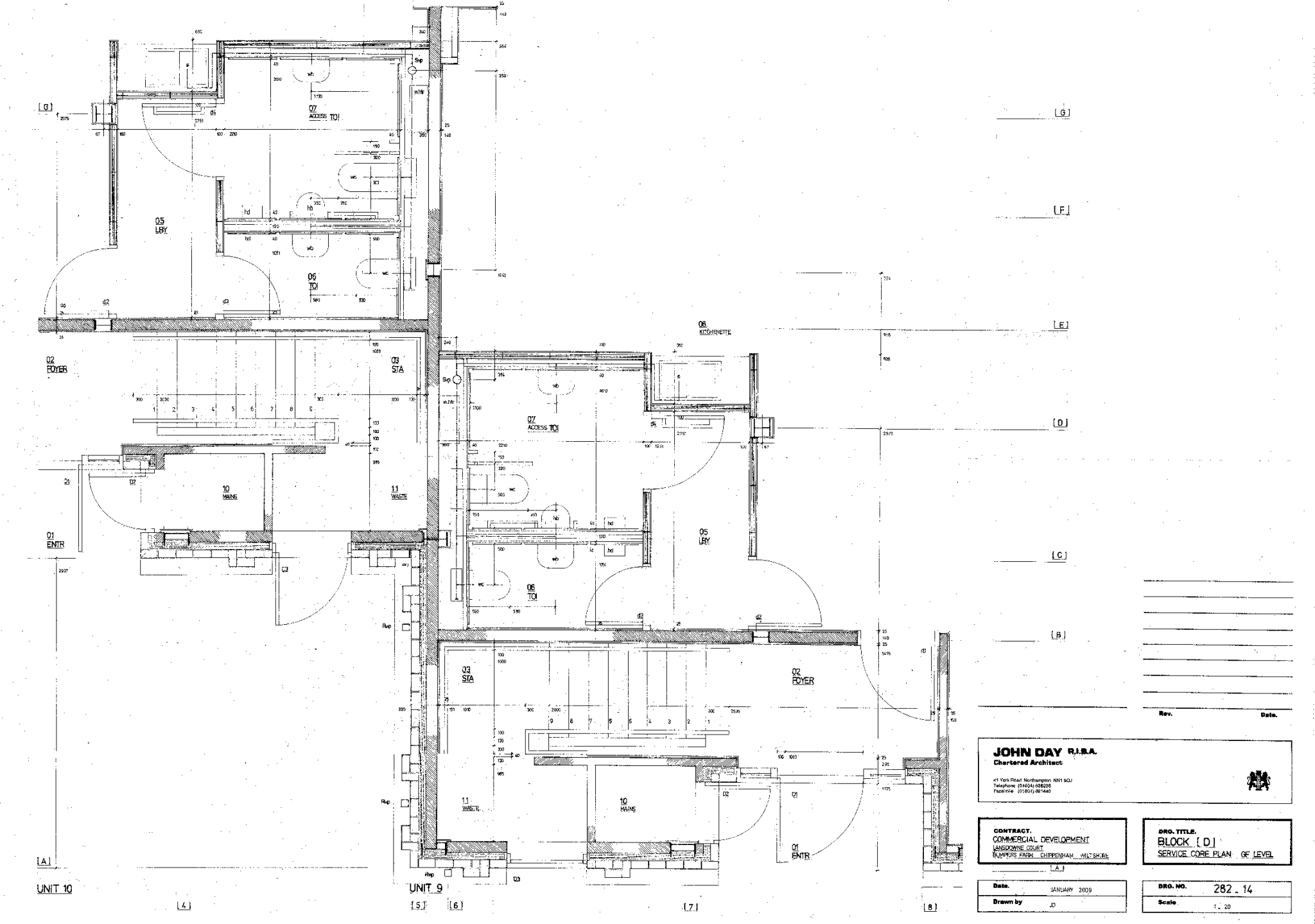
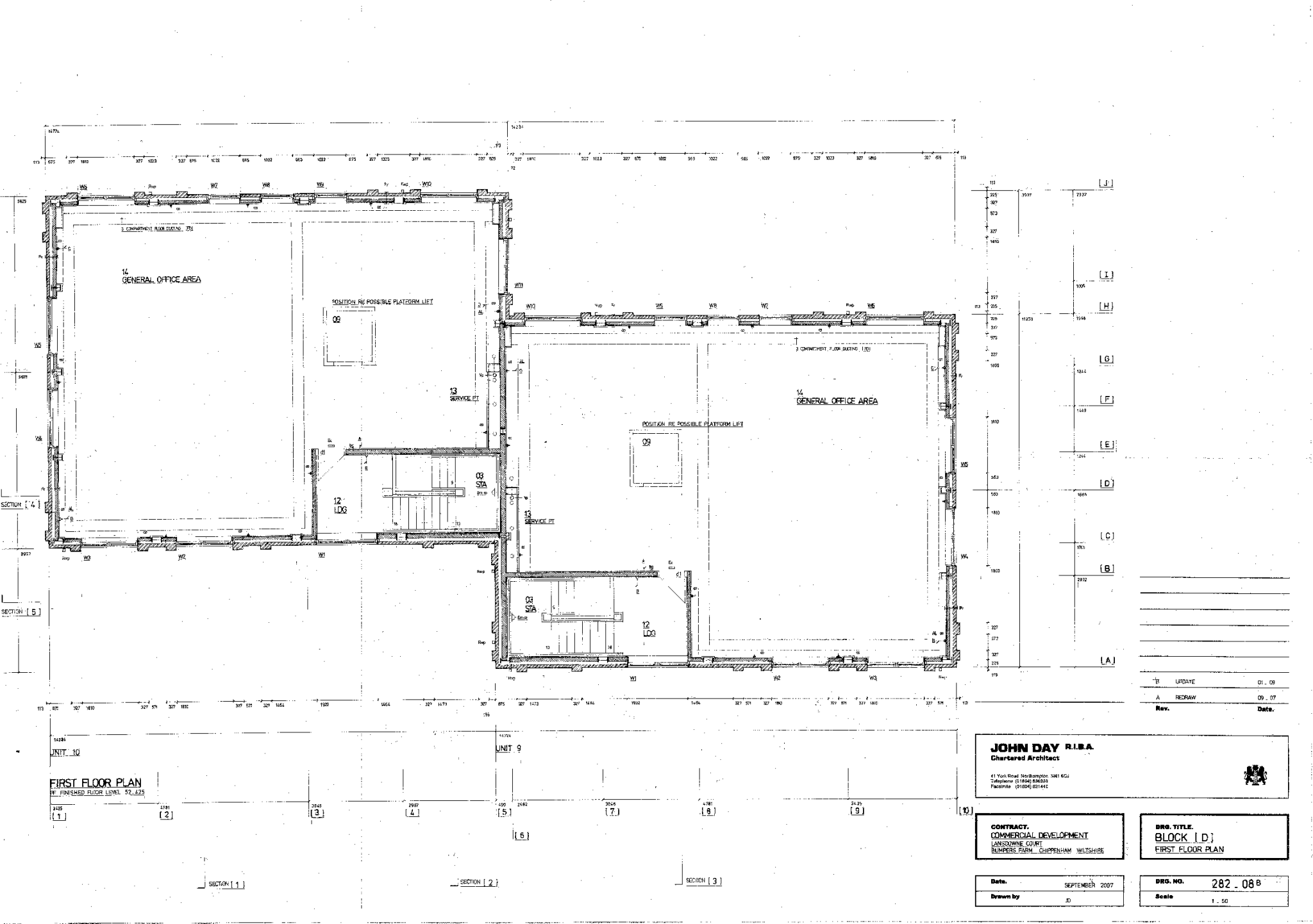
An uncommon development plot of approximately 0.10 ha (0.25 acres) within Lansdowne Court, offered with existing unrestricted B1 planning consent for business-related uses. The site can accommodate buildings of up to about 7,000 sq ft subject to design, and benefits from off-street parking provision for up to 14 vehicles. The plot sits on a long 999-year virtual freehold/lease arrangement, providing long-term security for investment or owner-occupation.
The location is practical for commercial occupiers: roughly 2 miles west of Chippenham town centre and close to M4 Junction 17, with excellent mobile coverage and average broadband speeds. There is no recorded flood risk, and the wider area is classed as white suburban communities with aspiring urban households nearby, making it suitable for a range of business or employment uses.
Buyers should note material considerations plainly: the wider neighbourhood records above-average crime levels, and any change of use outside existing B1 consent will require planning approval. Schools in the area vary in Ofsted performance, and the tenure description includes both the 999-year term and references to possible long-term lease commitments — clarify tenure and any service or estate charges before exchange.
This plot suits investors or occupiers looking for a straightforward, sizeable site with immediate business consent and design flexibility. It offers clear scope to deliver a purpose-built workspace or employment unit, subject to final design and statutory consents.
Warehouse for sale in Plot 200 Southpoint Business Park, Chippenham, SN15 2NU, SN15 — POA • 1 bed • 1 bath • 20559 ft²
Warehouse for sale in Tigermoth Fields, Chippenham Road, Lyneham, SN15 4PA, SN15 — £1,350,000 • 1 bed • 1 bath • 27990 ft²
Commercial development for sale in Bath Road, Melksham, Wiltshire, SN12 8AD, SN12 — £300,000 • 1 bed • 1 bath • 7013 ft²
35 bedroom retirement property for sale in Land at Forest Lane, Chippenham, Wiltshire, SN15 — £775,000 • 35 bed • 1 bath • 12981 ft²
Land for sale in Land at Swaddon Street, Swaddon Street, Calne, Wiltshire, SN11 — £10,000 • 1 bed • 1 bath • 2278 ft²
Farm land for sale in Land at Castle Combe, Nr.Chippenham, Wiltshire, SN14 — £235,000 • 1 bed • 1 bath






























